Kleine Bungalows bis 100 qm: Grundrisse, Preise & Beispiele

Kleine Bungalows stellen eine praktische Alternative zur Eigentumswohnung für Singles und Paare sowie sogar Kleinfamilien dar, die vom Eigenheim träumen. Das klassische Einfamilienhaus mit mehreren Etagen und weit über 150 Quadratmeter Wohnfläche ist oft nicht nur zu groß, sondern auch zu teuer.
Häufig entscheiden sich Singles und Paare dann für eine Eigentumswohnung. Der Nachteil: Man muss das Haus mit anderen Parteien teilen, Sanierungsmaßnahmen müssen abgestimmt werden und die erwünschte Ruhe, die man im freistehenden Einfamilienhaus findet, bleibt aus. Eine attraktive Alternative ist dann ein kompakt gestalteter Bungalow mit bis zu 100 qm Wohnfläche. Auch bieten sich Bungalows als kleine Häuser für Senioren dank der barrierearmen und somit sicheren Gestaltung an.

Bungalow 100 qm: Schneller Überblick
Barrierearmes Wohnen für 1-3 Personen auf einer Ebene
Durchschnitts-Kosten: 300.000 Euro schlüsselfertig ab OK Bodenplatte
Ideal für Singles, Paare und Kleinfamilien
Benötigt 500-600 qm Grundstück
Typisch 3-4 Zimmer
Vorteile: barrierefrei möglich, kosteneffizient, flexibel
Preise & Kosten beim Bungalow bis 100 qm
Was kostet es, einen kleinen Bungalow zu bauen?
Ein Bungalow mit 100 qm kostet bei schlüsselfertiger Ausführung zwischen 220.000 und über 400.000 Euro (2.200-4.000+ Euro/qm). Die Preisspanne hängt von Ausstattung, Grundriss und Anbieter ab. Baunebenkosten (ca. 15-20 %), Grundstückskosten und Außenanlagen kommen zu den Baukosten hinzu.
Die Kosten für einen Bungalow bis 100 qm variieren erheblich – je nachdem, wie viel Sie selbst Hand anlegen möchten, wie groß das Haus letzten Endes wird, welche Ausbaustufe und Ausstattung Sie wählen. Die Preisspanne reicht von 88.000 Euro für den einfachsten Bausatz für einen Bungalow mit 80 qm bis zu über 400.000 Euro für einen Luxus-Fertighaus-Bungalow mit 100 qm und schlüsselfertiger Übergabe.
Im Schnitt kostet ein kleiner Bungalow schlüsselfertig 3.000 Euro pro qm. Dementsprechend liegt bei einem Bungalow mit 80 qm der schlüsselfertige Preis im Mittel bei 240.000 Euro.
Beim Bungalow mit 100 qm sind die größten Kostenfaktoren Hausgröße, Qualitätssegment und Ausbaustufe: Beim Bausatzhaus liefert der Hersteller nur bestimmte Materialien und Sie übernehmen den Großteil der Bauarbeiten selbst. Das spart zwar Handwerkskosten, erfordert aber handwerkliches Geschick auf Profi-Niveau und viel Zeit. Beim Ausbauhaus steht der Rohbau mit Fenstern und Türen, der komplette Innenausbau liegt jedoch bei Ihnen. Die schlüsselfertige Variante bedeutet: Sie erhalten Ihr Haus fast bezugsfertig – müssen allerdings auch den höchsten Hauspreis zahlen. Dieser kann sich aber relativieren, denn mögliche Bauverzögerungen und Baumängel bei Eigenleistungen verteuern den Bau unter Umständen stark.
Unser Tipp: Übernehmen Sie nur Arbeiten am Bau, die Sie wirklich selbst leisten können, so lassen sich die Kosten Ihres Bungalows mit 100 qm um bis zu 15 % reduzieren.
Wichtig zu wissen: Alle Preise verstehen sich ab Oberkante Bodenplatte. Das bedeutet, dass Grundstück, Erdarbeiten, Bodenplatte, Baunebenkosten (ca. 15-20 % der Bausumme) und Außenanlagen noch hinzukommen. Rechnen Sie realistisch mit Gesamtkosten vom 2-fachen des Hauspreises und mehr – abhängig von Grundstückslage (siehe z.B. Übersicht des Statistischen Bundesamts nach Bundesland), Ausstattungswünschen und Eigenleistung. Geht man bei einem Bungalow mit 100 qm von einem Preis von 300.000 Euro als Durchschnittswert für die schlüsselfertige Ausbaustufe aus, empfehlen wir Ihnen, etwa 600.000 Euro gesamte Baukosten anzunehmen.
Hinweis: Die hier angegebenen Preise für Bungalows bis 100 qm basieren auf einer Analyse von rund 400 Bungalow-Angeboten in unserer Datenbank, Stand: Januar 2026.
Die folgende Tabelle zeigt Ihnen die typischen Kosten nach Ausbaustufe im Überblick:
| Ausbaustufe | Preis/qm | Gesamtpreis 100 qm | Was ist enthalten? |
|---|---|---|---|
| Bausatzhaus | 1.100-1.800 Euro | 110.000-180.000 Euro | Bausatz, maximale Eigenleistung erforderlich |
| Ausbauhaus | 1.800-2.200 Euro | 180.000-220.000 Euro | Rohbau + Fenster/Türen, Innenausbau fehlt |
| Schlüsselfertig günstig | 2.200-2.500 Euro | 220.000-250.000 Euro | Rohbau + Innenausbau in preiswerter Basisausführung, Typen-Grundriss, meist ohne Böden/Malern |
| Schlüsselfertig Standard | 2.500-3.000 Euro | 250.000-300.000 Euro | Rohbau + Innenausbau in mittelpreisiger Ausführung, Individualisierungen lt. Vertrag, meist ohne Böden/Malern |
| Schlüsselfertig gehoben | 3.000-4.000 Euro | 300.000-400.000 Euro | Hochwertige Ausstattung, höherer Energiestandard, gehobene Haustechnik, große Glasflächen, inkl. einiger Sonderausführungen |
| Schlüsselfertig Luxus | 4.000+ Euro | 400.000+ Euro | Individuelle Planung, Premium-Ausstattung (Edel-Oberflächen, Design-Bäder, ggf. Maßanfertigungen), modernste Haustechnik/Smart Home, höchster Energiestandard |
Unsere Spartipps: So senken Sie beim kleinen Bungalow Preise & Kosten
- Standardgrundriss statt individuelle Planung
- Eigenleistung bei Innenausbau
- Einfache Dachform (Sattel- statt Walmdach)
- Platzsparender, offener Grundriss ohne Verkehrsflächen
- Verzicht auf Unterkellerung bzw. statt Voll- eine Teilunterkellerung
- Mindestens drei Angebote zu bauähnlichen Objekten vergleichen
Bungalow 80 qm: Schlüsselfertiger Preis
Kosten Bungalow 100 qm schlüsselfertig
Kleine Bungalows: Preise als Ausbauhaus
Bungalow bis 100 qm: Grundriss & Zimmeraufteilung

Bei einem Bungalow bis 100 qm ist intelligente Grundrissplanung das A und O. Jeder Quadratmeter zählt – und muss sinnvoll genutzt werden, damit Ihr Zuhause großzügig wirkt und nicht beengt. Die gute Nachricht: Gerade bei kleinen Bungalows haben Sie maximale Flexibilität, denn tragende Wände für die zweite Etage entfallen, und Dachschrägen müssen nicht beachtet werden. Sie können Räume also viel offener und fließender gestalten als in einem mehrstöckigen Haus.
Beim Grundriss für einen Bungalow mit 80-100 qm liegt der Schlüssel in 4 Prinzipien:
- Offene Wohnbereiche schaffen Weite. Verbinden Sie Küche, Essbereich und Wohnzimmer zu einem großzügigen Raum von 35-40 qm – dem kommunikativen Herzstück Ihres kleinen Bungalows. Durch den Verzicht auf Trennwände gewinnen Sie nicht nur gefühlte Quadratmeter, sondern auch viel Licht und breite Sichtachsen.
- Multifunktionale Räume clever einplanen. Ein Arbeitszimmer kann gleichzeitig als Gästezimmer dienen, wenn Sie ein Schlafsofa integrieren. Der Hauswirtschaftsraum ist gleichzeitig Technikraum für Heizung und Waschmaschine – so bleibt das Badezimmer aufgeräumt.
- Verkehrsflächen minimieren. Flure und Dielen sollten maximal 10-12 % der Gesamtfläche ausmachen und Lösungen für Aufbewahrung bieten. Planen Sie stattdessen lieber einen zentralen Zugang, von dem alle Räume abgehen. Schiebetüren statt Drehtüren sparen zusätzlich wertvollen Stellplatz.
- Stauraum clever integrieren. Raumhohe Einbauschränke im kleinen Bungalow nutzen jeden Zentimeter bis zur Decke und bieten 30-40 % mehr Platz als freistehende Möbel. Nischen zwischen Räumen, Bereiche unter Fenstern oder hinter Türen werden zu schmalen Einbauschränken oder Regalen. Multifunktionale Möbel wie Betten mit Bettkasten, Sitzbänke mit Stauraum oder Couchtische mit Hubtisch ergänzen das Konzept. Wichtig: Bereits in der Bauphase einplanen!
Wie sieht nun eine optimale Raumaufteilung konkret aus? Die folgende Tabelle zeigt Ihnen ein bewährtes Beispiel für einen Grundriss eines 100-qm-Bungalows, der sich vielfach in der Praxis bewährt hat:
| Raum | Größe | Prozent der Wohnfläche |
|---|---|---|
| Offener Wohn-/Essbereich + Küche | 35-40 qm | 35-40 % |
| Elternschlafzimmer | 12-14 qm | 12-14 % |
| Kinderzimmer/Büro | 10-12 qm | 10-12 % |
| Badezimmer | 8-10 qm | 8-10 % |
| Gäste-WC | 3-4 qm | 3-4 % |
| Technik/Hauswirtschaftsraum | 5-7 qm | 5-7 % |
| Flur/Diele | 10-12 qm | 10-12 % |
| Gesamt | ca. 100 qm | 100 % |
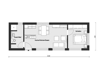
Grundriss Bungalow 100 qm: Ideen
Grundriss Bungalow 80 qm
Kleiner Bungalow: Grundriss bis 70 qm
Bungalow bis 100 qm: Grundstücksplanung
Auch ein kleiner Bungalow benötigt mehr Grundfläche als ein gleichgroßes mehrstöckiges Haus – schließlich verteilen sich alle Räume auf einer Ebene. Doch wie viel Grundstück brauchen Sie wirklich für einen 100-qm-Bungalow?
Kleiner Bungalow: Die richtige Grundstücksgröße:
- Minimum: 300-400 qm – möglich bei optimaler Ausnutzung und kompakter Bauweise, oft jedoch mit wenig Garten und ohne Stellplatz.
- Komfortabel: 400-500 qm – bietet Platz für Bungalow, Garage, Terrasse und einen angemessenen Garten, maximal ein Stellplatz.
- Großzügig: 500-600 qm – ermöglicht großen Garten, Doppelgarage und weitläufigere Außenanlagen
Bebauungsplan beachten – die GRZ entscheidet:
Entscheidend ist die Grundflächenzahl (GRZ) aus dem Bebauungsplan Ihrer Gemeinde. Sie gibt an, welcher Anteil des Grundstücks bebaut werden darf. Beispielrechnung: Bei einer GRZ von 0,4 dürfen Sie auf einem 500 qm großen Grundstück maximal 200 qm bebauen (500 qm × 0,4 = 200 qm). Das reicht für einen 100-qm-Bungalow plus Garage oder Carport. Bei einer strengeren GRZ von 0,3 wären nur 150 qm bebaubare Fläche erlaubt – dann wird es eng.
Garage oder Carport beim Bungalow mit 100 qm einplanen:
Je nach Grundstück, Budget und gewünschtem Komfort lohnt sich die Entscheidung früh. Als grobe Richtwerte gelten:
- Einzelgarage: häufig 18-20 qm Grundfläche (z. B. ca. 3×6 m)
- Doppelgarage: häufig 35-40 qm Grundfläche (z. B. ca. 6×6 m)
- Carport: meist günstiger als eine Garage (oft ca. 5.000-10.000 Euro statt ca. 15.000-25.000 Euro) und kann kompakter geplant werden (ab ca. 15–18 qm, abhängig von Tiefe/Überständen und Stellplatzbedarf)
Außenanlagen nicht vergessen:
Neben Haus und Garage brauchen Sie Platz für:
- Terrasse: ca. 20–30 qm für komfortables Außenwohnen (Richtwert)
- Zufahrt & Stellplatz: ca. 15–25 qm (z. B. 3,0 m breit und 5–8 m lang – komfortabel geplant; Mindestmaße sind oft kleiner)
- Garten: Die Restfläche des Grundstücks steht Ihnen zur freien Gestaltung zur Verfügung.
Praxis-Tipp (Beispielrechnung):
Auf einem 450 qm großen Grundstück mit GRZ 0,4 sind rechnerisch 180 qm Grundfläche zulässig. Wenn Sie Bungalow (100 qm), Einzelgarage (20 qm), Terrasse (25 qm) und Zufahrt (20 qm) einplanen, belegen Sie zusammen 165 qm. Damit bleiben 450 - 165 = rund 285 qm als Restfläche (z. B. Garten) – und Sie liegen in diesem Beispiel gleichzeitig unter den 180 qm aus der GRZ. (Hinweis: Was genau auf die GRZ angerechnet wird und ob/wie GRZ-Überschreitungen zulässig sind, regelt der Bebauungsplan.)
Kleine Bungalows: Vor- & Nachteile
Bungalow klein: Vorteile
Kosteneffizient bei Bau- & Betriebsausgaben dank kompakter Bauweise
Pflegeleicht wegen geringerer Wohnfläche
Barrierearm & altersgerecht
Überschaubar, kurze Wege im Alltag
Alle Familienmitglieder auf einer Ebene
Flexible Grundrissgestaltung, da kaum tragende Innenwände
Bungalow klein: Nachteile
Weniger Platz, limitierter Stauraum, falls kein Keller geplant
Weniger Privatsphäre bei mehr als 3 Personen
Größeres Grundstück als bei mehrgeschossigem Haus mit gleicher Wohnfläche nötig
Kleine Bungalows: Finanzierung und Förderung
Die Finanzierung Ihres kleinen Bungalows steht und fällt mit guter Vorbereitung. Realistisch betrachtet benötigen Sie für ein schlüsselfertiges 100-qm-Projekt inklusive Grundstück insgesamt rund 600.000 Euro – je nach Region und Ausstattung.
Eigenkapital: Die Basis Ihrer Finanzierung
Banken erwarten in der Regel 20-30 % Eigenkapital der Gesamtkosten. Bei 600.000 Euro Gesamtkosten wären das 120.000-180.000 Euro. Je mehr Eigenkapital Sie mitbringen, desto bessere Konditionen erhalten Sie beim Baudarlehen. Eine Besonderheit: Eigenleistung als "Muskelhypothek" wird von vielen Banken mit bis zu 15 % der Bausumme als Eigenkapital anerkannt. Wenn Sie handwerklich geschickt sind, können Sie so 30.000-90.000 Euro "einbringen".
Baudarlehen: Das Fundament
Das klassische Annuitätendarlehen deckt den Großteil Ihrer Baukosten ab. Die Konditionen hängen von Eigenkapitalquote, Bonität und Zinsbindung ab. Aktuell lohnt sich der Vergleich mehrerer Anbieter besonders, da die Zinsunterschiede erheblich sein können. Viele Bauleute kombinieren mehrere Darlehen mit unterschiedlichen Zinsbindungen, um flexibel zu bleiben.
KfW-Förderung
Verschiedene Programme der KfW bieten zinsgünstige Kredite für den Neubau zu Top-Konditionen. Mehr dazu in den FAQ. Zudem lassen sich weitere Fördertöpfe auf Länder- oder Kommunenebene anzapfen.
Kleiner Bungalow: Finanzierungs-Checkliste: So gehen Sie vor
- Gesamtkosten realistisch kalkulieren: Haus + Grundstück + Baunebenkosten (15-20 %) + Außenanlagen + Puffer
- Finanzierungsplan erstellen: Eigenkapital, Darlehen, Förderungen kombinieren
- Fördermittel VOR Baubeginn beantragen: Nachträgliche Anträge werden abgelehnt!
- 10-15 % Puffer einplanen: Unvorhergesehenes kommt immer – besser vorbereitet sein
- Energieberatung hinzuziehen: Wird selbst gefördert und oft Voraussetzung für Förderung
Wichtig: Lassen Sie sich von einer unabhängigen Finanzberatung unterstützen. Die Förderlandschaft ist komplex, aber mit professioneller Hilfe holen Sie das Maximum für ihren Bungalow mit 100 qm heraus.
Massiv- & Fertighaus-Bungalow bis 100 qm: Häufige Fragen

































































































