Bungalow mit Garage bauen
Moderne Bungalows mit Garage bieten sich gerade am Stadtrand oder im ländlichen Raum an, da der fahrbare Untersatz hier benötigt wird und entsprechend untergebracht werden muss. Doch welche weiteren Vorteile gibt es bei diesem Haustyp, und was kostet ein Bungalow mit Garage?
Hier auf der Seite finden Sie Antworten zu diesen Fragen sowie zahlreiche Bungalow-Optionen verschiedener Baufirmen.
Wer beim Bungalow mit Garage die perfekte Lage für den geschützten Parkraum bei direktem Einbau in das Haus sucht, hat verschiedene Optionen. Diese präsentieren wir Ihnen anhand unterschiedlicher Grundrisse für Ihren Bungalow mit Garage.
Moderne Bungalows mit Garage: Kosten
Bei einem Bungalow-Haus mit Garage hängen Preise und Kosten unter anderem von der Hausgröße, Dachkonstruktion, Ausbaustufe, Grundrissgestaltung und eingesetzten Materialien ab.
Im Schnitt beläuft sich eine Garage auf Kosten von 5.000 bis 10.000 Euro, die zusätzlich zum reinen Hauspreis anfallen. Günstiger sind vollintegrierte Garagen als freistehende Alternativen, da hier unter anderem auf die Errichtung einer ganzen Wand inklusive Außendämmung verzichtet werden kann. In der schlüsselfertigen Ausbaustufe sollten Sie als Preis für Ihren Bungalow ohne Garage durchschnittlich 1.800 bis 2.500 Euro pro Quadratmeter ansetzen und Kosten für Keller oder Bodenplatte, Grundstück und die Baunebenkosten ebenfalls mit einkalkulieren.
Ein 100 qm Bungalow mit Garage kostet im Mittelwert also:
- Hauspreis Bungalow mit Garage: 200.000 Euro + 7.500 Euro
- Grundstück (540 qm à 260 Euro): 140.400 Euro
- Grundstücksnebenkosten 6,5 %: 9.126 Euro
- Bodenplatte (150 Euro/qm): 15.000 Euro
- Baunebenkosten: 45.000 Euro
- Sonstige Kosten: 15.000 Euro
= Bungalow mit Garage: Kosten gesamt 423.026 Euro
Besonderheiten beim Bungalow mit Doppelgarage
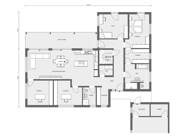
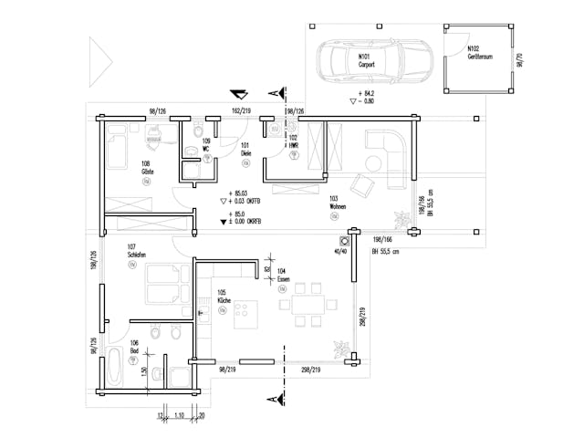
Beim Bungalow mit Doppelgarage ist ein ausgedehntes Baugrundstück Grundvoraussetzung. Denn die Grundfläche ist ohnehin schon aufgrund der ebenerdigen Architektur größer als bei mehrgeschossigen Häusern mit gleicher Wohnfläche, und bei einem Bungalow mit Doppelgarage fällt diese natürlich auch größer aus – einschließlich einer breiten Zufahrt. So kommen Sie auf mindestens 80 Quadratmeter mehr. Gleiches gilt bei einem Bungalow mit Garage und Carport, den Sie entweder zwischen Haus und Garage oder vor letzterer einplanen können.
Übrigens: Wenn Sie aus Kostengründen oder aufgrund der Grundstücks-Gegebenheiten einen Bungalow mit Garage nur schwer umsetzen können, bietet sich vielleicht ein Carport als günstigere und platzsparendere Lösung an. Bei einem Winkelbungalow mit Garage, kann diese auch innerhalb des Hauses ideal eingebaut werden.
Moderne Bungalows mit Garage sind besonders komfortabel, da Sie bei der integrierten Version unmittelbar vom Haus ohne Umweg durch Kälte und Nässe zu Ihrem PKW gelangen. Außerdem dient bei einem einfachen Bungalow oder Winkelbungalow mit Garage, die direkt angeschlossen ist, das Unterstell-Gebäude als zusätzlicher Wärmeschutz. So können Sie Kosten bei der Außendämmung an der gemeinsamen Trennwand sparen.
Bungalows mit Garage: Favoriten unserer Baupartner
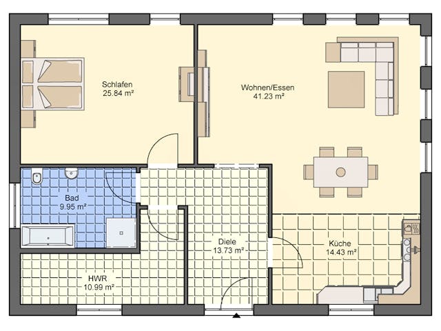
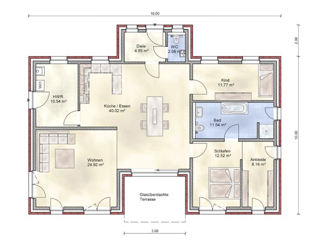
Bungalow mit Garage: Grundriss-Ideen
Wer beim Bungalow mit Garage die perfekte Lage für den geschützten Parkraum sucht, dem stehen verschiedene Optionen bereit. Einerseits kann eine direkte Einbindung der Garage in den Bungalow von Vorteil sein, wenn beispielsweise auf einem kleinen Grundstück gebaut wird. Besonders beliebt ist eine separate, aber direkt an das Haus angrenzende Garage. Eine freistehende Garage ist hingegen die ideale Wahl, wenn die Garage erst nachträglich errichtet wird.
Egal ob Planung für einen 100 qm Bungalow mit Doppelgarage oder Grundriss für einen Bungalow von 160 qm mit Garage für ein Auto, mit folgenden Tipps nutzen Sie die Grundfläche optimal aus:
- Beim Bungalow mit Garage sollte diese an der Nordseite liegen, da hier keine Fenster im Haus verbaut werden können, Sie so aber auch nicht auf zu viel Sonnenlicht verzichten müssen.
- Wirtschafts-, Aufbewahrungs- oder Haustechnikraum sind beim Bungalow mit Garage neben selbiger gut aufgehoben, Schlaf- und Wohnzimmer sollten ruhiger und abgeschirmter eingeplant werden. Dies lässt sich insbesondere bei einem Winkelbungalow gut realisieren.
- Die Zufahrtsmöglichkeit bestimmt außerdem beim Bungalow mit Garage deren ideale Position, denn je kürzer die Zufahrt, desto preiswerter die entsprechenden Kosten und desto mehr Platz bleibt für Ihren Garten.
- Beim Bungalow mit Garage bietet sich die gleiche Dachkonstruktion beziehungsweise ein einziges gemeinsames Dach für ein harmonisches Außenbild an. Beliebt sind beispielsweise Sattel- oder Pultdach genauso wie Walm- oder Flachdach.








































