Haus mit Einliegerwohnung: Vorteile & Preise
Die Bauentscheidung für ein Einfamilienhaus oder ein Zweifamilienhaus ist in der Regel eine Frage der individuellen Bedürfnisse und Möglichkeiten. Während das Einfamilienhaus zweifelsfrei eine günstige Wohnraumschaffung für die Alleingänger unter den Häuslebauern ist, sorgt das Zweifamilienhaus dafür, dass ein Mehrgenerationenwohnen Wirklichkeit werden kann oder aber sich dank Mieteinkünften die Einnahmen steigern lassen. Doch wie so oft ist auch bei den Hausbauentscheidungen nicht alles Schwarz oder Weiß und es werden Abstufungen benötigt, für die eigene Hauskonzepte ins Leben zu rufen sind. Denn während ein Einfamilienhaus einerseits zu wenig Platz für zwei Haushalte bietet, so ist gerade der älteren Generation der Wohnraum eines Zweifamilienhauses zu groß. Es muss also eine Zwischenstufe her und diese bietet definitiv das Haus mit Einliegerwohnung.
Einfamilienhaus mit Einliegerwohnung
Einfamilienhaus, Zweifamilienhaus, Einliegerwohnung: die Abgrenzungen
Handelt es sich bei einer Immobilie um ein Einfamilienhaus, ein Zweifamilienhaus oder ein Haus mit Einliegerwohnung? Das Eigenheim diesbezüglich abzugrenzen besitzt eine gewisse Relevanz. Doch dafür muss man wissen, was sich hinter den einzelnen Begrifflichkeiten verbirgt:
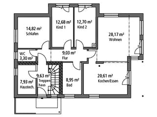
Ein Einfamilienhaus bietet Wohnraum für eine Familie, sprich einen Haushalt. Nichtsdestotrotz kann in einem Einfamilienhaus eine Einliegerwohnung, also ein zweiter Wohnraum integriert sein. Vor allem dann, wenn Sanitäranlagen und / oder Küche einer Gemeinschaftsnutzung zur Verfügung stehen, ist das Haus mit Einliegerwohnung dennoch ein Einfamilienhaus.
Zweifamilienhaus mit Einliegerwohnung
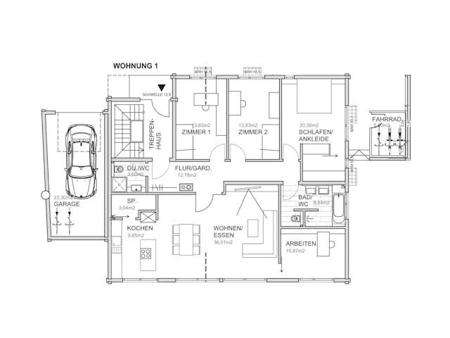
Das Zweifamilienhaus ermöglicht zwei getrennte Haushaltsführungen in zwei in sich abgeschlossenen Wohnungen. Diese können im Aufbau sowohl identisch als auch different, in der Fläche gleich wie auch durch Größendiskrepanzen gekennzeichnet sein – die beiden Wohnungen des Zweifamilienhauses müssen folglich nicht gleichberechtigt existieren. Somit kann auch ein Haus mit Einliegerwohnung ein Zweifamilienhaus werden, nämlich dann, wenn die Einliegerwohnung über eine eigene Küche und eigenständige Sanitäreinrichtungen verfügt. Zumindest im steuerrechtlichen Sinne ist dann von einem Zweifamilienhaus die Rede.
Haus mit Einliegerwohnung bauen
Die Einliegerwohnung ist somit ein Wohnraum, der sowohl im Ein- wie auch im Zweifamilienhaus zu finden ist. Es muss sich nicht unbedingt um eine abgeschlossene Wohnung handeln, wohingegen eine untergeordnete Bedeutung der Einliegerwohnung gegenüber der Hauptwohnung deutlich erkennbar zu sein hat. Einliegerwohnungen werden häufig mit separatem Eingang in den Kellerbereich eines Wohnhauses integriert, prinzipiell ist jedoch auch eine direkte Hauptgebäudeinvolvierung kein Ausschlusskriterium für den Begriff Einliegerwohnung.
Weitere Häuser mit Einliegerwohnung























