Kubushaus im Bauhausstil bauen
Kubushäuser zeichnen sich durch eine besondere Architektur aus. Sie werden im Stil eines Bauhauses errichtet und überzeugen mit einem modernen Design, in dem es sich für die Eigentümer der Immobilie angenehm und komfortabel leben lässt.
In dem folgenden Beitrag erfahren Sie, was ein Kubushaus auszeichnet und anhand welcher Merkmale Sie es erkennen können. Wir informieren Sie über die Kosten und zeigen Ihnen die Vorteile auf, die Sie mit der Errichtung eines Kubushauses für sich nutzen können. Abschließend weisen wir Sie auf die Punkte hin, die bei der Erstellung des Grundrisses zu beachten sind.
Kubushaus: Definition und Merkmale
Kubushäuser - auch als Cubushäuser bekannt - sind moderne Wohnimmobilien, die in der Form eines Würfels errichtet werden. Sie zeichnen sich bei den Bewohnern besonders deshalb aus, weil sie in einem modernen und schlichten Design gehalten sind. Kennzeichnend ist, dass die Dachform für ein Kubushaus in einem Flachdach besteht. Hinsichtlich der Größe gibt es für ein Kubushaus keine bestimmten Vorgaben. Sie können z. B. ein Kubus Haus klein, also bis 100 qm, oder ein weitläufiges Kubus Haus mit Garage mit über 150 qm Wohnfläche errichten.
Möchten Sie in einem besonders nachhaltigen Kubushaus leben, entscheiden Sie sich für ein Kubushaus aus Holz, das mit entsprechend verglasten Fensterflächen versehen ist. Über das für die quadratische Immobilie typische Flachdach können Sie frei verfügen. So ist es auch möglich, dass Sie diese - bei Vorliegen einer entsprechenden Baugenehmigung - z. B. begrünen.
Die Architektur des Kubushauses in der Form eines Würfels soll dem Eigentümer die Funktionalität und schrägenlose optimale Wohnraumverteilung eines modernen Eigenheims ermöglichen. Dies bedeutet, dass die Nutzung der Innenräume speziell auf die Bedürfnisse der Eigentümer zugeschnitten und die Küche als offener Bereich geplant ist, der ohne speziellen Übergang bis in den Wohnbereich ragt. Diese Vorgehensweise bei der Planung ist bei der Errichtung eines Kubushauses charakteristisch.
Die Fenster werden bei einem Kubushaus in Abstimmung mit den Wänden eingesetzt. Große Fensterflächen sorgen bei diesem Baustil dafür, dass Sie über ausreichend lichtdurchflutete Räume verfügen, die Sie nach Ihren individuellen Wünschen gestalten können.
Wo dürfen Kubushäuser errichtet werden?
Kubushäuser dürfen überall dort errichtet werden, wo es der örtliche Bebauungsplan zulässt. Da es sich bei Kubushäusern aber um schlicht-moderne Immobilien handelt, dürften Sie hier in der Regel keine größeren Probleme zu erwarten haben. Planen Sie mit mehreren Personen dort einzuziehen, empfiehlt sich eine zweigeschossige Immobilie. Hier müssen Sie darauf achten, dass Sie in der Gegend, in der Sie Ihr Kubushaus errichten möchten, ein zweigeschossiges Haus bauen dürfen. In dem Bebauungsplan finden Sie die Vorgaben, die für die Dachform und die Geschossanzahl in der Straße erlaubt sind, in der Sie Ihre Immobilie in der Form eines Würfels bauen möchten.
Möchten Sie ein Kubus Haus bauen, müssen Sie sich rechtzeitig um die erforderliche Baugenehmigung kümmern. Hierfür stellen Sie bei der zuständigen Baubehörde einen Bauantrag. Die für die Stellung des Bauantrags erforderlichen Informationen finden Sie ebenfalls in dem Bebauungsplan. Wenn Sie nichts verkehrt machen wollen, stellen Sie vor dem Bauantrag bei Ihrer örtlichen Baubehörde eine Bauvoranfrage. Hierin informiert man Sie darüber, über das Grundstück, das Sie erwerben möchten, für die Bebauung mit einer Immobilie vorgesehen ist.
Kubushaus-Kosten & Preise
Welche Kubushaus-Kosten Sie bei der Errichtung der Immobilie einplanen müssen, hängt zu einem großen Teil von Ihren individuellen Bedürfnissen ab. Als grobe Orientierung sollten Sie einen Quadratmeterpreis von 2.000 Euro einkalkulieren. Planen Sie für sich und Ihre Familie ein Kubushaus in kompakter Bauweise, könnten sich die Hauspreise ergeben, die sich im Schnitt bis etwa 300.000 Euro bewegen. Dabei bildet die Ausbaustufe einen wesentlichen Faktor. Hierbei sind die Leistungen gemeint, die Ihnen der Errichter der Immobilie anbietet, um den von Ihnen gewünschten Zustand bei der Übergabe des Schlüssels herbeizuführen. Vergessen Sie nicht, weitere Baukosten beim Kubushaus mit zu bedenken.
Kubushaus bauen: Vorteile
Sie planen, ein Kubushaus zu bauen? Dann können Sie die folgenden Vorteile für sich nutzen:
- Ein offenes Raumkonzept erlaubt es Ihnen, die Immobilie nach Ihren Wünschen zu gestalten.
- Große Fenster und offene Flächen sorgen tagsüber und abends für eine entspannte Atmosphäre.
- Das Obergeschoss können Sie vollwertig nutzen, weil keine störenden Dachschrägen integriert sind.
- Auf dem Flachdachrichten Sie sich eine Dachterrasse ein. Ebenso ist es möglich, dass Sie das Dach komplett begrünen und damit Ihren Beitrag für ein besseres Klima leisten.
- Solarzellen lassen sich mit einfacher Handhabung anbringen. Nachhaltig senken Sie hiermit Ihre laufenden Energiekosten.
Ein Kubushaus bietet Ihnen alle Möglichkeiten, um energieeffizient zu wohnen.
Kubus Haus innen: Einrichtung und Design
Nach Ihren speziellen Bedürfnissen gestalten Sie auch die Inneneinrichtung Ihres Kubushauses. Ziehen Sie dort allein mit Ihrer Familie ein, errichten Sie einen Bungalow, bei dem Sie die stufenlose Bauweise für sich nutzen können. Dies eignet sich nicht nur für Familien mit kleinen Kindern. Auch im Seniorenalter profitieren Sie von der ebenerdigen Bauweise, die Ihnen ein Bungalow bietet.
Als Doppelhaus eignet sich das Kubushaus, wenn Sie hier z. B. mit den Eltern oder einem befreundeten Paar einziehen möchten. Jeder ist für sich und trotzdem sind die anderen nicht fern. Als weitere Bauweise kommt z. B. das Mehrgenerationenhaus in Betracht, bei dem Sie mit mehreren Generationen unter einem Dach leben, ohne sich ständig über den Weg laufen zu müssen.
Mit jeder Form Ihres Kubushauses wählen Sie ein gradliniges Design, das Ihnen viel Raum zum Leben lässt. Die energieeffiziente Bauweise unterstützt Sie bei der Umsetzung der KfW an ein energiebewusstes Wohnen.
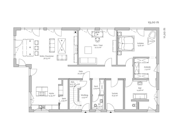
Kubushäuser: Grundrisse
Hinsichtlich der Kubushäuser-Grundrisse können Sie sich zwischen vielen Alternativen entscheiden. Profitieren Sie von modernen Raumkonzepten, die Ihnen einen Ausblick auf den Garten ermöglichen und bei welchen bestimmte Energiestandards berücksichtigt wurden. Sie erhalten ein schlüsselfertiges Objekt, in das Sie nach der Übergabe der Haustürschlüssel einziehen können.












