Fertig- oder Massivhaus mit Keller
Die Vorteile eines Kellerbereichs in einem Eigenheim sind vielfältig, insbesondere in Bezug auf zusätzlichen Raum für Hobbys, ein Home Office sowie für Lagerzwecke oder die Unterbringung einer Waschküche. Ein solches Feature erhöht nicht nur die Nutzfläche, sondern steigert auch den Marktwert einer Immobilie.
In der Vergangenheit war der Bau von Häusern mit Keller in Deutschland und Österreich fast schon ein Standard. Heutzutage wird jedoch aus Kostengründen zunehmend beim Bau eines Einfamilienhauses der Keller ausgelassen. Denn ein Haus mit Keller verursacht höhere Baukosten als ein vergleichbares Objekt ohne Unterkellerung. Moderne Grundrisskonzepte ermöglichen es zudem, ohne einen Keller auszukommen.
Trotzdem erkennen viele Baufamilien im Nachhinein den praktischen Nutzen eines Kellers und bedauern dessen Fehlen, da eine Realisierung im Nachhinein nicht möglich ist. Sowohl Anbieter von Fertighäusern als auch von Massivhäusern haben sich auf diesen Bedarf eingestellt und bieten sowohl Teil- als auch Vollunterkellerungen an. Insbesondere die Wahl eines Fertigkellers kann die Bauzeit deutlich verkürzen und somit schneller zum schlüsselfertigen Haus mit Keller führen.
Wie viel kostet ein Haus mit Keller?
Die Investition in ein Haus mit Keller wird von vielen trotz zusätzlicher Ausgaben positiv gesehen, da das Souterrain eine kosteneffektive Möglichkeit zur Erweiterung des Wohnraums darstellt. Für einen massiv gebauten Keller liegen die durchschnittlichen Kosten, je nachdem, ob Sie einen Nutz- oder Wohnkeller einplanen, zwischen 40.000 und 80.000 Euro, während ein Fertigkeller eine preiswertere Option darstellt, mit Startpreisen ab etwa 35.000 Euro. Allerdings können die endgültigen Kosten für den Bau eines Kellers variieren, abhängig von den verwendeten Baumaterialien, der Größe und den geologischen Gegebenheiten des Baugrundes.
Im Schnitt liegen bei einem Haus mit Keller die Kosten pro Quadratmeter oberhalb des Fundaments bei 2.000 Euro, das heißt, bei einer Wohnfläche von 120 Quadratmetern ist ein reiner Hauspreis von 240.000 Euro anzusetzen. Ein dazugehöriger Keller mit 60 Quadratmetern kommt im Mittel auf 45.000 Euro, insgesamt fallen also 285.000 Euro als Hauspreis mit Keller an. Zusätzlich in Ihr Budget einpreisen müssen Sie außerdem die Grundstückskosten, die Baunebenkosten sowie die Ausgaben für die Außenanlage wie die Gestaltung des Gartens oder das Anlegen einer Zufahrt.
Die Entscheidung für einen Keller, sei es ein Fertighaus mit Keller oder ein massiv gebautes Einfamilienhaus mit Keller, beeinflusst nicht nur die Gesamtkosten des Hauses, sondern auch dessen Funktionalität und Wert. Ein Haus mit Keller zu bauen bedeutet, die Nutz- oder Wohnfläche zu maximieren und gleichzeitig einen Mehrwert für die Immobilie zu schaffen. Obwohl die Kosten für ein Haus mit Keller initial höher sind, wird dieser Mehraufwand oft durch den langfristigen Nutzen und die Vielseitigkeit eines zusätzlichen Untergeschosses ausgeglichen.
Haus mit Keller: Kosten für das Untergeschoss
Die Hauptüberlegung gegen eine Unterkellerung beinhaltet oft die zusätzlichen Kosten, die beim Bau eines Hauses, sei es ein Fertighaus oder ein Massivhaus, mit Keller anfallen. Der finanzielle Mehraufwand geht hauptsächlich mit dem Bodenaushub und der erforderlichen Tiefgründung, welche teurer ist als eine Flachgründung, einher. Trotzdem ist zu beachten, dass der Wert eines Hauses mit Keller in der Regel um einen ähnlichen Betrag steigt, wie die Kosten für dessen Bau.
Die genauen Kosten für einen Keller variieren wie oben angesprochen, abhängig von der Größe des Hauses und anderen Faktoren. In Gebieten mit hohem Grundwasserspiegel müssen beispielsweise zusätzliche Maßnahmen zum Schutz der Kellerwände vor eindringendem Wasser ergriffen werden. Im Durchschnitt bewegen sich die Kosten für einen Keller je nach Größe und Ausbaustandard zwischen 40.000 und 80.000 Euro, was in etwa 5 bis 15 % der Gesamtbaukosten entspricht.
Was versteht man unter ‘ab OK’?
Ab OK, kurz für ‘ab Oberkante Kellerdecke oder Bodenplatte’, bedeutet, dass Haushersteller ihre Häuser üblicherweise ohne Keller offerieren. Beim Bau eines Hauses mit Keller müssen daher zusätzlich zum Grundpreis des Hauses die Kosten für den Kellerbau, aber normalerweise auch für die Bodenplatte, einkalkuliert werden. So können Sie eine realistische Einschätzung der Gesamtkosten des Hauses mit Keller vornehmen.
Haus bauen mit Keller: Sparen mit Teilunterkellerung
Eine Teilunterkellerung bietet eine kostensparende Möglichkeit beim Bau von Massiv- und Fertighäusern mit Keller, ohne die vollen Kosten eines großflächigen Souterrains zu verursachen. Immer mehr Baufamilien entscheiden sich für diese Variante, da sie ausreichend Platz für die Haustechnik, Vorrats- und Hauswirtschaftsräume sowie zusätzliche Abstellflächen bietet, während sie gleichzeitig die Baukosten reduziert.
Ein Kellerraum von etwa 25 bis 50 Quadratmetern reicht oft schon aus, um diese essentiellen Bedürfnisse zu decken. Diese Methode ermöglicht es, von den Vorzügen eines Kellers zu profitieren, ohne dabei tief in die Tasche greifen zu müssen. Sie können so das Beste aus beiden Welten genießen: den Nutzen eines Haus mit Kellers und eine schlankere Baukostenrechnung.
Massiv- oder Fertighaus mit Keller: Nutzungsmöglichkeiten
Der Keller eines Hauses bietet weit mehr als nur zusätzlichen Raum. Er spielt eine wichtige Rolle bei der Isolierung des Wohnbereichs vom Erdreich, was zu einer spürbaren Senkung der Heizkosten führt. Zudem trägt er zum Schutz des Mauerwerks vor Feuchtigkeit bei, was in den klimatischen Bedingungen Nord- und Mitteleuropas besonders relevant ist.
Die Nutzungsarten eines Kellers sind vielseitig und reichen weit über die traditionelle Lagerfunktion hinaus. So findet oft die Haustechnik, wie Heizsysteme und Wärmepumpen, hier ihren Platz. Darüber hinaus bieten Kellerräume Raum für praktische Zwecke wie Waschküchen, Vorratslager oder Werkstätten. Auch für Freizeitaktivitäten sind sie ideal: sei es als Partykeller, Trainingsraum, Sauna oder sogar als privates Schwimmbad. Die Möglichkeiten der Kellernutzung sind nahezu grenzenlos.
In einigen Fällen wird im Keller auch eine Garage integriert, was zusätzlichen Platz im Außenbereich schafft. Zudem können Kellerräume zu Büros, Gästezimmern oder sogar zu kompletten Einliegerwohnungen umfunktioniert werden, was die Flexibilität und den Wohnwert eines Hauses mit Keller zusätzlich erhöht.
Haus mit Keller zum Wohnen
Bei der Gestaltung eines Haus mit Kellers zu Wohnzwecken, beispielsweise als Arbeits- oder Gästezimmer, sind einige wichtige Aspekte im Hinterkopf zu behalten. Dazu zählen eine angemessene Deckenhöhe, ausreichend Tageslicht und Frischluftzufuhr, sowie eine effiziente Beheizung. Wenn Sie planen, im Keller eine Einliegerwohnung einzurichten, müssen Sie zusätzliche Vorschriften und Anforderungen beachten, um sicherzustellen, dass der Raum nicht nur komfortabel, sondern auch regelkonform gestaltet wird.
Fertigkeller für Ihr Fertig- oder Massivhaus
Die Verbindung eines Fertighauses mit einem vorgefertigten Keller ist eine beliebte Wahl, und sogar bei Massivhäusern in traditioneller Stein-auf-Stein-Bauweise wird oft ein Fertigkeller verwendet. Diese Entscheidung ist sinnvoll, da ein vorgefertigter Keller, ähnlich wie der Fertighausbau, die Bauzeit deutlich reduziert.
Diese modernen Kellerkomponenten, hergestellt aus industriellem Stahlbeton, werden gemäß den spezifischen Vorstellungen des Kunden gefertigt und auf der Baustelle rasch zusammengefügt.
Durch diese schnelle Montage ist, egal ob beim Massiv- oder Fertighaus, der Keller in nur wenigen Tagen einsatzbereit, was eine erhebliche Zeit- und Kostenersparnis mit sich bringt.
Haus bauen mit Keller: Vor- und Nachteile
Vorteile Haus mit Keller
Zusätzlicher Wohn- & Stauraum
Wertsteigerung der Immobilie
Besserer Wärmeschutz
Mieteinnahmen bei Nutzung als Einliegerwohnung
Nachteile Haus mit Keller
Längere Bauzeit
Kostenintensiverer Hausbau
Einbau von Fenstern unter Umständen schwierig
Keine Barrierefreiheit
Für wen bietet sich ein Haus mit Keller an?
Doch ist ein Fertig- oder Massivhaus mit Keller nun wirklich für Sie nötig? Die Antwort hängt von verschiedenen Aspekten ab, die für eine Unterkellerung sprechen, darunter zum Beispiel:
- geringe Grundstücksgröße
- Hanglage des Grundstücks
- eingeschossige Bauweise beim Bungalow
- Carport statt Garage
- Materialsportarten (Windsurfen, Skifahren, Kajak, Wandern mit Camping und Ähnliches)
- Wellnessbereich gewünscht
- Lärmintensive Hobbys (Musikinstrumente, Karaoke)
Je mehr dieser Punkte auf Ihre Wohnsituation zutreffen, desto eher sollten Sie sich für ein Haus mit Keller entscheiden, stimmen nur wenige bis keine dieser Faktoren mit Ihnen überein, erfüllt auch ein Hauswirtschaftsraum im Parterre Ihre Anforderungen.
Wann ist ein Haus mit Keller sinnvoll?
Baufamilien mit begrenztem Platzangebot auf ihrem Grundstück sollten die Option eines Haus mit Kellers ernsthaft in Betracht ziehen, denn ein Keller kann bei knappem Raumangebot eine sinnvolle Erweiterung darstellen. Auch im Kontext eines Bungalowbaus kann ein vollständig oder teilweise unter das Haus gebaute Keller wertvollen Wohnraum schaffen, der es ermöglicht, die Hauptebene des Hauses vorrangig für das tägliche Leben zu nutzen. Bei Hanglagen bietet sich ein Keller geradezu an, um als Wohnraum gestaltet zu werden, mit Fenstern und Türen zum Garten hin, die einen einladenden und funktionellen Wohnkeller erschaffen.
Wenn Sie sich für einen Keller entscheiden, ist es trotzdem unerlässlich, sowohl die Bodenbeschaffenheit als auch den Bebauungsplan zu berücksichtigen. Bei sehr steinigem Untergrund kann der Bau eines Kellers schwierig bis unmöglich sein.
Außerdem kann ein hoher Grundwasserspiegel die Kosten für den Kellerbau in die Höhe treiben, da eine komplexere Abdichtung erforderlich wird.
Unter Umständen ist ein Keller in einigen Regionen laut Bebauungsplan nicht gestattet, daher sollten Sie vorab in Erfahrung bringen, was auf Ihrem Grundstück realisierbar ist.
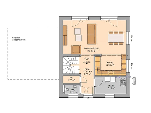
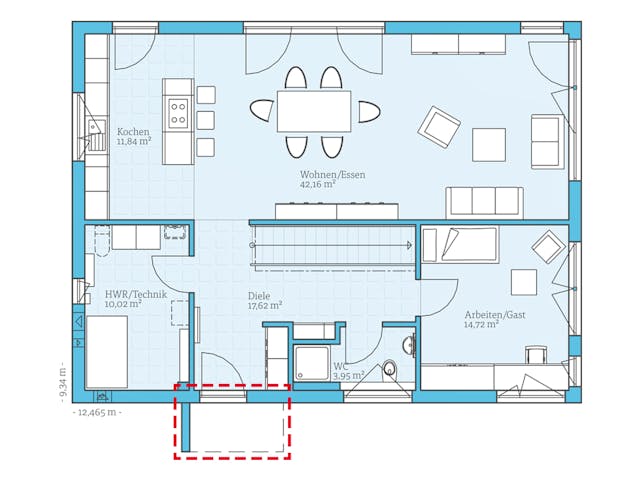
Fertig- und Massivhaus mit Keller: Grundriss-Anregungen
Alternative zum Haus mit Keller: Bodenplatte
Entschließen Sie sich, doch kein Haus mit Keller zu bauen, ist ein anderes Fundament vonnöten. Folgende Fundamentarten kommen in Betracht:
- Punktfundament
- Streifenfundament
- Plattenfundament beziehungsweise Bodenplatte
Abgesehen von diesen unterschiedlichen Fundamentoptionen ist eine Thermobodenplatte eine überlegenswerte Wahl, insbesondere für den Bau von Energiesparhäusern. Bei Passivhäusern ist ihr Einsatz sogar obligatorisch.
Thermobodenplatten bringen viele Vorteile mit sich. Zwar sind die anfänglichen Investitionskosten höher, doch langfristig lohnt sich diese Anschaffung, sowohl finanziell als auch im Hinblick auf den Umweltschutz. Sie bieten eine effiziente Wärmeisolierung, was zu niedrigeren Energiekosten und einem reduzierten ökologischen Fußabdruck führt.






















