Der Grundriss: Haus in Fertig- und Massivbauweise individuell planen
Bei Fertighäusern denken viele Bauherrenfamilien an ein Standard-Haus, dessen Grundriss sich nur marginal verändern lässt. Doch dem ist nicht so, denn Sie können Ihre Ideen vielseitig umsetzen und so auch im Fertigbau Ihr persönliches Traumhaus gestalten. Egal ob Sie geschlossene Räume oder eine offene Wohnform bevorzugen - vieles ist möglich. Wie beim selbst entworfenen Haus sind Ihre Grundriss-Ideen auch bei Fertighäusern umsetzbar. Neben allen Sonderwünschen finden Sie heute beinahe jeden Grundriss für IHR Haus, ohne dass Sie einen eigenen Entwurf einreichen brauchen. Beim Massivhaus lässt sich der Grundriss sogar noch stärker individualisieren.
Wichtige Fakten bei der Grundrissplanung
Das Fertighaus erfreut sich seit vielen Jahren wachsender Beliebtheit. Es ist etwas besser planbar als ein Massivhaus und Sie können Ihren Traum von den eigenen vier Wänden schneller leben. Möchten Sie den Grundriss für Ihr Haus nach Ihren persönlichen Vorstellungen abweichen, ist das als Sonderleistung realisierbar. Viele Möglichkeiten, darunter der beliebte amerikanische Grundriss, sind heute bereits als Standard und somit ohne Aufpreis erhältlich. Haben Sie sehr individuelle und kreative Ideen, können Sie wie beim Massivhaus den Grundriss auch beim Fertighaus ganz auf Ihre Bedürfnisse abstimmen.
Können Sie für Ihr Haus den Grundriss selbst zeichnen? Ja, es spricht nichts dagegen, Ihre Vorstellungen auf Papier oder in einer Software im Internet zu zeichnen. Bedenken Sie beim Entwerfen, dass auch ein offenes Fertighaus einen Grundriss mit ausreichend Wänden benötigt. Daher ist es immer sinnvoll, sich beim Zeichnen des Grundrisses von einem erfahrenen Architekten unterstützen zu lassen und die Statik zu beherzigen. Legen Sie Ihre Entwürfe bei Ihrem bevorzugten Bauunternehmen vor und passen Sie diese mit deren Expertenhilfe auf das machbare und kosteneffizienteste an.
Von der Idee bis zum fertigen Grundriss
Sie haben eine Idee oder bereits eine ganz konkrete Vorstellung, wie Sie die Raumaufteilung wünschen und wo es Türen, beziehungsweise ein offenes Wohnkonzept geben soll? Dann kann es sich lohnen, den Grundriss für Ihr Haus grob aufzuzeichnen und Ihre visualisierte Idee einem Fachmann vorzulegen. Dieser kann Ihr Haus nach den Grundriss Ideen zeichnen und die notwendigen Faktoren für die einwandfreie Statik einbeziehen. Es ist also immer sinnvoll, Ideen auf Papier zu bringen und so sicherzustellen, dass der Architekt Ihre Vorstellung vom perfekten Grundriss für das Haus kennt. Welche Haus Grundriss Ideen möglich sind, hängt auch von der Wohnfläche und damit von der Gesamtgröße Ihres Traumhauses ab. Fakt ist, dass Sie ein 100 qm Haus ebenso flexibel gestalten können wie ein großes Stadthaus für mehrere Generationen oder für Ihre Großfamilie.
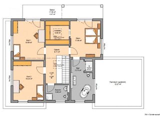
Übrigens: Es kann sich lohnen, sich fertige Hausgrundrisse anzusehen. Viele potenzielle Bauherren finden das von Ihnen favorisierte Wohnkonzept bereits in den heute erhältlichen Standards. Möchten Sie das Untergeschoss offen und lichtdurchflutet halten, während Sie den Oberbereich als Schlafetage und für die Kinderzimmer nutzen? Dann finden Sie ganz sicher einen geeigneten Haus-Grundriss, den Sie bei Bedarf ein wenig abwandeln und auf Ihre persönlichen Bedürfnisse anpassen können.
So flexibel kann das Fertighaus im Grundriss sein
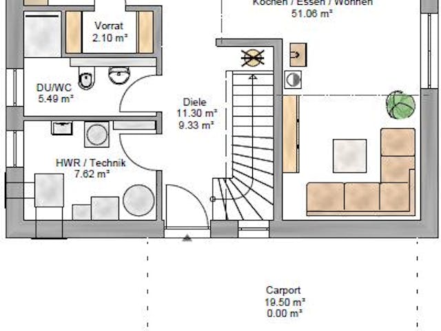
Fertig- und Massivhäuser können ein- oder mehrgeschossig gebaut werden. Beim Fertighaus ist ein Grundriss, bei dem sich alle Zimmer auf einer Etage befinden (Haustyp Bungalow), besonders beliebt. Wenn Sie heute zukunftsperspektivisch planen und bauen, können Sie Ihre eigenen vier Wände dauerhaft bewohnen. Der barrierefreie Bau schließt nachträgliche Umbaukosten aus und ist Ihre Chance, den Grundriss beim Haus von Anfang an mit Blick auf die dauerhafte Nutzung zu planen. Auch in zweigeschossigen Häusern und mit der Option eines späteren Ausbaus des Dachgeschosses stehen Ihnen flexible Flächenaufteilungen zur Verfügung. Die Zeiten, in denen "ein Fertighaus wie das Andere aussieht", gehören schon lange der Vergangenheit an. Der freien Entfaltung durch eine individuelle Gestaltung des Traumhauses steht auch beim Kauf eines Fertighauses nichts entgegen. Zahlreiche Anbieter räumen der Bauherrenfamilie auch beim Fertighaus Grundriss Mitspracherecht ein.
Unterschiede Fertighaus und Massivhaus Grundriss
Die gibt es an und für sich nicht. Ob Fertighaus oder Massivhaus - der Grundriss lässt sich ganz individuell gestalten. Früher war das nur bei Massivhäusern möglich, während Fertighäuser eine standardisierte Raumaufteilung hatten und wenig Freiraum für eigene Ideen boten. Heute kann man sein Haus im Grundriss auch in Fertigbauweise so gestalten, wie man sich den Traum in den eigenen vier Wänden vorstellt und wie man leben möchte, mit einigen wenigen Einschränkungen, da tragende Wände nicht so leicht wie beim Massivhaus umgesetzt werden können. Es empfiehlt sich, den Grundriss für ein Haus mit höchstmöglicher Flexibilität zu planen. Vergrößert sich die Familie oder sorgen Veränderungen im Lebensentwurf für eine Anpassung der Räumlichkeiten, kann man den Grundriss nachträglich anpassen. Wer im Vorfeld perspektivisch plant und seine Ideen mit Blick in die Zukunft umsetzt, findet die besten Hausgrundrisse für aktuelle und zukünftige Bedürfnisse.
Die passenden Hausgrundrisse für Ihr Traumhaus
Heute ist es ganz einfach, Ihren Traum vom individuellen Grundriss in Ihrem Haus umzusetzen und sich dennoch für die günstige und schnelle Fertigbauweise zu entscheiden. Die Realisierung eigener Ideen und Wohnträume ist in der Fertigbauweise ebenso möglich wie beim Massivhaus, für Bungalows, oder für kleine und große Einfamilienhäuser. Denn der Grundriss bietet enormen Spielraum, egal ob Sie ein offenes Raumkonzept oder ein Haus mit abgeschlossenen Räumen bevorzugen. Schon in den Standards finden Sie verschiedene Lösungen, die vielleicht bereits perfekt oder nach einer kleinen Abwandlung zu Ihren Vorstellungen passen. Haben Sie eine ganz andere Idee, ist der eigene Grundriss als Sonderleistung jederzeit möglich. Dabei entscheiden Sie sich für die Sicherheit, dass ein Architekt plant und dass Ihr Haus mit dem Grundriss nach Ihren Ideen alle statischen Anforderungen erfüllt. Am besten planen und entwerfen Sie, wenn Sie Ihr Haus nach der Grundrisserstellung virtuell einrichten und sich für ein 3D Projekt entscheiden.
Tipp: Bei Unsicherheiten ist eine Baufirma immer der richtige Ansprechpartner, der Sie über die Machbarkeit Ihrer Ideen aufklärt und der Ihnen Tipps für den optimalen Haus-Grundriss gibt. Sie werden erstaunt sein, wie individuell Sie den Grundriss für Ihr Haus in Fertig- oder Massivbauweise gestalten und wie einfach Sie sich Ihren Wohntraum erfüllen können.












