Moderne Häuser – Darauf kommt es beim Bau an
Wer heute ein zeitgenössisches Haus plant, denkt nicht nur an innovative Architektur, sondern auch an fortschrittliche Technik und nachhaltige Baustoffe. Dabei muss man keinen preisgekrönten Architekten engagieren, um zeitgemäße Bauprojekte wie den Bauhausstil oder minimalistische Designs umzusetzen. In diesem Beitrag erfahren Sie, was ein modernes Haus ausmacht, welche Kosten Sie für moderne Fertighäuser und andere Bauweisen erwarten können und worauf Sie besonders achten sollten.
Moderner Hausbau: 5 grundlegende Designprinzipien
Beim modernen Hausbau sind nicht nur Form und Optik entscheidend. Auch die Raumaufteilung und die Auswahl der Materialien spielen eine zentrale Rolle.
1.) Zeitgemäße Hausformen
Schlichte Formen und klare Strukturen stehen im Fokus moderner Architektur. Verzierungen und aufwendige Details treten in den Hintergrund, da einfache Formen kosteneffizienter umzusetzen sind. Statt übermäßigem Dekor beeindrucken moderne Häuser durch großzügige Flächen, hochwertige Baustoffe oder eine besondere Innenarchitektur. Ein modernes Haus mag daher auf den ersten Blick kostenintensiv erscheinen, doch mit klugen Planungen lassen sich auch kleinere, schicke Objekte umsetzen, die stilvoll und zugleich erschwinglich sind.
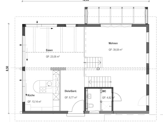
2.) Modernes Wohnen: Größe und Grundriss
Sowohl beim Massiv- als auch beim Fertighaus in modernem Stil ist die Größe von entscheidender Bedeutung. Der Trend zu Tiny Houses, die flexibel auf- und abbaubar sind, erfreut sich besonders bei Singles und Paaren großer Beliebtheit. In urbanen Gebieten, wo Raum begrenzt ist, setzen moderne Grundrisse auf clevere Lösungen, um maximalen Wohnkomfort auf begrenzter Fläche zu schaffen.
Auf der anderen Seite gibt es den Wunsch nach großzügigen, offenen Räumen. Moderne Baumaterialien und offener Wohnraum ermöglichen es, Küchen, Ess- und Wohnzimmer in einem Bereich zu integrieren, was helle, freundliche Räume schafft. Solche offenen Konzepte erfordern jedoch oft spezielle statische Lösungen, wie den Einsatz von Stahlträgern, was die Baukosten erhöhen kann. Dennoch spart der offene Grundriss Platz und kann somit die Gesamtkosten relativieren.
3.) Modernes Bauen: Baustoffe im Wandel
Moderne Häuser setzen seit Langem auf Materialien wie Glas, Beton und Stahl. Doch angesichts des steigenden Umweltbewusstseins spielen zunehmend auch nachhaltige Baustoffe eine Rolle. Besonders im Fertighausbau sind Holz und Recyclingmaterialien immer öfter anzutreffen. Doch auch die Optik ist entscheidend: Glatte Oberflächen und wenige Fugen gehören zur modernen Innenausstattung, was nicht nur ästhetisch ansprechend ist, sondern oft auch praktisch beim Reinigen – zumindest in einigen Fällen.
4.) Energieeffizient bauen: Ein Muss der Zeit
Ein modernes Haus sollte nicht nur ästhetisch überzeugen, sondern auch durch Energieeffizienz glänzen. Die gesetzlichen Vorgaben, wie das Gebäudeenergiegesetz (GEG), setzen hier den Standard. Wer jedoch über die Mindestanforderungen hinausgehen möchte, kann auf innovative Lösungen wie Erdwärme, dreifachverglaste Fenster oder hochmoderne Dämmmaterialien zurückgreifen. Auch Lüftungsanlagen mit Wärmerückgewinnung und energiesparende Heizsysteme wie Wärmepumpen sind typische Elemente eines energieeffizienten Hauses.
Darüber hinaus kann das Sammeln von Regenwasser oder die Grauwassernutzung zur Bewässerung und für andere Haushaltsaufgaben beitragen und damit den ökologischen Fußabdruck weiter reduzieren.
5.) Zukunftsweisend: Smart Home und E-Mobilität
Moderne Häuser sind ohne intelligente Technik kaum mehr vorstellbar. Von der Steuerung der Heizung über mobile Apps bis hin zur vollautomatischen Beleuchtung und Sicherheitssystemen – Smart Homes bieten Komfort und Effizienz. Eine smarte Infrastruktur kann auch E-Mobilität integrieren: Eine Ladestation für das Elektroauto in der Garage wird immer mehr zum Standard in modernen Wohnhäusern.
Kosten beim Bau eines modernen Hauses
Der Bau eines modernen Hauses ist preislich weder automatisch teurer noch günstiger als andere Baustile, wobei ein durchschnittlicher Quadratmeterpreis von rund 2.000 Euro anzusetzen ist – exklusive Grundstück, Nebenkosten und Fundament. Eine clevere und effiziente Planung kann hier jedoch für Kostenvorteile sorgen. Wer auf kompaktere Wohnräume setzt und energiesparende Maßnahmen berücksichtigt, kann nicht nur bei der Errichtung sparen, sondern auch langfristig von niedrigeren Betriebskosten profitieren.
Auf der anderen Seite stehen modernste Technik und innovative Baumaterialien, die oft noch nicht in Massenproduktion hergestellt werden und daher teurer sein können. Besonders der Einsatz von großen Glasflächen, der typisch für moderne Fertighäuser ist, kann die Baukosten spürbar erhöhen.
Für zukunftsorientierte Bauherren gilt dennoch: Auch wenn energieeffizientes Bauen zunächst höhere Anschaffungskosten mit sich bringt, amortisieren sich diese durch niedrigere Energiekosten im Laufe der Zeit. Darüber hinaus gibt es attraktive Fördermöglichkeiten für Bauprojekte, die auf nachhaltige Technologien setzen.
Preisempfehlungen für verschiedene Hausvarianten
Beim modernen Einfamilienhaus, ob als Massivhaus oder Fertighaus, orientieren sich die Kosten an verschiedenen Faktoren wie Ausstattung, Größe und dem gewünschten Energiestandard. Auch der Bau eines modernen Bungalows mit innovativem Grundriss erfreut sich wachsender Beliebtheit, wobei die klare, ebenerdige Struktur oft einen preislichen Vorteil bietet. Doppelhäuser, die in moderner Architektur gestaltet sind, sind ebenfalls eine gefragte Wahl, insbesondere in städtischen Gebieten, wo Platzoptimierung im Vordergrund steht.
Hohe Kosteneffizienz moderner Häuser
Zeitgemäße Architektur zeichnet sich durch schlichte Linien und viel Licht aus – insbesondere durch den großzügigen Einsatz von Glas. Typische kubische Formen, wie sie beim Bauhausstil vorkommen, sind beliebt, aber nicht verpflichtend. Ein gutes Beispiel ist das moderne Satteldach, das direkt an die Außenwände anschließt und einen eleganten, reduzierten Look schafft. Besonders im Trend liegt das moderne Holzhaus, das traditionelle Baustoffe mit zeitgemäßem Design kombiniert.
Ob Fertighaus oder Massivhaus – moderne Bauweisen integrieren die neuesten Technologien und zeichnen sich durch hohe Energieeffizienz aus. Je energieeffizienter und technikaffiner Ihr zukünftiges Heim ist, desto höher sind die Baukosten, doch langfristig können Sie dadurch Ihre laufenden Betriebskosten spürbar senken. Ein offener Grundriss, der in modernen Häusern oft zu finden ist, trägt ebenfalls zur Kosteneffizienz bei, da weniger Wände mehr Raum und somit weniger umbauten Quadratmeter bedeuten – was letztlich zu Einsparungen führt.
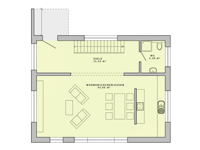
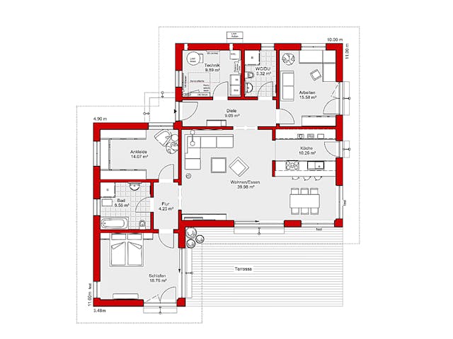
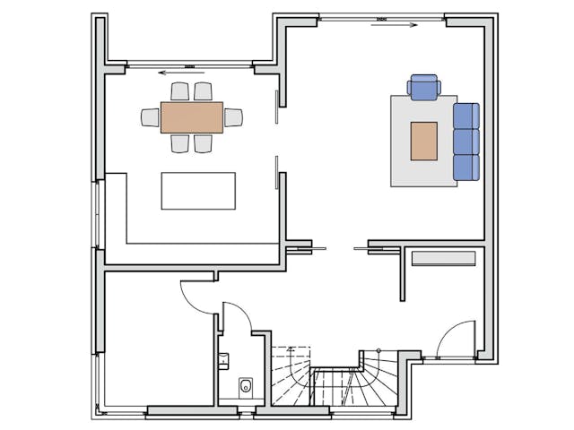
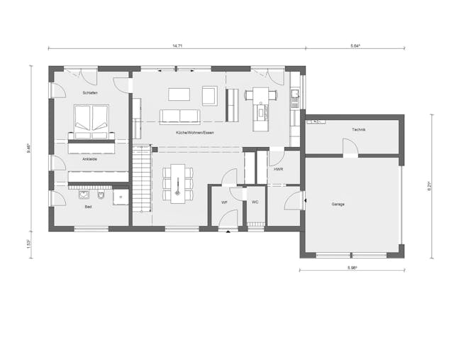
Moderne Häuser Grundrisse
Grundriss-Ideen für moderne Einfamilienhäuser
Grundriss-Ideen für moderne Bungalows

















































































