Tiny House bauen - Das Kleinsthaus im Überblick
Wie viel Wohnfläche braucht man? Aktuelle Trends zeigen, dass beim Hausbau weniger durchaus mehr ist. Der ursprünglich aus den USA stammende Trend des Tiny Houses erfreut sich auch hierzulande wachsender Beliebtheit. Eine Reduzierung des Besitzes und der Wunsch nach einem minimalistischen, sinnerfüllten Leben begeistern vor allem junge Menschen, bietet sich aber auch für altersgerechtes Wohnen an. Vorteilhaft ist, dass es sich bei Minihäusern mitunter um ein Mobilheim auf Rädern handelt. Man benötigt kein großes Grundstück und kann seinen Wohnsitz flexibel wählen. Dazu kommen die deutlich unter einem klassischen Einfamilienhaus liegenden Preise. Wie viel Wohnfläche man benötigt und wie man die Raumaufteilung am besten vornimmt, liegt hauptsächlich an den Ansprüchen der zukünftigen Bewohner. Wie hoch beim Tiny House die Preise sind und was man sonst noch beachten sollte, erfahren Sie hier.
Was ist ein Tiny House?
Ein Tiny House kann zwischen 8 bis maximal 80 qm Wohnfläche haben. Besonders große Ausführungen benötigen einen festen Stellplatz und lassen sich nicht einfach auf Rädern bewegen. Im Durchschnitt werden die kleinen Häuser mit einer Grundfläche zwischen 18 und 50 qm geplant, sollen sie nach ihrer Errichtung im Straßenverkehr bewegt werden. Ob man seinen kleinen Wohnsitz stationär oder mobil nutzen möchte, sollte vor der Hausplanung beherzigt werden.
Sie können ein Tiny House als Fertighaus, Massivhaus oder Blockhaus bauen, meist ist bei einem stationären Tiny House auch eine Unterkellerung möglich. Ein Tiny House mit 100 qm stellt dagegen kein Tiny House im engeren Sinne mehr dar. Hierbei handelt es sich schon um eine Hausgröße im unteren Mittelfeld.
Für wen eignet sich ein Tiny House?
Grundsätzlich handelt es sich bei einem Tiny House um ein kleines, individuell geplantes Eigenheim mit einer entsprechend geringen Grund- und Wohnfläche. Mobile Ausführungen eignen sich hauptsächlich für Singles und junge Paare, die ortsunabhängig leben und arbeiten wollen. Durch den Bau auf Rädern lassen sich die eigenen vier Wände mitnehmen und auf Grundstücken oder auf Campingplätzen abstellen. Ohne Sonderzulassung darf das Haus auf Rädern eine Maximalbreite von 255 cm und eine Maximalhöhe von 400 cm aufweisen. Das heißt, dass ein in Deutschland und in Europa problemlos transportables Tiny House eine durchschnittliche Länge von 7 m hat.
Ob die auf das Wesentliche reduzierte Wohnform zu Ihnen passt, hängt allein von Ihrem persönlichen Lifestyle und von Ihren Platzansprüchen ab. Gut geplant bieten Tiny Houses alles, was Sie zum Leben und zum Wohlfühlen in Ihrem Zuhause benötigen. Wer sich ein bezahlbares, oftmals sogar ohne Kredit finanzierbares Eigenheim wünscht, wird von den Tiny House Kosten begeistert sein. Sie liegen aufgrund der geringen Wohnfläche deutlich unter den Preisen für klassische Einfamilienhäuser und Doppelhäuser, was durchaus zum Vorteil wird.
Kleinste Grundstücksflächen reichen ebenfalls für die Platzierung eines Tiny Houses aus, sodass auch hier mit einem günstigen Kaufpreis gerechnet werden kann.
Tiny Houses sind vollwertige Häuser in kleinerer Ausführung. Eine weit verbreitete These, dass Tiny Houses eher an einen Wohnwagen erinnern, ist unwahr. Möchte man flexibel sein, nicht mehr Raum besitzen, als man eigentlich nutzt und dabei noch hohe Kosten sparen, kann Tiny-Wohnen die richtige Lösung sein. Wie bei jedem Hausbau sollte man auch bei Tiny Häusern wissen, dass es bei festen Stellplätzen – egal ob Tiny House mit Rädern oder nicht – eine Baugenehmigung braucht. Gleiches gilt beim Tiny House aus Containern. Wer sich für ein Haus auf Rädern entscheidet, muss sich aber auch an die vorgegebenen Maße für den Betrieb im öffentlichen Straßenverkehr halten. Und: Bei jedem Stellplatzwechsel ist in der Regel eine erneute Baugenehmigung nötig.
Was kostet ein Tiny House?
Tiny Houses lassen sich aufgrund der kleinen Wohnfläche vergleichsweise günstig bauen. Welche Tiny House Preise Sie konkret einrechnen sollten, hängt aber dennoch von unterschiedlichen Faktoren ab. Ein sehr kleines und minimalistisch ausgestattetes Häuschen auf Rädern ist bereits ab rund 20.000 Euro erhältlich. Wie bei jedem Hausbau steigen auch beim Tiny House die Kosten mit der Wohnfläche und dem Komfort der Ausstattung. Bezugsfertige Tiny Häuser zwischen 15 und 35 qm kosten in Deutschland ab 60.000 Euro aufwärts – diese Preise sind als Richtwerte zu verstehen. Im Kaufpreis sind die gesamte Einrichtung und alle Ausbauten enthalten. Es muss kein Boden mehr verlegt und keine Wand gestrichen werden. Die Leitungen für den Anschluss ans öffentliche Ver- und Entsorgungsnetz sind bei bezugsfertigen Tiny Houses bereits fachmännisch verlegt.
Tiny House schlüsselfertig & bezugsfertig
Tiny House Fertighaus
Massives Tiny House: Kosten & Preise
Wünschen Sie mehr Luxus, erhöhen sich auch beim Tiny House die Preise. Soll die Wohnfläche größer sein, steigen damit auch die Tiny House Kosten. Wenn es ein mobiles oder feststehendes Tiny House mit schlüsselfertiger Übergabe sein soll, fallen durchschnittlich über 2.000 Euro pro qm an. Dennoch sparen Sie mit einem Tiny Haus beim Kauf und im Unterhalt Geld. Durch die geringere Wohnfläche sinken die Heizkosten deutlich und auch der Wasser- sowie der Stromverbrauch sind geringer als in einem klassischen Einfamilienhaus. Mit einer eigenen Energieversorgung auf dem Dach können Sie sich je nach Größe der Anlage teilweise oder auch vollständig autark vom örtlichen Stromanbieter machen.
Wie viel kostet es, ein Tiny House zu bauen? Preisbeispiel
Was kostet ein Tiny House mit 50 qm insgesamt? Um Ihnen alle Preise beim Tiny House und weitere Kostenpunkte zu verdeutlichen, wollen wir ein exemplarisches Preisbeispiel durchrechnen.
Bei schlüsselfertiger Übergabe sollten Sie im Mittel bei durchschnittlicher Ausstattungsqualität von 2.250 Euro pro Quadratmeter ausgehen. Außerdem wird ein mindestens 390 qm großes Grundstück benötigt, durchschnittlicher Preis zur Zeit laut Statistischem Bundesamt: 218 Euro pro qm. Eine Bodenplatte für Ihr stationäres Tiny House kostet im Schnitt 200 pro qm, die Außenanlage mit Garten und Zufahrt 10 % der Bausumme, die Baunebenkosten etwa 20 %. Außerdem planen wir als Puffer zusätzliche Kosten beim Tiny House von 8.000 Euro ein, beispielsweise für den Umzug.
Demnach setzen sich die Kosten für ein Tiny House mit 50 qm wie folgt zusammen:
- Tiny House schlüsselfertig – Preis: 112.500 Euro
- Grundstück: 85.020 Euro
- Grundstücksnebenkosten (z.B. Grunderwerbsteuer, notarielle Leistungen): 8.500 Euro
- Bodenplatte: 10.000 Euro
- Außenanlage: 11.250 Euro
- Baunebenkosten: 22.500 Euro
- Sonstiges: 8.000 Euro
Folglich kostet dieses exemplarische Tiny House alles in allem 257.770 Euro als Orientierungswert.

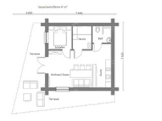
Tiny House Grundriss - Tipps für eine optimale Planung
Am Anfang der Grundrissplanung für ihr Tiny House steht ein einfaches Rechteck – aufgrund der begrenzten Fläche sind einfache und funktionale Ausführungen quasi obligatorisch. Wie breit und wie lang der Grundriss ist, hängt davon ab, ob Ihr Tiny House mobil sein soll oder ob Sie es als stationäres Tiny House auf einem entsprechenden Grundstück platzieren möchten. Wenn Sie sich selbst mit der Hausplanung beschäftigen, stehen Sie bereits bei der Raumaufteilung vor einer Herausforderung. Denn auch im Tiny House Grundriss muss sich Platz für einen Wohnbereich mit Kochnische und ein Schlafzimmer, für ein Bad und gegebenenfalls für ein Gästebett finden. Was anfangs schwierig erscheint, ist mit einem optimal geplanten Grundriss und kreativen Ideen aber durchaus einfach realisierbar.
Bei den meisten Tiny Houses verteilen sich alle Zimmer auf einer Ebene. Bei 1,5 bis 2 Geschossen werden im unteren Bereich des Tiny Houses die Kapazitäten für den Wohn- und Essbereich, die Küche und das Badezimmer genutzt. Gerne führt dann in einem Tiny House eine Treppe nach oben, wo sich idealerweise das Schlafzimmer auf einer Art Podest befindet. Noch immer fehlt der Stauraum, der in einem optimalen Tiny House Grundriss zum Beispiel durch Schubladen unter der Treppe und unter einem hochbeinigen, freistehenden Sofa geschaffen wird. Bei allen Raumplanungen sollte bedacht werden, dass ein ausreichend breiter Durchgang in der Mitte des Tiny Houses vorhanden ist. Die rechts und links des Bereichs stehenden Möbel sind schlank und verfügen über ausgeklügelte Funktionen, ohne dass Türen zu weit in den Raum ragen und ein beengendes Gefühl erzeugen.
Wer den Tiny House Grundriss selbst plant, sollte die Bauzeichnung maßstabsgetreu vornehmen. Anderenfalls könnte es sein, dass die auf dem Papier funktionierende Raumaufteilung beim Ausbau problematisch wird. Um das Leben in einem Tiny House zu genießen und seinen Lifestyle auszuleben, muss man nicht zwangsläufig selbst planen. Es gibt zahlreiche gut aufgeteilte und bereits fertig entwickelte Häuser mit unterschiedlichen Grundflächen.
Vor der Entscheidung für das Tiny House empfiehlt es sich, zum Beispiel einen Tiny-House-Urlaub zu buchen und das Lebensgefühl auf kleinem Raum zu spüren.













































































































