Bungalow-Grundriss gestalten
Barrierefrei, hell, maximale Gestaltungsfreiheit: Ein Bungalow hat viele Vorteile. Moderne Bungalows haben Grundrisse, die sich den Verzicht auf tragende Innenwände zunutze machen. Moment: Tragende Innenwände? Nutzen? Gestaltungsfreiheit? Wie genau sieht so ein Grundriss für den Bungalow mit 60 Quadratmeter, 100 Quadratmeter oder mehr eigentlich aus? Wie gestaltet man den Grundriss am besten?
Mit dem eigenen Bungalow erfüllen Sie sich einen absoluten Traum. Deshalb ist eine gut durchdachte Planung beim Grundriss wichtig. Sie wollen die perfekte Raumaufteilung und legen Wert darauf, dass Ihr Bauprojekt genau so aussieht, wie Sie sich das immer erträumten. Wir führen Sie mit Beispielen, Tipps und Empfehlungen durch die Planung Ihres Bungalow Grundrisses.
Grundriss Bungalow: Grundstücksbedarf
Bevor Sie Ihren Bungalow bauen oder auch nur planen, benötigen Sie ein Grundstück. Ist das Grundstück bereits vorhanden, gehen Sie bei der Planung Ihres Bungalow Grundrisses vom Grundstück aus. Wenn Sie allerdings ein festes Bild von Ihrem Bungalow im Kopf haben und Ihren Platzbedarf genau kennen, können Sie auch den umgekehrten Weg gehen. Dann errechnen Sie aus dem Bungalow Grundriss die benötigte Grundstücksgröße. Viele Baufirmen bieten Unterstützung bei der Suche nach einem geeigneten Grundstück an.
Vielleicht haben Sie auch noch keinen Grundriss für Ihren Bungalow ausgearbeitet, sondern wissen nur, wie viel Quadratmeter Wohnfläche Sie benötigen. Nehmen Sie diese Wohnfläche als Ausgangspunkt. Addieren Sie die benötigte Fläche für Garage und/oder Carport dazu. Dann verdoppeln Sie das Ergebnis - das ist die Grundfläche, die Ihr Grundstück haben sollte.
Warum so viel Gartenfläche?
Die deutschen Baugesetze schreiben den Abstand von Gebäuden zum Grundstücksrand und benachbarten Gebäuden ziemlich genau vor. Für helle Räume überall im Bungalow, vielleicht sogar einen kleinen Innenhof bei einem u-förmigen Bau, ist der Freiraum rund um das Gebäude wichtig. Moderne Bungalows haben Grundrisse, die ein Verschmelzen von Innenraum und Außenbereichen erlauben - und das braucht einfach Grundfläche. Aber natürlich muss der Grundriss vom Bungalow nicht 100 Quadratmeter für 3 Zimmer haben. Auch ein Grundriss für einen Bungalow mit 60 Quadratmeter kann durchaus reizvoll und modern sein - gerade in Zeiten des Sparens.
Moderne Bungalows: Grundrisse & Tipps
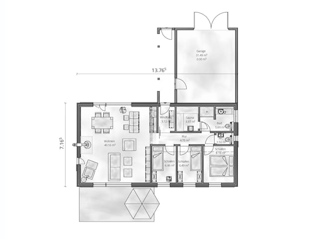
Moderne Bungalows haben Grundrisse, die funktional an den Bedürfnissen der Bewohner und Bewohnerinnen orientiert sind. Mit den einfachen, kastenförmigen Bungalows vergangener Jahrzehnte haben sie kaum noch etwas gemeinsam, die Grundrisse sind unregelmäßig geworden. Besonders beliebt sind Winkelbungalows in L- Form und U-förmige Grundrisse. Das hat sich insbesondere aufgrund der zunehmenden Verschmelzung von Privatleben/Wohnen und Arbeitsleben/Homeoffice bewährt. Die im Winkel von den Wohnräumen entfernt angeordneten Arbeitsräume können über einen eigenen Zugang von außen erreicht werden. Die (wenn auch nur minimale) bauliche Trennung der verschiedenen Lebensbereiche Wohnen und Arbeiten wird von den meisten Menschen als sehr angenehm empfunden.
Ein anderer Punkt ist für moderne Bungalows und ihre Grundrisse ebenfalls ausschlaggebend: Unregelmäßige Grundrisse, Winkel, U-Formen und L-Formen erlauben es, jeden Raum an einer oder mehr Seiten mit Fenstern nach draußen zu versehen. Das Ergebnis sind natürlich lichtdurchflutete Räume, die hell und einladend wirken. Besonders große Fenster und Türen zu Terrasse und Garten lassen Innenraum und Außenraum verschmelzen. Damit bieten moderne Bungalows durch ihre Grundrisse eine Rückkehr zum Leben in der Natur und im Rhythmus der Jahreszeiten.
Bungalow Grundriss-Formen
Den einen Bungalow Grundriss, der alle Wünsche erfüllt, gibt es natürlich nicht.
- Die L-Form, ist heute üblich und wird als Winkelbungalow bezeichnet. Vorteilhaft wirkt sich bei dieser Form aus, dass die Schlafzimmer beispielsweise mit viel Abstand zueinander (jeweils am Ende der L-Form) eingeplant werden können. Der Wohnbereich lässt sich dadurch flexibler gestalten. Der Bungalow Grundriss ist in den seltensten Fällen schlicht rechteckig oder quadratisch.
- Auch Bungalows in U- und T-Form werden häufig als Winkelbungalows bezeichnet. Diese Formen wird normalerweise ein etwas großflächigeres Grundstück benötigt. Zudem eignen sich diese Bungalow-Formen zur Unterbringung einer Einliegerwohnung. Denn die komplexe Bauform ermöglicht zwei separate Zugänge. Ob diese Einliegerwohnung dann vermietet wird oder als separate Wohnung für erwachsene Kinder zur Verfügung steht, ist Ihnen überlassen.
Aber nicht nur der Bungalow Grundriss ist flexibel, auch die Dachformen können ganz frei gewählt werden. Längst muss es nicht mehr das Flachdach sein. Das ist zwar immer noch der Klassiker, weil es sich einfach anlegen lässt. Andere Dachformen bringen jedoch ästhetische Vorteile und können sogar zur Energiegewinnung genutzt werden. Eine absolute Ausnahme ist das begrünte Dach: Das ist hinsichtlich der Statik etwas anspruchsvoller, bietet aber die beste thermische Dämmung und nachhaltigen Nutzen.
Verschieden Größen für Bungalow-Grundrisse
Grundriss Bungalow 60 Quadratmeter: 3 Zimmer
Ein Grundriss für den Bungalow mit 60 Quadratmetern muss geschickt gestaltet werden, denn 60 Quadratmeter sind nicht viel. Für Singles und ein Paar ist diese Grundfläche ausreichend, mit Kindern wird das schon schwieriger. In der Regel sind die 3 Zimmer dieses Bungalows mit Wohnraum inkl. Küchenzeile, Schlafzimmer und Technikraum schon ausgeschöpft. Wird der Bungalow mit Keller geplant oder bietet ein Sattel- oder Walmdach noch etwas zusätzlichen Raum in einem (niedrigeren) Dachgeschoss, kann das dritte Zimmer auch ein Kinder- oder ein Arbeitszimmer sein.
Grundriss Bungalow 80 Quadratmeter: 3 Zimmer aufwärts
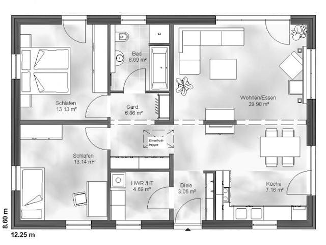
80 Quadratmeter sind alles andere als luxuriös, reichen aber bei geschickter Planung auch für Familien mit Kindern. Der Trick ist, den Wohn-, Koch- und Essbereich offen zu gestalten. Der eine große Raum kommt ohne Zwischenwände aus, was dem Bungalow trotz der geringen Grundfläche von 80 qm ein luftiges, weitläufiges Erscheinungsbild gibt.
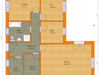
Grundriss Bungalow 100 Quadratmeter: 4 Zimmer aufwärts
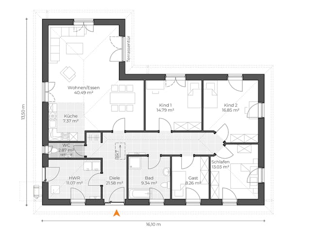
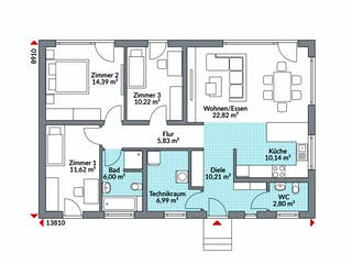
Der Grundriss für den Bungalow mit 100 Quadratmetern kann 4 Zimmer oder mehr ermöglichen. 100 Quadratmeter sind viel, wenn die Raumeinteilung stimmt. Ein Kinderzimmer und ein Arbeitszimmer zusätzlich zu Schlaf- und Wohnraum sind durchaus möglich. Bei geschickter Wahl des Grundrisses und guter Planung können auch eine separate Toilette, ein begehbarer Kleiderschrank oder dergleichen realisiert werden. Wichtig ist, dass auch die kleinen Räume nicht wie dunkle Abstellkammern anmuten, sondern Fenster mit Tageslicht bekommen. Das funktioniert bei einem Winkelbungalow natürlich besser als beim klassisch glatten Grundriss. Der Grundriss für den Bungalow mit 100 Quadratmetern kann aber auch für 3 Zimmer erstellt werden - dann sind die Zimmer entsprechend weitläufig angelegt, Übergänge zwischen Wohn- und Essbereich sind selbstverständlich.
5 Zimmer Bungalow Grundriss
Sollen 5 Zimmer im Bungalow Grundriss untergebracht werden, steigt der Bedarf an Grundfläche. Fünf Zimmer sind allerdings flexibel: Technikraum, Gästezimmer und/oder Gäste-WC, Kinderzimmer und Arbeitszimmer addieren sich schnell auf. 100 Quadratmeter Bungalow-Grundfläche sollten es in diesem Fall mindestens sein, üblich sind 120 Quadratmeter und mehr. Dementsprechend steigt auch der Bedarf hinsichtlich der Größe des Grundstücks. Wer nur ein kleineres Grundstück zur Verfügung hat, kann hier wieder überlegen, ob ein Bungalow in Massivbauweise mit Unterkellerung (beispielsweise für Technikraum und Gästeunterbringung) nicht zielführend sein könnte.






























































