
Massivhaus-Grundrisse – Beispiele

Marc Hammermeister
Aktualisiert am 28. Januar 2025

Marc Hammermeister
Aktualisiert am 28. Januar 2025
Für welche Hausart interessieren Sie sich?
Kostenlose Hausangebote anfordernIm folgenden zeigen wir Ihnen ein paar Beispiele für Grundrisse verschiedener Gebäudetypen. Den besten Vergleich finden Sie in unserer Häuser-Suche mit der Auswahl 'Grundrisse'.
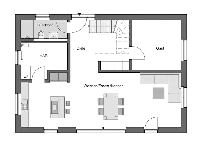
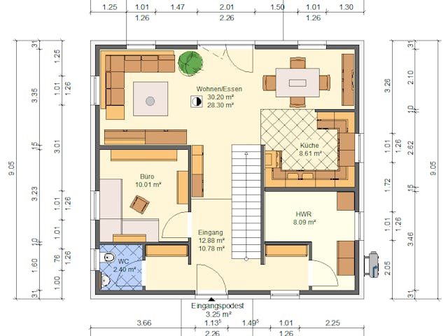
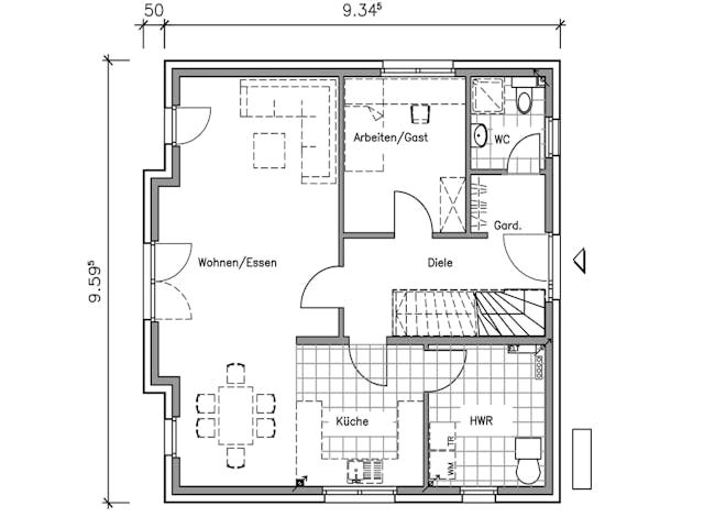
Grundriss-Beispiele für Massivhaus mit Satteldach
Wohn-Nutzfläche – EG: ca. 64,9 qm – DG: 60,1 qm
Gesamt: ca. 125 qm
Dachneigung 45°


Weitere Beispiele für Grundrisse: Typ Satteldachhaus
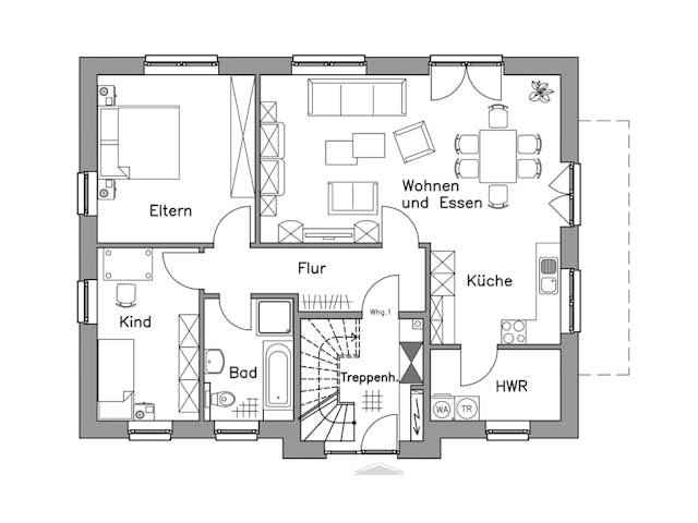
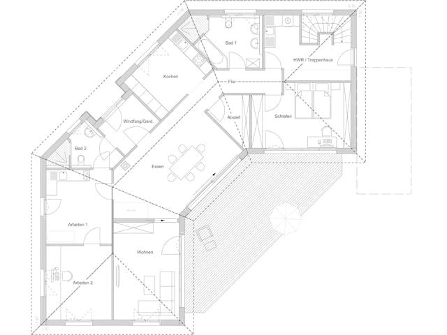
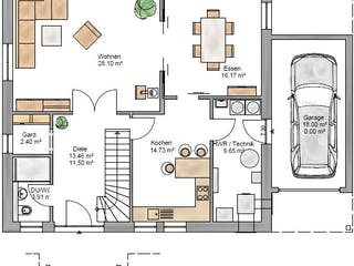
Grundriss-Beispiele für eine Stadtvilla
Wohn-Nutzfläche – EG: ca. 66,9 qm – DG: 62,7 qm
Gesamt: ca. 129,6 qm
Dachneigung 25°


Weitere Beispiele für Grundrisse: Typ Stadtvilla
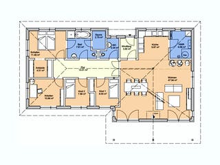
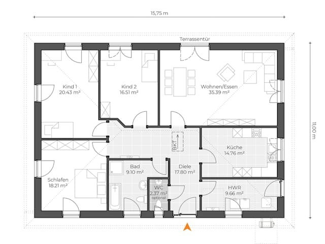
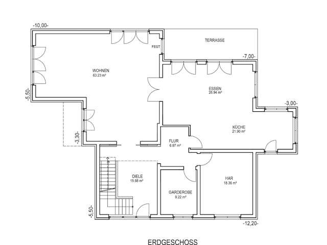
Grundriss-Beispiel für einen Bungalow
Wohn-Nutzfläche:
ca. 100,4 qm
Dachneigung 25°

Weitere Beispiele für Grundrisse: Typ Bungalow
Der Grundriss spielt beim Hausbau eine zentrale Rolle. Bei der Planung des Hauses sollte man den Grundriss genau überdenken, genau überlegen wie groß jeder Raum im einzelnen sein muss/sollte. Grundrisse lassen sich vorher beim Architekten oder bei dem Bauunternehmen meist individuell anpassen.

Marc Hammermeister
Massivhaus.de Online Redakteur - Fachgebiet Hausbau
Gründer der Plattform Massivhaus.de und somit ein echter Enthusiast in Bezug auf die Hausbaubranche.
Mehr lesen
Marc Hammermeister
Massivhaus.de Online Redakteur - Fachgebiet Hausbau
Gründer der Plattform Massivhaus.de und somit ein echter Enthusiast in Bezug auf die Hausbaubranche.
Mehr lesenPassende Artikel zum Thema

Betonhaus entdecken Entdecken Sie die Kosten und Vorteile eines modernen Betonhauses.

Massivhaus Bauzeit Erfahren Sie, wie lange die Bauzeit eines Massivhauses dauert und was zu beachten ist.

Baustoffe im Massivhaus Entdecken Sie, welche Baustoffe beim Bau eines Massivhauses verwendet werden.

Ausbauhaus-Preise Vergleichen Sie Ausbauhaus-Preise und senken Sie Kosten durch Eigenleistung.
























































