


HANNOVER HAUS: Life 115
Ab 263.500 €
Bewertungen von HANNOVER HAUS
0
(0)
Wohnfläche
115 m²
Zimmer
3
Ausbaustufe
Schlüsselfertig
Bauweise
Massivhaus
Etagen
1
Energiestandard
Effizienzhaus 40 Plus
Dachform
Walmdach
Hausart
Einfamilienhaus
Beschreibung
UNSER LIFE 115 BIETET DURCH SEINE GESCHICKTE RAUMANORDNUNG AUF 115 M² ALLES, WAS FÜR EIN MODERNES LEBEN AUF EINER EBENE BENÖTIGT WIRD.
BESONDERE MERKMALE
• Eingeschossiger Baukörper
• Barrierearmes Wohnen
• Smarte Grundrissanordnung
• Großzügiges Wohnen auf einer Ebene
• Helle Räume durch schöne Fensterelemente
Sie haben Interesse?
Laden Sie sich jetzt Ihr kostenloses Exposé zu diesem Haus herunter:
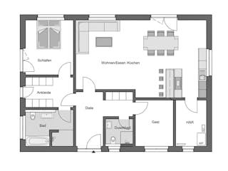
Grundrissfür Life 115
Grundrisse
Der Grundriss entspricht nicht Ihren Vorstellungen?
Passen Sie den Grundriss an Ihre persönlichen Bedürfnisse an und besprechen Sie Ihren individuellen Plan mit einem Bauberater des Anbieters.
Merkmale
Energiestandard und Förderung
Energiestandard
Effizienzhaus 40
Effizienzhaus 40 Plus
Effizienzhaus 55
Dach
Dachform
Walmdach
Dachneigung
22°
Preisdetails für Life 115
Schlüsselfertig ab
263.500 €
ab 793,24 €
Dieser Preis ist ein Beispiel für den Anfang, ein Berater kann Ihnen ein detailliertes Angebot erstellen, das Ihren Bedürfnissen entspricht.
Möchten Sie bei Ihrem Projekt Geld sparen?
Durch einen Angebotsvergleich mit Massivhaus.de können Sie bis zu 20 % Ihrer Baukosten sparen.
Über den Anbieter HANNOVER HAUS
Zum Anbieterprofil
Bewertungen
0
(0)

Bewertungen
0
0 BewertungenKeine
HANNOVER HAUS in Zahlen
Gründungsjahr
1999
Häuser im Angebot
10
Häuser pro Jahr
50
Häuser gesamt
> 1.000
Mitarbeiter
35
Leistungsspektrum
Finanzierungsberatung
Preisgarantie
Bauzeit Garantie
Individuelle Planung
Blower Door Test
Persönliche Beratung für Ihre individuellen Wünsche
Finden Sie jetzt Ihren Ansprechpartner
HANNOVER HAUS
Ähnliche Häuser Für Life 115