Doppelhaushälfte oder Doppelhaus bauen
Ein Doppelhaus verbindet die Vorzüge eines Einfamilienhauses mit den Vorteilen eines Mehrfamilienhauses. Wenn Sie ein Doppelhaus bauen möchten, haben Sie ganz unterschiedliche Möglichkeiten. Sie können eine einzelne Doppelhaushälfte bauen und sich die Baukosten mit Ihrem zukünftigen Nachbarn, der die zweite Hälfte baut, teilen. Oder Sie bauen ein Doppelhaus und vermieten die nicht selbst genutzte Hälfte nach Fertigstellung selbst. Doppelhäuser sind beliebt, weil sie günstiger als Einfamilienhäuser sind und Ihnen eine Vielfalt an Grundriss- und Gestaltungsideen bieten.
Was ist ein Doppelhaus?
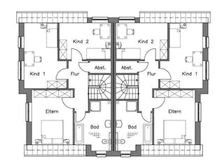
Das Doppelhaus lässt sich modern und kostensparend bauen. Wenn man von einem Doppelhaus spricht, handelt es sich um ein an einer trennenden vertikalen Mittelachse zusammenhängend gebautes Haus, das über zwei nebeneinander an dieser Achse liegenden (meistens identische) Wohneinheiten verfügt. Jede Wohneinheit hat einenseparaten Eingang und ein eigenes Treppenhaus. Daher können Sie im Doppelhaus einen Grundriss wählen, der sich nicht wirklich von einem freistehenden Einfamilienhaus unterscheidet – außer in der einen fensterlosen Seite. Im Unterschied hierzu werden die Wohnungen beim Zweifamilienhaus übereinander geplant und teilen sich einen Haupteingang.
Die Besonderheit des Doppelhauses beruht darauf, dass sich Ihr Grundriss in der Doppelhaushälfte nebenan spiegelt, der praktisch seitenverkehrt zu Ihrer Raumaufteilung ist. Es ist jedoch auch möglich, verschiedene Grundrisse für die Doppelhaushälften zu planen. Eine stabile Trennwand schirmt den Luft- und Trittschall beider Haushälften ideal ab.
Möchten Sie ein Doppelhaus bauen, können Sie zwischen zwei Varianten wählen. Es besteht die Möglichkeit, die Kosten für eine Doppelhaushälfte zu bezahlen und gemeinsam mit Ihren zukünftigen Nachbarn zu bauen, die direkt ihren Anteil der Baukosten übernehmen. Oder Sie denken perspektivisch und bauen ein ganzes Doppelhaus, dessen zweite Haushälfte Sie nach der Errichtung vermieten können. Das bietet sich bei einem Doppelhaus besonders an, denn in diesem Fall bauen Sie ein Haus mit zwei Wohneinheiten, die vollständig voneinander getrennt und über separate Eingänge zu erreichen sind.
Doppelhaus bauen und sparen
Entscheiden Sie sich für eine Doppelhaushälfte, gibt Ihnen dies die Möglichkeit, beim Hausbau und in der späteren Bewirtschaftung Ihres Zuhauses zu sparen. Denn es gibt nur drei Außenwände, da die mittlere Wand die beiden Doppelhaushälften trennt. Die Verbindungswand zwischen den Haushälften benötigt keine so dicke Dämmung wie die Außenwände, und auch keine Fassade. Dazu kommt eine gemeinsame Heizungs-, PV- und Warmwasseranlage, durch die Sie beim Doppelhaus bauen die Ausgaben ebenfalls senken und kein Geld für zwei Thermen einplanen brauchen. Ebenso erfolgt die Dachplanung für das gesamte Haus, was wiederum zu einer Minderung der Baukosten in Gegenüberstellung zum freistehenden Einfamilienhaus führt. Der Hausbau ist außerdem auf einem kleineren Grundstück möglich, da die beiden Haushälften unmittelbar aneinander stehen – Grenzabstände entfallen zur anderen Doppelhaushälfte hin, und die Kosten für den Baugrund werden aufgeteilt. Auch die Baunebenkosten werden beim Doppelhaus bauen geteilt.
Wie bereits angeschnitten, sparen Sie nicht nur beim Bau, sondern auch beim Bewohnen eines Doppelhauses. Denn die gemeinsame Wand sorgt dafür, dass an dieser Stelle keine Wärme entweicht.
Was Baufamilien bedenken sollten: Wenn man ein Doppelhaus bauen und das Budget berechnen möchte, handelt es sich bei den Angaben im Angebot fast immer um die Kalkulation für eine Doppelhaushälfte. Will man ein Doppelhaus bauen und die zweite Haushälfte als Kapitalanlage vermieten, verdoppelt sich der Baupreis - da es sich hier um zwei Doppelhaushälften handelt.
Wie groß muss ein Grundstück für ein Doppelhaus sein?
Doch wie groß muss nun das Grundstück sein, wenn Sie ein Doppelhaus bauen wollen? Planen Sie eine Doppelhaushälfte, existiert zu einer Seite, nämlich an der Trennwand zur anderen Doppelhaushälfte, kein zu wahrender Abstand. Deswegen benötigen Sie insgesamt weniger Quadratmeter beim Grundstück als bei zwei gleichgroßen freistehenden Objekten.
Zudem lassen sich Doppelhaushälften besonders gut in die Höhe bauen und werden meist mit 2,5 Etagen angeboten – das wiederum reduziert die Grundfläche im Vergleich zum Bungalow oder 1,5-Geschosser. Der charakteristische Doppelhaus-Grundriss erstreckt sich demnach über zwei Vollgeschosse im Parterre und ersten Stock sowie ein ausgebautes Dachgeschoss. Um die verbreitete Wohnfläche von 150 qm zu erreichen, sind bei einer Doppelhaushälfte also nur 60 qm Grundfläche nötig – zum Vergleich: Das entsprechende klassische Einfamilienhaus mit 1,5 Etagen hat 100 qm Grundfläche.
Zusammen mit Garage oder anderer Parkmöglichkeit beträgt die Grundfläche für eine Doppelhaushälfte also insgesamt 100 qm. Als Garten und Abstandsflächen zu den Nachbargrundstecken müssen Sie noch einmal das Doppelte hinzuaddieren, für eine Doppelhaushälfte sind also alles in allem 300 qm Baugrund vonnöten. Für das gesamte Doppelhaus sind folglich 600 qm erforderlich – gegenüber 1080 qm für zwei freistehende Eigenheime, für die auch meist mehr Stellplatzfläche vorgeschrieben ist.
Doppelhaus in modernem Stil gestalten
Früher waren Doppelhäuser verhältnismäßig schmal und erstreckten sich über bis zu drei Etagen. Heute kann man sein Doppelhaus modern bauen und selbst entscheiden, ob man ebenerdig oder mit mehreren Stockwerken (hier zählt der ausgebaute Dachstuhl hinein) wünscht. Ein enormer Vorteil der modernen Bauweise beim Doppelhaus ist der Grundriss. Da beide Haushälften breiter gehalten sind, hat man trotz einer gemeinsamen Innenwand viel Tageslicht in allen Räumen.
Moderne Doppelhäuser können im Kubus-Stil oder mit klassischen Satteldächern gebaut werden. Es besteht die Möglichkeit, jede Haushälfte mit Balkonen auszustatten und bei Immobilien mit Flachdächern eine Dachterrasse zu bauen. Große, oftmals bodentiefe Fenster im offenen Wohnbereich zeichnen den modernen Grundriss einer Doppelhaushälfte aus. Natürlich benötigt man auch im Doppelhaus geschlossene Räume, deren Anzahl sich nach den individuellen Bedürfnissen der Bauherrenfamilien richtet. Die Kinderzimmer, das Schlafzimmer und gegebenenfalls ein Büro in den eigenen vier Wänden lassen sich im Doppelhaus modern und dennoch verschließbar gestalten. Der Wohnbereich bleibt zur Küche hin offen und sorgt so für ein großzügiges und komfortables Wohngefühl.
Das Doppelhaus und die Doppelhaushälfte sind vor allem bei befreundeten Paaren und Familien beliebt. Wenn man gemeinsam ein Doppelhaus bauen und sich die Kosten teilen kann, wird das Projekt Hausbau besonders günstig. Jede Bauherrenfamilie zahlt die Hälfte der Baunebenkosten sowie für das Doppelhaus, das modern gebaut wird und das im Grundriss trotz äußerlich optischer Gleichheit Spielraum für persönliche Wünsche lässt. So kann zum Beispiel der Grundriss einer Doppelhaushälfte völlig offen sein, während die andere Haushälfte über mehrere getrennte Räume verfügt. Sollte man als Bauherr den gewünschten Grundriss nicht in den Standardangeboten finden, hat man die Chance, seine individuellen Ideen zu äußern und seinen ganz persönlichen Wohnbereich im Doppelhaus bauen zu lassen.
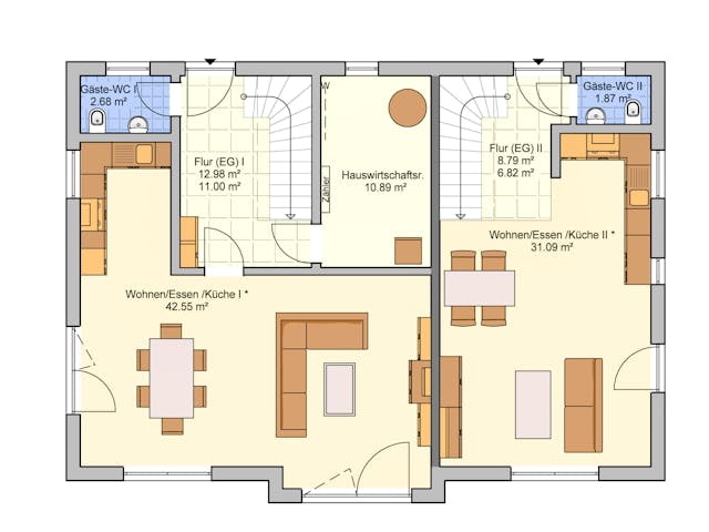
Worauf ist beim Doppelhaus-Grundriss zu achten?
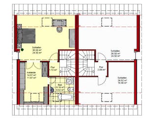
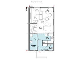
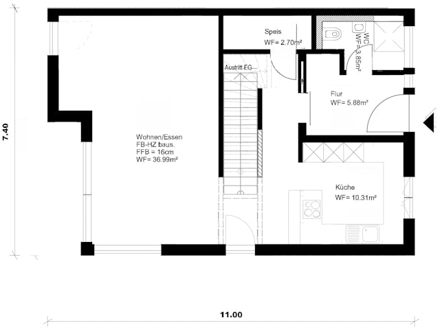
Doppelhäuser erstrecken sich im Regelfall über zwei bis drei Etagen. Besonders beliebt ist beim Doppelhaus ein Grundriss, in dem die Räume im unteren Bereich ineinander übergehen. Hier ist Platz für die große offene Wohnküche und für das Wohnzimmer inklusive Essbereich. In der zweiten Etage können sich Schlafzimmer und Kinderzimmer befinden, während Sie das Dachgeschoss zum Beispiel zum Arbeiten oder als Gästezimmer nutzen können.
Wenn Sie den Grundriss für eine Doppelhaushälfte planen, sollten Sie perspektivisch denken. Ist die Familienplanung noch nicht abgeschlossen, können Sie zusätzliche Kinderzimmer oder den Umzug des Schlafzimmers ins Dachgeschoss bei Ihrem Doppelhaus im Grundriss einplanen. Möchten Sie ein ganzes Doppelhaus und nicht nur eine Doppelhaushälfte bauen, empfiehlt es sich, die Grundrissplanung für die vermietbare Wohneinheit offen und den aktuellen Standards entsprechend zu gestalten. Sonderaufteilungen sind bei vielen Anbietern als Zusatzleistungen möglich.
Doppelhaushälfte-Grundrisse aller Anbieter
Warum sollten Sie ein Doppelhaus bauen?
Es gibt viele Gründe, die für eine Doppelhaushälfte sprechen und diesem Haustyp den Vorzug gegenüber einem freistehenden Einfamilienhaus geben. Sehr gut eignen sich Doppelhäuser für den Mehrgenerationenhaushalt. Auch befreundete Familien bauen gerne zusammen und teilen sich beim Doppelhaus bauen die Finanzen. Ob man sich seine Nachbarn aussuchen oder einfach nur Aufwendungen durch eine Doppelhaushälfte sparen möchte, ist eine ganz persönliche Entscheidung. Fakt ist, dass das Doppelhaus modern ist und dass es Ihnen viel Spielraum in der Grundrissgestaltung und im Innenausbau gibt. Gerade in Zeiten hoher Baupreise kann ein Doppelhaus die optimale Lösung für ein bezahlbares Eigenheim darstellen.
Fertighaus-Doppelhaus
Massives Doppelhaus bauen
Moderne Doppelhäuser
Doppelhaus schlüsselfertig



































































































































































































