Mehrfamilienhaus bauen: Planung, Grundriss und Hauskonzepte

Ein Mehrfamilienhaus lohnt sich besonders, wenn Sie Ihr Grundstück optimal ausnutzen und gleichzeitig finanziell flexibel bleiben möchten. Viele Bauleute entscheiden sich dafür, eine Einheit selbst zu nutzen und weitere Wohnungen zu vermieten – oder das Gebäude komplett als Kapitalanlage aufzubauen.
Mieteinnahmen können die Finanzierung spürbar entlasten und die Gesamtkosten langfristig besser kalkulierbar machen. Ob für zwei, vier oder sechs Wohneinheiten: Moderne Mehrfamilienhäuser bieten Vorteile wie planbare Nutzungskonzepte, gute Vermietbarkeit und Platz für Familienwohnen über mehrere Generationen.

Bau Mehrfamilienhaus: Überblick
Was ist ein MFH? Immobilie mit 3+ Wohnungen, nutzbar als Kapitalanlage oder Mehrgenerationenhaus.
Was kostet ein MFH? ca. 3.200 Euro/qm (schlüsselfertig); 3-Familienhaus (350 qm) ca. 1.120.000 Euro ab OK Bodenplatte.
Fördermöglichkeiten über KfW, Landesförderbanken & Kommunen.
Mehrfamilienhaus: Begriffsbestimmung & Planung
Was versteht man unter einem Mehrfamilienhaus?
Als Mehrfamilienhaus gelten in der Regel Wohngebäude mit mehr als zwei Wohnungen.
Wer ein Mehrfamilienhaus als Fertighaus plant, kann durch kurze Bauzeiten und standardisierte Prozesse häufig Zeit und Kosten sparen. Bevor Sie sich für einen konkreten Haustyp entscheiden, sollten Sie zuerst festlegen, wie viele Wohneinheiten entstehen sollen. Die abgeschlossenen Einheiten lassen sich als klassische Etagenwohnungen realisieren – je nach Größe des Projekts auch mit zwei Wohnungen pro Etage. Möglich sind zudem Maisonettewohnungen, die vor allem bei Paaren und Familien beliebt sind, weil sie ein „Haus-im-Haus“-Gefühl mit klarer Raumtrennung verbinden.
Ein wesentlicher Vorteil von Mehrfamilienhäusern ist ihre Flexibilität in der Nutzung. Als Kapitalanlage können Sie die Wohnungen vermieten und die Baufinanzierung über Mieteinnahmen (mit-)tragen. Wenn Sie selbst einziehen und nur einzelne Einheiten vermieten möchten, bietet ein Mehrfamilienhaus – ob Massivhaus oder Fertighaus – eine gute Kombination aus Eigennutzung und zusätzlichem Einkommen. Ebenso eignet sich das Konzept für Mehrgenerationenwohnen: Mit drei oder mehr Generationen unter einem Dach lassen sich Wohnbereiche so planen, dass sowohl Nähe als auch Privatsphäre möglich sind.
Neubau Mehrfamilienhaus: Verschiedene Ausführungen
Welche Bauform für ein Mehrfamilienhaus infrage kommt, hängt vor allem von Lage, Bebauungsplan und Landesbauordnung ab. Je nach Grundstück lässt sich ein Mehrfamilienhaus im Stil einer Stadtvilla oder als klassischer Geschosswohnungsbau realisieren. Beide Bauformen lassen sich modern, energieeffizient und mit mehreren Wohneinheiten umsetzen. Entscheidend für die Kosten sind in der Praxis weniger die Bauweise, sondern Faktoren wie Anzahl der Wohnungen, Gebäudegröße, Unterkellerung, Ausstattung, Energiestandard und die Komplexität der Grundrisse.
Zunehmend gefragt sind Mehrfamilienhäuser mit gemeinschaftlich nutzbaren Flächen, weil sie den Wohnwert erhöhen und die Immobilie attraktiver für Mieter machen können. Denkbar sind zum Beispiel Gemeinschaftsgarten, ein kleiner Fitness- oder Hobbyraum, ein Fahrrad-/Kinderwagenraum oder zusätzliche Abstellflächen. In größeren Objekten kann auch ein Gästeapartment sinnvoll sein: eine kompakte, separate Einheit, die Bewohner zeitweise für Besuch nutzen – ohne die Privatsphäre der einzelnen Wohnungen zu beeinträchtigen. Wichtig ist dabei eine klare Planung (Zugang, Abrechnung, Hausordnung), damit Gemeinschaftsbereiche dauerhaft reibungslos funktionieren.
Mehrfamilienhaus bauen: Kosten in der Übersicht
Die Kosten pro Quadratmeter sind beim Mehrfamilienhaus ein zentraler Richtwert – pauschal lassen sie sich jedoch nicht nennen. Entscheidend sind vor allem Grundstückspreis, Größe und Anzahl der Wohneinheiten, Ausstattung, Energiestandard sowie die Ausbaustufe (z. B. Ausbauhaus vs. schlüsselfertig). Als grobe Orientierung liegt ein modernes Mehrfamilienhaus bei rund 3.200 Euro pro qm bei schlüsselfertiger Ausführung (Mittelwert aus ca. 100 Angeboten für Neubau-Mehrfamilienhäuser, Stand: Februar 2026).
Zusätzliche Kosten entstehen häufig durch Sonderausstattungen (z. B. höherwertige Materialien) und individuelle Grundrisse. Gleichzeitig lässt sich über eine klare Planung oft sparen: kompakte Grundrisse, wiederholbare Wohnungstypen und Standardlösungen reduzieren Komplexität und Kosten – im Massivhaus wie im Fertighaus-Mehrfamilienhaus.
Wer handwerklich fit ist, kann zudem über Eigenleistungen im Innenausbau (z. B. Bodenbeläge, Malerarbeiten, einfache Montagearbeiten) die Gesamtkosten senken. Wichtig: Arbeiten an Statik, Haustechnik und sicherheitsrelevanten Gewerken gehören in der Regel in Fachhand.
Eine detaillierte Kostenaufstellung und Beispiele finden Sie auf unserer Seite zu Mehrfamilienhaus-Kosten.
Fertighaus-Mehrfamilienhäuser
Massivhaus-Mehrfamilienhäuser
Bau Mehrfamilienhaus: Finanzierung & Rendite
Eigenkapital für den Bau eines Mehrfamilienhauses
Für ein Mehrfamilienhaus (insbesondere bei Vermietung) ist eine solide Eigenkapitalbasis wichtig. Als Faustregel empfehlen viele Banken/Finanzratgeber wie Finanztip mindestens 20–30 % der Gesamtkosten (inkl. Kaufnebenkosten) aus Eigenkapital zu decken – je mehr Eigenkapital, desto besser sind meist Zins und Konditionen.
Mieteinnahmen als Refinanzierung: So rechnen Banken oft
Mieteinnahmen können die Finanzierung stützen – Banken setzen sie in der Haushaltsrechnung jedoch häufig nicht zu 100 % an, sondern mit einem Sicherheitsabschlag (z. B. für Leerstand, Mietausfall, nicht umlagefähige Kosten). In der Praxis berücksichtigen Baufinanzierer oft nur ca. 70–80 % der ortsüblichen Kaltmiete.
Hinweis: Rechnen Sie konservativ mit einem Abschlag auf die Kaltmiete, dann wirkt Ihre Kalkulation auch gegenüber Banken realistischer (Quelle: Finanztip).
Mehrfamilienhaus-Rendite: Was „solide“ Werte in der Praxis bedeuten
Bei Neubau-Mehrfamilienhäusern gilt grob: Netto-Mietrenditen ab 4 % sind ein lohnenswerter und wirklichkeitsnaher Zielkorridor – abhängig von Lage, Objektzustand, Vermietbarkeit und Kostenstruktur. Besonders hohe Renditen gehen wiederum mit mehr Risiko (Lage/Leerstand) einher.
Wichtig: Kalkulieren Sie für eine belastbare Netto-Rendite Rücklagen, Instandhaltung, Verwaltung und (falls relevant) Mietausfall/Leerstand ein.
Spekulationssteuer: 10-Jahres-Frist beim Bau eines Mehrfamilienhauses im Blick behalten
Beim Verkauf einer nicht selbst genutzten Immobilie im Privatvermögen kann laut EStG § 23 innerhalb der 10-Jahres-Frist Spekulationssteuer auf den Gewinn anfallen. Wer länger als 10 Jahre hält, verkauft in vielen Fällen steuerfrei (Ausnahmen/Details je nach Konstellation). Für Renditeobjekte lohnt es sich also, die geplante Haltedauer früh mitzudenken.
Welche KfW-Förderung gibt es für Mehrfamilienhäuser?
Für den Neubau bzw. Ersterwerb eines Mehrfamilienhauses vom Bauträger kommen – je nach Ziel (Standard vs. bezahlbarer Neubau) – vor allem diese KfW-Förderungen in Frage:
KfW 297/298 – „Klimafreundlicher Neubau“ (KFN)
- Förderhöhe: bis zu 100.000 Euro je Wohneinheit; mit QNG (Qualitätssiegel Nachhaltiges Gebäude) sind bis zu 150.000 Euro je Wohneinheit möglich.
- Standard: Für die KFN-Stufe „klimafreundliches Wohngebäude“ ist in der Praxis der Effizienzhaus-40-Standard der zentrale Bezugspunkt; zusätzlich wird (befristet) wieder Effizienzhaus 55 als Förderstufe geführt – siehe Hinweis unten.
- Wichtig: Einbindung einer Energieeffizienz-Expertin ist Voraussetzung (Bestätigung zum Antrag/BzA, selbst ebenfalls förderfähig laut KfW-Merkblatt).
KfW 296 – „Klimafreundlicher Neubau im Niedrigpreissegment“ (KNN)
- Zielgruppe/Idee: Förderung für energie- und flächeneffiziente Neubauten mit zusätzlichen Vorgaben, damit der Neubau im Niedrigpreissegment bleibt.
- Standard: mindestens Effizienzhaus 55 – plus weitere Anforderungen (u. a. Lebenszyklus-/THG-Grenzwerte, Mindestanforderungen an Grundrisse/Aufenthaltsräume und Kosten-Grenzwerte im Lebenszyklus; außerdem keine fossilen Wärmeerzeuger).
- Kreditrahmen: bis zu 100.000 Euro je Wohneinheit, Laufzeiten bis 35 Jahre, Zinsbindung bis 10 Jahre.
Update: Förderkredit für EH55-Neubauten wieder möglich (befristet)
Seit 16. Dezember 2025 ist eine befristete Förderung für Effizienzhaus-55-Neubauten wieder aufgenommen und in das KfW-Programmumfeld integriert (bis 100.000 Euro je Wohneinheit, zinsverbilligt; Details/Startkonditionen veröffentlicht die KfW auf den Produktseiten).
Ganz wichtig: Antrag immer vor Vorhabenbeginn
Für KfW-Programme gilt: erst beantragen, dann beauftragen/bauen/kaufen. Je nach Förderstufe gibt es enge Regeln, ab wann Lieferungs-/Leistungsverträge oder Kaufverträge zulässig sind.
Mehrparteienhaus bauen: Regionale Förderprogramme
Neben der KfW lohnt sich fast immer ein Blick auf Landesförderbanken und kommunale Programme. Viele Bundesländer fördern Neubau oder energieeffizientes Bauen über zinsgünstige Darlehen, Zuschüsse oder Tilgungsnachlässe – teils besonders dann, wenn Mietpreisbindungen, Belegungsrechte oder das Niedrigpreissegment eingehalten werden. Auch Städte und Gemeinden unterstützen Projekte mitunter über Grundstücksvergaben, reduzierte Erschließungskosten oder lokale Klimaschutzförderungen (z. B. für PV, Gründach oder Wärmenetze).
Wichtig: Programme sind regional sehr unterschiedlich und oft kombinierbar – aber meist gilt wie bei der KfW: Förderung vor Vorhabenbeginn beantragen und früh prüfen, welche Bedingungen (z. B. Mietobergrenzen, Einkommensgrenzen, Energiestandard) erfüllt sein müssen.
Rechtliche Grundlagen beim Mehrfamilienhaus
Mehrfamilienhaus-Baugenehmigung: Bauantrag vor Baubeginn
Ein Mehrfamilienhaus ist in der Regel genehmigungspflichtig. Die rechtliche „Doppelbasis“ ist dabei:
- Bauplanungsrecht (Bund): u. a. Baugesetzbuch (BauGB) – regelt, ob und was grundsätzlich gebaut werden darf.
- Bauordnungsrecht (Land): jeweilige Landesbauordnung (LBO) – regelt wie gebaut werden muss (z. B. Abstandsflächen, Brandschutz, Stellplätze, Nachweise/Verfahren). Als Orientierung dient u. a. die Musterbauordnung.
Praxisregel: Bauantrag stellen und Genehmigung/Verfahrensfreistellung klären, bevor Sie starten. (Details variieren je Bundesland und Verfahren.)
Bebauungsplan prüfen: Ist ein MFH am Standort zulässig?
Vor der Planung ist der Blick in den Bebauungsplan (§ 30 BauGB) entscheidend – dort stehen u. a. Art und Maß der Nutzung (z. B. ob Mehrfamilienhäuser zulässig sind), Baugrenzen, Geschossigkeit. Gibt es keinen Bebauungsplan, gilt im unbeplanten Innenbereich häufig § 34 BauGB: Das Vorhaben muss sich in die nähere Umgebung „einfügen“ (u. a. Nutzung, Bauweise, Maß). Liegt das Grundstück im Außenbereich, greifen strengere Regeln nach § 35 BauGB.
Tipp: Frühzeitig eine Bauvoranfrage/Vorbescheid erwägen, wenn Nutzung/Geschossigkeit/Abstandsflächen unklar sind – das reduziert Planungsrisiko.
Teilungserklärung & WEG: Wenn einzelne Wohnungen verkauft werden sollen
Sobald Wohnungen Ihres Mehrfamilienhauses einzeln veräußert werden sollen (Eigentumswohnungen), brauchen Sie die WEG-Struktur. Zentral sind:
- Aufteilung in Sondereigentum/Gemeinschaftseigentum – Sondereigentum soll nur eingeräumt werden, wenn die Einheiten in sich abgeschlossen sind.
- Teilungserklärung / Eintragung: Rechtlich erfolgt die Begründung von Wohnungseigentum über die Erklärung gegenüber dem Grundbuchamt; dazu gehört i. d. R. ein Aufteilungsplan.
- Abgeschlossenheitsbescheinigung: Sie ist praktisch die formale Bestätigung, dass die Einheiten abgeschlossen sind und wird typischerweise von der Bauaufsichtsbehörde ausgestellt (je nach Land/Regelung).
Baugemeinschaft fürs Mehrfamilienhaus: Kosten teilen, Struktur sauber aufsetzen
Bei einer Baugemeinschaft ist die juristische Struktur entscheidend – vor allem für Kostenverteilung, Haftung, Entscheidungsregeln und den Übergang in die Nutzungs-/Eigentumsphase. Häufige Modelle sind z. B. GbR, KG oder eine spätere WEG-Lösung (teilweise auch Genossenschaft).
Tipp: Legen Sie sehr früh fest, ob das Ziel Eigentumswohnungen (WEG) oder Vermietung als Gesamtobjekt ist – davon hängt ab, welche Struktur und Dokumente Sie von Beginn an brauchen.
Mehrfamilienhaus modern gestalten
Ein Mehrfamilienhaus gilt als modern, wenn Architektur, Grundrisse und Energie-Konzept zusammenpassen – und gleichzeitig die Vorgaben aus Bebauungsplan und Gestaltungssatzung eingehalten werden. Je nach Standort sind sowohl klassische Formen (z. B. Satteldach) als auch eine klare, zeitgemäße Bautypen (z. B. Flachdach/Kubus) möglich. Große Fensterflächen und eine hochwertige, langlebige Materialwahl sorgen für helle Räume und einen zeitlosen Innenausbau.
Was macht ein Mehrfamilienhaus „modern“ – aus Sicht von Mietern?
Der erste Eindruck entsteht über die Fassade: Proportionen, Materialmix und Details wie Balkone, Loggien oder gut geplante Eingangsbereiche beeinflussen, wie attraktiv das Gebäude wahrgenommen wird – noch bevor Grundriss und Ausstattung sichtbar sind. Besonders gefragt sind außerdem funktionale Merkmale, die den Alltag erleichtern: barrierearme Zugänge, Abstellflächen, gute Schallschutzwerte und klare Trennung der Wohneinheiten.
Energie & Technik als echter Vermietungsfaktor
Für viele Mietinteressenten sind heute Energieverbrauch und Nebenkosten entscheidend. Ein modernes Mehrfamilienhaus setzt daher auf effiziente Haustechnik und – wo sinnvoll – Photovoltaik (z. B. zur Unterstützung des Allgemeinstroms oder im Mieterstrom-Modell). Das kann die Vermietbarkeit erhöhen, weil das Objekt langfristig planbarer und „zukunftssicherer“ wirkt.
Massiv- oder Fertighaus-Mehrfamilienhaus: Schnell bezugsfertig, gut vermietbar
Ein Mehrfamilienhaus als Fertighaus kann durch die kurze, witterungsunabhängige Rohbauzeit schneller bezugsfertig sein – entweder für den eigenen Einzug oder für die zügige Vermietung. Aber auch bei einen Full-Service-Anbieter für Massivhaus-Mehrfamilienhäuser profitieren Sie von hoher Planungssicherheit.
Für eine starke Nachfrage am Mietmarkt zählen bei beiden Bauweisen vor allem gut vermietbare Grundrisse: klare Zimmerzuschnitte, ausreichend Stauraum, Tageslicht und ein sinnvoller Wohn-/Essbereich. Moderne Mehrfamilienhäuser entstehen dabei nicht nur in Städten und Baulücken, sondern auch im ländlichen Raum – entscheidend ist, dass das Konzept zum Standort und zur Zielgruppe passt.
Moderne Mehrfamilienhäuser: Alle Angebote
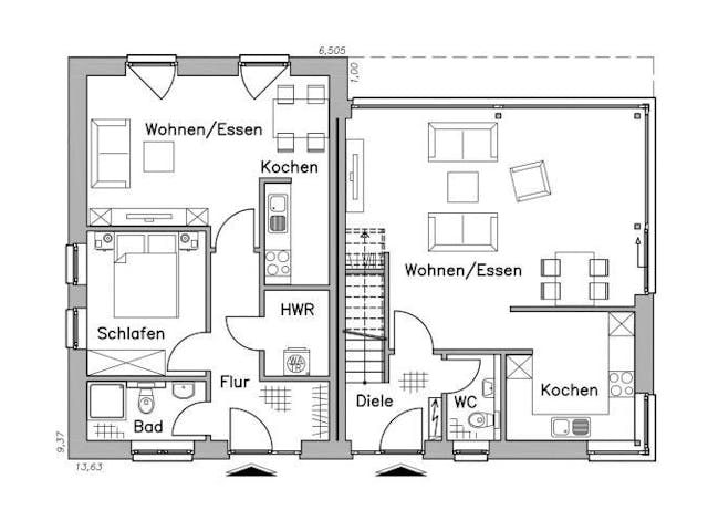
Tipps für einen Mehrfamilienhaus-Grundriss
Ein guter Mehrfamilienhaus-Grundriss entscheidet maßgeblich über Vermietbarkeit, Mietniveau und langfristige Flexibilität. Am besten planen Sie die Wohnungen so, dass sie zur Zielgruppe am Standort passen – und sich bei Bedarf später ohne großen Aufwand anpassen lassen.
Bewährt haben sich in vielen Märkten familienfreundliche, gut möblierbare Grundrisse mit einem klaren Wohn-/Essbereich. Häufig nachgefragt sind Wohnungsgrößen von ca. 70 bis 100 qm, weil sie sowohl Paare als auch Familien mit ein bis zwei Kindern ansprechen. Gleichzeitig lohnt sich ein ausgewogener Mix: Wer unterschiedliche Wohnungsgrößen anbietet (z. B. 2-, 3- und 4-Zimmer), reduziert das Vermietungsrisiko.
Auch innerhalb eines Mehrfamilienhauses dürfen Grundrisse je Geschoss variieren. Typisch ist etwa, im Erdgeschoss kompaktere Einheiten oder zusätzliche Nutzflächen zu planen, während im oberen Geschoss – je nach Bauform – eine großzügige Maisonettewohnung möglich ist. Wichtig bleibt trotz „offenem Wohnen“ eine alltagstaugliche Raumtrennung: Schlafzimmer und – falls vorhanden – Kinderzimmer sollten separat über Türen abtrennbar sein, damit Ruhe, Homeoffice und Familienleben funktionieren.
Individuelle Ideen sind bei Mehrfamilienhaus-Grundrissen grundsätzlich umsetzbar – im Massivhaus wie im Fertighaus. Entscheidend ist, dass die Planung statisch und technisch passt (z. B. tragende Wände, Schallschutz, Leitungsführung). Je früher Ihre Anforderungen in die Grundrissplanung einfließen, desto einfacher lassen sich Sonderwünsche realisieren, ohne dass die Kosten unnötig steigen.
Mehrfamilienhaus-Grundrisse vergleichen
Mehrfamilienhaus-Bau: Häufige Fragen































