Stadtvilla im Landhausstil bauen
Pittoresk, rustikal, idyllisch: Eine Landhaus-Villa glänzt mit eleganter Schlichtheit, strahlt dabei aber auch ein Gefühl von ländlicher Heimat aus. Damit ist eine Stadtvilla im Landhausstil zugleich ein repräsentatives Zuhause und ein echter Wohlfühlort, den die Nähe zur Natur und lokale Architekturtraditionen ausmachen.
Doch was ist eine Villa im Landhausstil, welche Kosten sind bei diesem Haustyp zu erwarten und welche Vorteile hat eine Villa als Landhaus? Diese und weitere wissenswerte Fakten zur Stadtvilla als Landhaus erfahren Sie auf dieser Seite.
Was versteht man unter einer Villa im Landhausstil?
Als Landhaus-Villa bezeichnet man ein freistehendes, quader- oder würfelförmiges Gebäude mit mindestens zwei vollwertigen Etagen, das sich häufig inmitten eines großen, aufwendig gestalteten Gartengrundstücks befindet.
Eine Stadtvilla im Landhausstil lässt sich in verschiedenen Qualitätsstufen bauen, oftmals wird aber eine gehobene bis luxuriöse Ausführung gewählt, die sich beispielsweise durch breitflächige Glasfronten, stilvolle Ausstattungselemente wie beispielsweise Kamine und exquisite Materialien auszeichnet.
Die typischen Dachformen bei einer Villa als Landhaus sind Walm-, Zelt- oder Mansarddach, die je nach lokalen Baustil mit Fachwerk und Holz oder auch Putz und Klinker, gemütlichen Sprossenfenstern und verspielten Holzläden eine ländliche Optik schaffen.
Wie viel kostet es, eine Villa als Landhaus zu bauen?
Planen Sie Ihre Landhaus-Villa schlüsselfertig, dann sind bei mittlerer Qualität Quadratmeterpreise von 2.000 bis 2.500 Euro angemessen. Eine Stadtvilla im Landhausstil kann aber in Abhängigkeit von der Ausbaustufe, Ausführung und Ausstattung durchaus günstiger oder um einiges teurer ausfallen. Preiswerte schlüsselfertige Massiv- oder Fertighaus Landhaus-Villen mit einer Wohnfläche von 100 qm finden Sie bereits ab 180.000 bis 200.000 Euro ab Oberkante Bodenplatte in der Standardausführung der Anbieter.
Neben dem reinen Hauspreis für Ihre Landhaus-Villa sollten Sie folgende Punkte für Ihr Bau-Budget beachten:
- Baunebenkosten
- Grundstück
- Garten, Wege, Zufahrt
- Bodenplatte
- Gegebenenfalls Keller
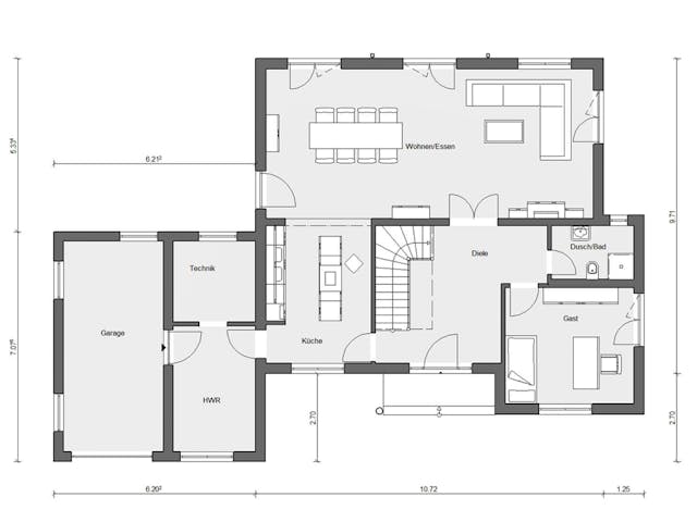
Landhaus-Villa: Grundriss
Weitläufige, offene Räume und ein ausgedehntes Interieur sind bezeichnend für eine Stadtvilla im Landhausstil, die dank mindestens zweier Vollgeschosse und eines geradlinigen Grundrisses viel Platz für Familien und Paare bietet. Zusätzliches Plus sind lichtdurchflutete Zimmer mit reichlich Freiraum und optimaler Ausnutzung der Wohnfläche.
Gemeinsam genutzte Bereiche wie eine offene Kombination aus Küche, Wohn- und Esszimmer sind bei einer Landhaus-Villa idealerweise im Parterre zu finden, Schlafzimmer und der Nachwuchs lassen sich bestens in den ruhigen oberen Etagen unterbringen.
Das elegante Außenbild einer Stadtvilla im Landhausstil können Sie mit überdachten Freisitzen, passendem Carport oder Garage – besonders energieeffizient mit PV-Anlage – und stilvollen Balkonen harmonisch ergänzen. Nutzen Sie die vielfach in die Praxis umgesetzten Grundrisse unserer Baupartner für Landhaus-Villen als Anregung und planen Sie mit uns Ihr neues Eigenheim im Grünen oder am Stadtrand.















