







Kern-Haus: Stadtvilla Aurelio
Ab 585.900 €
Bewertungen von Kern-Haus
3,9
(82)
Wohnfläche
213 m²
Zimmer
5
Ausbaustufe
Schlüsselfertig
Bauweise
Massivhaus
Etagen
2
Energiestandard
Effizienzhaus 55 EE
Dachform
Walmdach
Hausart
Einfamilienhaus
Beschreibung
Exklusive Erscheinung: Die Stadtvilla Aurelio bietet auf zwei Vollgeschossen und über 210 Quadratmetern mit einer Vielzahl an Fenstern nicht nur lichtdurchflutete Räumen, sondern auch einen hohen Wohnkomfort für alle Familienmitglieder – und das in einem repräsentativen Ambiente! Die Stadtvilla Aurelio ist preisgekrönt: 2014 gewann sie den Deutschen Traumhauspreis in der Kategorie „Premiumhäuser“ und ein Jahr später den Leser Cube des Fachschriften-Verlags.
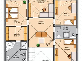
Erdgeschoss: Bereits beim Eintreten zeigt sich die Großzügigkeit der Stadtvilla mit einer Diele von 25 Quadratmetern und dem Blick auf die Galerie im Obergeschoss. Highlight des Erdgeschosses ist der über 60 Quadratmeter große offene Wohn- und Essbereich.
Obergeschoss: Im Obergeschoss befinden sich zwei Kinderzimmer mit eigenem Badezimmer mit Dusche. Für ein entspanntes Arbeiten von Zuhause aus sorgt das Home-Office mit direkt angrenzendem Balkon. Das Eltern-Schlafzimmer bietet einen direkten Zugang zu einer Ankleide und zu einem großen Wellness-Badezimmer.
Kern-Haus steht für 40 Jahre Expertise für das massive, energieeffiziente Bauen und realisiert Architektenhäuser in Ziegel, Bims, Porenbeton oder Stahlbeton (DuoTherm). Darüber hinaus setzt der Massivhaushersteller auf Energieeffizienz bei all seinen Häusern, denn bereits im Standard ist jedes Haus in der höchsten Energieeffizienzklasse A+.
Sie haben Interesse?
Laden Sie sich jetzt Ihr kostenloses Exposé zu diesem Haus herunter:
Grundrissfür Stadtvilla Aurelio
Außenmaße
Länge: 12,85 m
Breite: 12,1 m
Grundrisse
Der Grundriss entspricht nicht Ihren Vorstellungen?
Passen Sie den Grundriss an Ihre persönlichen Bedürfnisse an und besprechen Sie Ihren individuellen Plan mit einem Bauberater des Anbieters.
Merkmale
Energiestandard und Förderung
Energiestandard
Effizienzhaus 55 EE
Dach
Dachform
Walmdach
Dachneigung
22°
Preisdetails für Stadtvilla Aurelio
Schlüsselfertig ab
585.900 €
ab 1.763,80 €
Dieser Preis ist ein Beispiel für den Anfang, ein Berater kann Ihnen ein detailliertes Angebot erstellen, das Ihren Bedürfnissen entspricht.
Möchten Sie bei Ihrem Projekt Geld sparen?
Durch einen Angebotsvergleich mit Massivhaus.de können Sie bis zu 20 % Ihrer Baukosten sparen.
Über den Anbieter Kern-Haus
Zum Anbieterprofil
Bewertungen
3,9
(82)

Bewertungen
3,9
82 BewertungenGut
Kern-Haus in Zahlen
Gründungsjahr
1980
Häuser im Angebot
59
Mitarbeiter
300
Bewertungen von Kern-Haus
Frau Kuss ist sehr nett und engagiert. Sie ke...
Frau Kuss ist sehr nett und engagiert. Sie kennt das Unternehmen und hat eine ausführliche Bedarfsanalyse durchgeführt.
21 März 2026Julia V.
Mail erhalten, leider war ich selbst schlecht...
Mail erhalten, leider war ich selbst schlecht erreichbar.
16 März 2024Florian W.
Email erhalten
Email erhalten
10 März 2024Ana Cecilia S.
Leistungsspektrum
Preisgarantie
Bauzeit Garantie
Individuelle Planung
Blower Door Test
Persönliche Beratung für Ihre individuellen Wünsche
Finden Sie jetzt Ihren Ansprechpartner
Kern-Haus
Auszeichnungen, Zertifikate & Mitgliedschaften





Ähnliche Häuser Für Stadtvilla Aurelio