Fertighaus mit 100 qm bauen
Trotz der relativ geringen Wohnfläche erlaubt auch ein Fertighaus mit 100 qm eine individuelle Gestaltung mit viel Spielraum bei Grundriss und Ausstattung. Ob Stil, Geschosszahl oder Dachform, bei einer wohldurchdachten Planung des Grundrisses lässt sich auch ein Fertighaus von 100 qm ideal in Ihr Wohnkonzept integrieren. Hierbei steht es Ihnen außerdem offen, wie viel Eigenleistung Sie mit einbringen möchten, besonders komfortabel ist ein Fertighaus mit 100 qm und schlüsselfertiger Übergabe, aber auch Ausbau- und Bausatzhaus sind möglich.
Für wen sich ein kleines Fertighaus bis 100 qm eignet, worin die Vorteile eines solchen Eigenheims liegen, wie der perfekte Grundriss aussieht, welche Haushersteller ein Fertighaus mit 100 qm anbieten und welche Kosten anfallen, erläutern wir auf dieser Seite.
Was kostet ein Fertighaus mit 100 qm?
Auch bei kleinen Fertighäusern bis 100 qm gehen die Kosten Hand in Hand mit der gewünschten Ausbaustufe und der Qualität der Ausstattung – um nur zwei der wichtigsten Punkte zu nennen. Über den Daumen gepeilt kostet bei durchschnittlicher Ausführung ein Fertighaus mit 100 qm schlüsselfertig 2.000 bis 2.500 Euro pro Quadratmeter ab Oberkante Bodenplatte, insgesamt also rund 200.000 bis 250.000 Euro zuzüglich weiterer Posten wie Grundstück, Keller und Baunebenkosten. Je mehr Eigenleistungen Sie übernehmen, desto mehr sinkt der Quadratmeterpreis. Bringen Sie sich beim Innenausbau ein, starten Ausbau-Fertighäuser bei ca. 1.300 Euro pro Quadratmeter; sind Sie Handwerks-Profi und gehen auch den Rohbau an, sind Bausatzhäuser in dieser Größe schon ab etwa. 900 Euro pro Quadratmeter erhältlich.
Aber: Für Kosten für zusätzliches Material sowie durch Verzögerungen oder Baumängel entstandene Kosten sind Sie in letzteren beiden Fällen selbst verantwortlich. Zudem sollten Sie Ihre eigene Arbeitszeit mit einrechnen, wenn Sie die tatsächlichen Preise und Kosten für Ihr Fertighaus mit 100 qm berechnen wollen.
Für wen eignen sich kleine Fertighäuser bis 100 qm?
Ein Fertighaus bis 100 qm kommt für verschiedenste Haushalte in Frage, ob als weitläufiges Singlehaus, komfortables Heim für Paare oder gemütliches Zuhause für kleinere Familien.
Auch beim Wohnen liegt Minimalismus voll im Trend – wenn ein Tiny House für Sie etwas zu viel Einschränkung bedeutet, dann könnte ein Haus mit 100 qm das Richtige sein. Denn so genießen Sie die Vorteile eines freistehenden Eigenheims mit einem vergleichsweise relativ geringen Pflegeaufwand und Investitionsanspruch.
Nicht zuletzt bedingt zuweilen die Form oder Größe eines bestehenden Baugrundstücks eine kleinere Bauform, sodass sich auch in diesen Fällen ein Fertighaus mit 100 qm anbietet.
Haus mit 100 qm: Empfohlene Haustypen
Auch bei bestimmten Haustypen kommt ein Fertighaus von 100 qm vorzugsweise in Betracht. Besonders vorteilhaft bei dieser Wohnfläche ist beispielsweise ein Bungalow ohne Treppen und tragende Wände, oder, dank der rechtwinkligen Form, eine kleine Stadtvilla oder ein Kubushaus, da sich in diesen Fällen eine offene Raumplanung leicht umsetzen lässt.
100 qm Haus: Vor- und Nachteile
Die Vorteile eines Fertighauses mit 100 qm beziehen sich vor allem auf Kostenersparnis bei Anschaffung und Betrieb sowie auf den Wartungsaufwand im Vergleich zu einer größeren, aber ansonsten gleichwertigen Immobilie. Generell gilt: Überlegen Sie sich ganz genau, wie viel Platz Sie tatsächlich benötigen, denn so können Sie beim Hausbau beträchtlich sparen und erleichtern sich den späteren Alltag in Ihrem zukünftigen Zuhause.
Fertighaus 100 qm: Vorteile
Niedrigere Grundstückskosten: Geringere Erwerbskosten, Grundsteuer und Grunderwerbsteuer
Günstigerer Hauspreis als bei einem vergleichbaren größeren Objekt
Geringere laufende Kosten z.B. fürs Heizen
Fertighaus 100 qm: Nachteile
Nicht für Großfamilien geeignet
Sorgfältige Grundrissplanung Voraussetzung
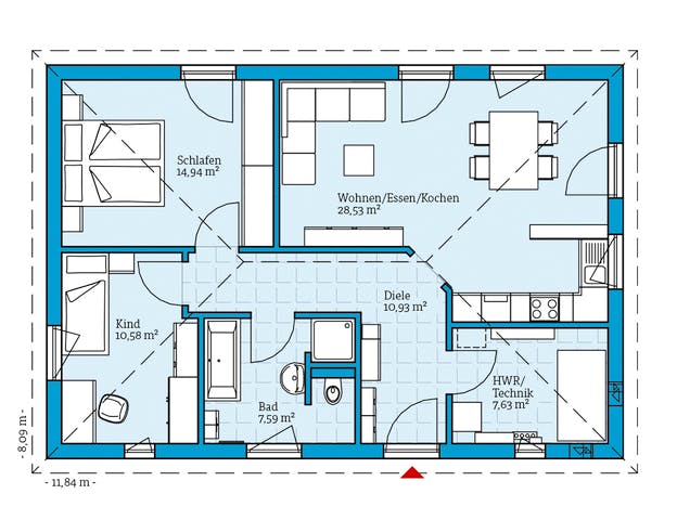
Fertighaus mit 100 qm: Grundriss
Gerade bei kleinen Fertighäusern bis 100 qm ist ein geschickt geplanter Grundriss essentiell. Die Leitprinzipien sollten Funktionalität und Einfachheit sein, denn je offener Ihr Wohnkonzept, desto mehr Wohnraum schaffen Sie de facto.
Sind beispielsweise Trennwände zwischen den Kinderzimmern nötig, empfiehlt es sich, diese am besten in Trockenbauweise einzuziehen. Denn so können Sie später den Grundriss Ihres Fertighauses mit 100 qm leichter ändern und erweitern.
Unser Tipp: Auch die Dachform hat einen greifbaren Effekt auf die tatsächliche Wohnfläche, das Optimum holen Sie beispielsweise mit einem Flachdach oder Walmdach heraus.



































