Einfamilienhaus bauen – Grundrisse & Baupartner
Einfamilienhäuser erfreuen sich aufgrund ihrer zahlreichen Vorteile großer Beliebtheit. Es gibt zahlreiche Baustile und den Grundriss für Ihr Einfamilienhaus können Sie individuell auf die Bedürfnisse Ihrer Familie abstimmen. Das größte Plus ist der freistehende Bau, der für die gewünschte Privatsphäre sorgt und Ihnen die persönliche Gestaltung des Grundstücks erlaubt. Möchten Sie im Neubau ein Einfamilienhaus errichten lassen, können Sie obendrein die Ausbaustufe und viele weitere Faktoren selbst bestimmen. Die Ökobilanz bei technisch aktuell und energieeffizient gehaltenen Objekten ist ein weiterer Pluspunkt, egal ob Ihr Einfamilienhaus modern, luxuriös oder skandinavisch minimalistisch gebaut wird.
Was ist ein Einfamilienhaus?
Laut Definition handelt es sich bei Einfamilienhäusern um freistehende, nicht direkt an Nachbargebäude angrenzende Immobilien. Sie bieten Platz für eine Familie und bestehen somit aus einer Wohneinheit. Die meisten Menschen, die über den Einfamilienhausbau nachdenken, möchten das Eigenheim selbst bewohnen und sind nicht an einem renditeorientierten Hausbau interessiert. Typischerweise werden Einfamilienhäuser auch innerhalb der Familie vererbt, verschenkt oder nach dem Auszug verkauft.
Einfamilienhausbau: Das beliebteste Eigenheim
Dass immer mehr Menschen ein Einfamilienhaus bauen, beruht auf den vielen Vorteilen, die dieser Haustyp mitbringt. Sie können beim Neubau ein Einfamilienhaus mit 1,5 Geschossen errichten, sich für einen barrierefreien Bungalow entscheiden oder auch ein rustikales Landhaus bevorzugen. Selbst eine geräumige Stadtvilla auf einem größeren Grundstück kann für eine Familie gebaut werden. Wenn Sie eine Einliegerwohnung wünschen, ist das in diesem Haustyp problemlos möglich.
Die Beliebtheit des Einfamilienhauses begründet sich in den vielen Formen und Facetten, die Ihnen grenzenlose Gestaltungsfreiheit ermöglichen. Soll Ihr Einfamilienhaus modern und ins Bild der Stadtsiedlung passend gebaut werden, können Sie sich für einen Kubus entscheiden. Im ländlichen Raum dominieren Einfamilienhäuser mit Satteldach und einer Raumaufteilung auf zwei Etagen. Sie haben keine unmittelbaren Nachbarn, wie es zum Beispiel im Reihenhaus oder in einer Doppelhaushälfte der Fall ist. Ob Sie ein großes Grundstück bebauen oder sich für ein Einfamilienhaus auf einem kleineren, pflegeleichten Grundstück entscheiden, ist reine Geschmackssache.
Alles ist möglich. Der Einfamilienhausbau eignet sich für Paare, je nach Größe für Familien mit bis zu vier Personen und mehr und bietet obendrein eine Möglichkeit für Mehrgenerationenhaushalte. Wenn Sie beim Neubau im Einfamilienhaus eine Einliegerwohnung einplanen, ist Platz für die Großeltern oder andere Personen, ohne dass Sie sich in Ihrem Wohnbereich einschränken müssen.
Einfamilienhaus bauen: Kosten
Doch wie viel kostet es, ein Einfamilienhaus zu bauen? Hier ist eine pauschale Angabe unmöglich, da die Kosten beim Einfamilienhausbau von unterschiedlichen Aspekten abhängen. Der durchschnittliche Preis pro Quadratmeter liegt bei Einfamilienhäusern mit normaler Ausstattung bei rund 2.000 Euro. Doch hierbei handelt es sich lediglich um einen Schätzwert, da der Preis Ihres Einfamilienhauses neben weiteren Faktoren von Ausbaustufe, Baumaterial und der konkreten Größe abhängt.
Der hauptsächliche Kostenfaktor ist die Ausbaustufe. Sind Sie handwerklich begabt und möchten beim Innenausbau eines Ausbauhauses oder sogar Bausatzhauses mitwirken, können Sie viel Geld sparen und einige Gewerke selbst vornehmen. Egal welchen Grundriss Sie für Ihr Einfamilienhaus bevorzugen – je mehr Arbeiten Sie selbst vornehmen, desto günstiger gestaltet sich der Hausbau, allerdings müssen Sie für entsprechende Materialkosten und Ähnliches selbst aufkommen.
Dennoch ist es wichtig, dass Sie sich als Baufamilie nicht überschätzen. Wenn Sie ein Einfamilienhaus bauen und sparen möchten, ist es immer sinnvoll, die Ihnen nicht liegenden Handwerksarbeiten fachmännisch ausführen zu lassen. Die meisten Familien bauen einmal im Leben und wissen, dass der Einfamilienhausbau das bisher größte Investment ist. Kommt es hier zu Fehlern, weil man beim Einfamilienhaus bauen Kosten sparen und viel selbst erledigen möchte, zahlt man im Endeffekt deutlich mehr als für den Neubau aus einer Hand.
Am teuersten ist ein Einfamilienhaus in der schlüsselfertigen Ausbaustufe. Dennoch bietet diese Variante einige Vorteile. Das Haus ist zum vereinbarten Termin fertig und Sie müssen nur noch einziehen. Dennoch können Sie den Grundriss im Einfamilienhaus mitbestimmen, sich für individuelle Materialien entscheiden und beim Hausbau mitwirken – ohne dass Sie selbst Hand anlegen und handwerklich aktiv werden müssen. Am günstigsten können Sie ein Einfamilienhaus bauen, wenn Sie abwägen, ob und in welchem Umfang Sie mitwirken möchten oder ob Sie die Immobilie vollständig von Experten errichten lassen und sofort einziehen möchten.
Übrigens: Bodenplatte, Unterkellerung, Grundstück, Baunebenkosten und Ähnliches sind beim Preis Ihres Einfamilienhauses noch nicht enthalten.
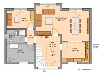
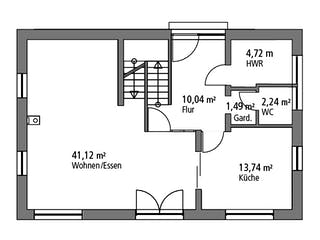
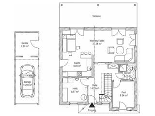
Grundriss fürs Einfamilienhaus: Tipps
Im Einfamilienhausbau spielen offene Grundrisse heute eine essenzielle Rolle. Soll Ihr Einfamilienhaus modern und lichtdurchflutet sein, bietet sich ein offenes Raumkonzept mit einer Verbindung aus Wohnzimmer, Esszimmer und Küche an. Bei Häusern mit 1,5 Geschossen oder 2 Geschossen befinden sich die abgeschlossenen Räume wie Kinderzimmer und Schlafzimmer im Regelfall im Obergeschoss oder unter dem Dach. Der untere Bereich bietet viel Platz zum Wohnen, zum Kochen und für die gemeinsamen Momente mit der Familie.
Es gibt eine ganze Reihe an erprobten und bewährten Grundrissen für Einfamilienhäuser. Haben Sie eine individuelle Idee, ist diese auch bei Fertighäusern gegen einen Aufpreis realisierbar. Hierbei handelt es sich um eine Sonderleistung, die nicht immer nötig ist, da die Auswahl beim Grundriss für ein Einfamilienhaus bereits mannigfaltig ist und praktisch jeden Anspruch erfüllt. Eine ausgewogene Mischung aus offenen und geschlossenen Bereichen erfreut sich großer Beliebtheit. Wenn Sie den Grundriss für ein Einfamilienhaus als Familienresidenz planen, sollten Sie für jedes Kind und für sich selbst einen abschließbaren Raum Für mehr Privatsphäre einkalkulieren. Junge Paare hingegen schätzen den loftartigen Wohnstil, bei dem sehr hohe Decken und wenige Trennwände charakteristisch sind.
Bedenken Sie unbedingt, dass auch im offenen Wohnkonzept tragende Wände nötig sind. Wie Sie die Räume aufteilen, hängt auch von der Gesamtwohnfläche des Einfamilienhauses ab. Sie können ein kleines Einfamilienhaus bauen, welches maximal 100 Quadratmeter Wohnfläche auf einer oder auf zwei Ebenen hat. Oder Sie bauen großzügig und errichten ein Einfamilienhaus mit 200 Quadratmetern Wohnfläche. Die Wohnfläche wirkt sich natürlich auf die Kosten aus, gibt Ihnen aber auch den gewünschten Spielraum und ermöglicht Ihnen eine Raumaufteilung ganz nach Ihrem Anspruch. Ist die Familienplanung noch nicht abgeschlossen, sollte Ihr Kinderwunsch in den Grundriss beim Einfamilienhaus einfließen. Möchten Sie Ihre Immobilie dauerhaft bewohnen, sollten Sie ein Einfamilienhaus bauen, das einen offenen und barrierefreien Grundriss aufweist und das Sie zum Lebensabend nicht zu hohen Kosten vollständig umbauen müssen.

























