Stadtvilla als Fertighaus oder Massivbau
Als Haustyp ist die Stadtvilla bei uns überaus beliebt. Mit dem Begriff der Villa verbinden die meisten Luxus und Eleganz, halten diesen Wohntraum jedoch oft bereits für unerschwinglich, zumal die Immobilienpreise innerhalb von Städten meist deutlich höher liegen als auf dem Land. Stadtvilla-Kosten bewegen sich jedoch in einem variablen Spektrum, Inzwischen sind diese schlicht-eleganten Objekte so nicht mehr nur der reichen Elite vorbehalten, sondern durchaus erschwinglich. In diesem Artikel erfahren Sie, welche Möglichkeiten es gibt, eine Stadtvilla zu bauen und in welchem Bereich sich die Preise für eine Villa im Herzen der Stadt liegen.
Stadtvilla: Ursprung und Definition
Der Begriff Villa oder Stadtvilla entstand ursprünglich in der Zeit des alten Roms. Vor allem die Land- und Herrenhäuser außerhalb der Stadtmauern wurden damals als Villa bezeichnet, die nach und nach durch das Wachstum der Stadt in ganzen Vierteln aus ebendiesen Stadtvillen aufgingen. Ab dem 19. Jahrhundert wurden auch andere freistehende Häuser im Besitz des Großbürgertums als Villa bezeichnet, hier setzte sich dann auch die heutige gebräuchliche Bezeichnung der Stadtvilla durch. Der Baustil hat sich seit dem 19. Jahrhundert zunehmend bewährt, da vor allem die gut situierte Bevölkerung davon träumte, für sich selbst im hektischen städtischen Treiben Rückzugsorte zu schaffen. Die Stadtvillen entstanden demzufolge vor allen Dingen in den Ortsrandlagen und sie wurden meist als Zweit- oder Landhaus genutzt. Seit dem letzten Jahrhundert hat sich der Begriff der Stadtvilla weiter ausgebreitet. Auch freistehende Einfamilienhäuser mit meist entsprechend großzügiger Wohnfläche werden seither als Stadtvilla bezeichnet. Ebenso verdient den Namen Villa ein Haus mit parkähnlicher Gartenanlage, eine Stadtvilla an sich ist aber auch schon in einfacher Ausführung erhältlich.
Wie viel kostet es, eine Stadtvilla zu bauen?
Stadtvilla-Preise unterscheiden sich grundsätzlich nicht sehr stark von den Preisen herkömmlicher Einfamilienhäuser. Im Schnitt sollten Sie mit Stadtvilla-Preisen ab Oberkante Bodenplatte von 2.000 Euro pro Quadratmeter rechnen.
Bei Sonderwünschen bezüglich der Ausstattung der Villa, wie Terrassen, Wintergärten und Ähnlichem fallen jedoch selbstverständlich zusätzliche Kosten an. Mit einem Ausbau- oder Bausatzhaus können Sie hingegen beim Bau Ihrer Stadtvilla Kosten für Gewerke sparen.
Beachten Sie bei der Budgetplanung für den Hausbau jedoch neben dem Grundstückspreis und den Baukosten unbedingt auch die anderen Ausgaben, die bei der Errichtung einer Stadtvilla auf Sie zukommen. Dazu zählen neben Notarkosten und Grundbucheintrag auch Faktoren wie Baunebenkosten sowie die Außenanlage. Falls Sie Ihren Hausbau mit Hilfe eines Kreditinstituts finanzieren wollen, sollten Sie auch die dabei anfallenden Finanzierungskosten in Ihre Berechnungen mit einkalkulieren. Im besten Fall planen Sie Ihr Budget und die Finanzierung möglichst großzügig, um auch unerwartete Kostenfaktoren flexibel ausgleichen zu können.
Für wen eignet sich eine Stadtvilla?
Während die Stadtvillen in den letzten Jahrhunderten vor allem dem Adel und besonders reichen Bürgern vorbehalten waren, sind sie heute gleichermaßen bei Familien, Paaren und zum Beispiel wegen Homeoffice platzbedürftigen Singles beliebt. Natürlich sind Stadtvillen auch weiterhin für jene Baufamilien geeignet, die sich ein ganz besonders exklusives und hochwertiges Domizil in städtischer Umgebung errichten wollen und dafür auch das nötige Kleingeld haben. Nach oben hin sind für Größe und Luxus einer Stadtvilla keine Grenzen gesetzt. Besonders beliebt sind Stadtvillen mit einer energieeffizienten Bauweise. Diese mag zunächst eine etwas höhere Investition erfordern, zahlt sich aber bereits nach wenigen Jahren sowohl finanziell als auch klimatechnisch aus. Hierfür werden beispielsweise natürliche Rohstoffe wie Holz für den Bau verwendet und eine entsprechende Dämmung von Wänden, Decken und Böden installiert, die dafür sorgt, dass die Stadtvilla auch in der kalten Jahreszeit ohne Verluste erwärmt und so die Heizkosten gesenkt werden können. Da eine Stadtvilla meist deutlich geräumiger als ein durchschnittliches Einfamilienhaus ist, ist sie ideal für Paare oder auch Familien mit Kindern.
Stadtvilla modern: Merkmale
Ein wichtiges Kennzeichen einer modernen Stadtvilla ist die vorteilhafte und zentrale Lage innerhalb einer Stadt, während sich der Stil der Gebäude weiterhin an den ländlichen Villen der Vergangenheit aber auch mediterranem oder klarem modernen Design wie dem Bauhausstil orientieren kann. Außerdem verfügt eine Stadtvilla meist über mindestens zwei Vollgeschosse sowie ein Zelt- oder Walmdach. Der Grundriss einer Stadtvilla als Massivhaus oder in Fertigbauweise ist meist sehr großzügig und sorgt für viel Licht durch große verglaste Türen und Fenster. Weitläufige Gärten und ein angenehmes, harmonisches Ambiente runden die Gestaltung einer Stadtvilla ab. Auch bei der Inneneinrichtung wird der Stil der früheren Landvillen häufig beibehalten, oder aber ein geradliniges modernes Interieur gewählt. Dabei kann die Stadtvilla jedoch sowohl sehr luxuriös und elegant eingerichtet sein als auch recht spartanisch und klassisch schlicht wirken. Die individuelle Einrichtung erfolgt ganz nach dem eigenen Geschmack und Budget.
Stadtvilla bauen: Vorteile
Die Errichtung einer Stadtvilla bietet Ihnen zahlreiche Vorteile. Zum einen eignet sich ein entsprechendes repräsentatives Eigenheim bestens als Wertanlage für die Zukunft. Zum anderen bietet eine Stadtvilla besonders viel Raum zum Wohnen und ist dadurch auch im Hinblick auf eine Familienplanung bzw. einen Mehrgenerationenhaushalt sehr vorteilhaft. Die meisten Stadtvillen verfügen zudem über ein großes Grundstück mit angrenzendem Gartenbereich. Auf diese Weise kann die eigene Privatsphäre auch innerhalb einer Stadt besser gewahrt bleiben und man hat genügend Rückzugsmöglichkeiten vom Stress und Lärm in einer Stadt, ohne dafür extra aufs Land ziehen zu müssen. Schließlich bietet der großzügige Grundriss der meisten Stadtvillen auch ausreichend Platz, um nicht nur Wohn-, Ess- und Schlafbereich einzurichten, sondern auch Gästen bequem Unterkunft bieten zu können oder die eigene Arbeitsstätte nach Hause verlagern zu können.
Zusammengefasst hat eine Stadtvilla in moderner Ausführung folgende Vorteile:
- Stadtvilla verbindet ländliche Rückzugsorte mit der Nähe zur pulsierenden Großstadt. In der Stadtvilla gibt es keine direkte Nachbarschaft und damit mehr Privatsphäre.
- Moderne Stadtvillen lassen sich bei Bedarf jederzeit mit Anbauten erweitern.
- Stadtvillen sind in verschiedenen Baustilen, teils auch in Mischstilen zu finden.
- Die Stadtvilla eignet sich besser als die meisten anderen Häuser für energiesparende Technologien und nachhaltiges Bauen.
- Die Stadtvilla zeichnet sich durch großzügige und lichtdurchflutete Räumlichkeiten aus.
- Ein einladender Eingangsbereich lässt ein Gefühl von Luxus und Erhabenheit aufkommen.
- Der Gestaltungsspielraum ist in der Stadtvilla schier unendlich groß.
- Die Stadtvilla kann bei Bedarf auch als Doppelhaus gebaut werden, wodurch sich zwei Baufamilien die anfallenden Kosten teilen können.
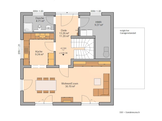
Stadtvilla Grundriss: Inspiration und Planung
In einer Stadtvilla, ob modern oder klassisch, lassen sich die Räume aufgrund der quadratischen und damit nischenlosen Grundfläche und den zwei vollwertigen Etagen besonders individuell einteilen. Genau wie bei anderen Haustypen sorgt auch bei Ihrer zukünftigen Stadtvilla der Grundriss angepasst auf Ihre persönlichen Bedürfnisse für optimalen Wohnkomfort. Trotz einer oftmals überdurchschnittlichen Quadratmeterzahl sollten Sie auf möglichst offenes Wohnen und wenig Verkehrsflächen achten, um möglichst viel nutzbare Wohnfläche herauszuholen.
Wählen Sie aus einer Vielzahl verschiedener Stadtvilla-Grundrisse, und nutzen Sie diese als Inspirationsquelle für Ihr Eigenheim. Finden Sie jetzt Ihre perfekte Stadtvilla als Massiv- oder Fertighaus – wir beraten Sie gerne.













