Großes Haus bauen
Eine großzügige Wohnfläche trägt einen maßgeblichen Anteil zum Wohlbefinden in den eigenen vier Wänden bei. Daher ist ein großes Haus nicht nur für kinderreiche Familien ideal. Wer Wohnen und Arbeiten verbindet, ist mit einem Grundriss über 150 qm ebenso gut beraten und wird den ihm zur Verfügung stehenden Platz schätzen. Ob die Entscheidung für ein klassisches Ein- bis Zweifamilienhaus oder andere moderne große Häuser fällt, ist hingegen eine ganz persönliche Wahl. Baut man ein weitläufig dimensioniertes 200 qm Haus, wird sich eine Stadtvilla oder ein anderes mehrgeschossiges Objekt als optimale Wahl erweisen – bei einem ebenerdigen Bungalow wird dann nämlich die Grundfläche zu groß. Natürlich hat ein Haus über 150 qm auch seinen Preis, der aber nicht zwangsläufig teuer und somit unfinanzierbar sein muss. Wie bei jedem Hausbau ist es auch bei größeren Wohnflächen wichtig, die Raumaufteilung gut zu planen und den Platz optimal zu nutzen.
Was genau versteht man unter einem großen Haus? Für wen eignet sich nun ein großes Haus und mit welchen Kosten können Sie bei einem Massiv- oder Fertighaus mit 150 qm und mehr rechnen? Wie sollte man die Grundrisse großer Häuser gestalten? Diese Fragen beantworten wir im Folgenden.
Was ist ein großes Haus?
Ein großes Haus verfügt per definitionem über eine größere Grundfläche die bei Einfamilienhäusern Grundrisse ab 150 qm umfasst. Weitläufige Massiv- und große Fertighäuser gibt es dabei in den verschiedensten Variationen, vom praktischen Doppelhaus über das ultramoderne Kubushaus bis hin zur edlen Stadtvilla mit Doppelgarage. Egal ob Sie ein 200 qm Haus im Luxussegment oder ein bezahlbares Massiv- oder Fertighaus mit 6 Zimmern, darunter 3 Räume für den Nachwuchs, suchen, bei uns werden Sie fündig.
Zu wem passt ein Haus ab 150 qm?
Hauptsächlich denkt man bei einem 200 qm Haus an eine große Familie mit zwei oder drei Kindern. Auch das Mehrgenerationen-Wohnen macht eine größere Wohnfläche wichtig. Doch es gibt viele andere Wohnkonstellationen und Lebensentwürfe, die ebenfalls für einen Grundriss ab 150 qm sprechen. Wie bereits angesprochen, kann man auf einer großen Wohnfläche von zu Hause aus arbeiten und dafür sorgen, dass der Wohn- und der Arbeitsbereich getrennt sind. Die Planung eines Massiv- oder Fertighauses ab 150 qm bietet obendrein die Möglichkeit, eine Einliegerwohnung einzurichten oder mit dieser als Ferienwohnung Rendite zu erzielen. Ist die Familienplanung noch nicht abgeschlossen und man denkt daran, die Eltern im höheren Alter bei sich aufzunehmen, ist ein 200 qm Haus eine sehr praktische Lösung.
Egal ob man zwei Büros, ein separates Ankleidezimmer oder mehrere Kinder- und Gästezimmer benötigt: In einem Haus ab 150 qm findet sich viel Platz für die Verwirklichung des eigenen Lebenstraumes. Nicht zuletzt lassen sich die Grundrisse großer Häuser im Stil eines Lofts luxuriös ausbauen und bieten sich damit für repräsentative Eigenheim ebenfalls bestens an.
Wie viel kostet es, ein großes Haus zu bauen?
Die Kosten eines großen Hauses hängen prinzipiell von verschiedenen Faktoren ab. Die Ausbaustufe und die Ausstattung entscheiden maßgeblich darüber, welchen Preis pro qm man bei einem 150 qm Haus oder einem noch ausgedehnteren Bauprojekt bezahlt. Auch die technischen Details sind ein essenzieller Faktor in der Preisbildung. Wenn man vom Richtwert ausgeht, kann man für den Neubau eines großen Hauses 2.000 Euro pro Quadratmeter Wohnfläche einrechnen. Das heißt im Umkehrschluss, dass ein Haus mit 150 qm Kosten von durchschnittlich 300.000 Euro erzeugt. Dazu kommen die Baunebenkosten, die Grundstückserwerbskosten und die Mehrkosten für einen unterkellerten Bau. Wer wissen möchte, was ein 200 qm Haus schlüsselfertig kostet, sollte im Mittel von einem Baupreis von 2.00 bis 2.500 EUR / qm ausgehen. Je mehr Eigenleistung man erbringt, desto günstiger kann man sein großes Haus bauen.
Wer handwerklich begabt ist, kann den Grundriss ab 150 qm viel günstiger verwirklichen. Da es verschiedene Ausbaustufen gibt, haben Sie hier die Möglichkeit, Ihre eigenen Kompetenzen einzuschätzen und die Eigenleistung auf Ihr Können abzustimmen. Sehr beliebt ist das Ausbauhaus, bei dem die Baufamilie alle Innenausbauten selbst vornimmt. Hier spart man bares Geld, da viele Handwerkerleistungen wegfallen und man zum Beispiel die Boden- sowie die Wandverkleidung selbst vornimmt. Bezüglich der Elektrik und der Wasserleitungen sollte man allerdings einen Fachmann ans Werk lassen – wenn man nicht selbst entsprechende Ausbildungen hat. Familien, die schlüsselfertig einziehen wollen, können ihr Eigenheim als Haus ab 150 qm problemlos vollständig bauen und ausstatten lassen. In diesem Fall ist keine Eigenleistung nötig und man muss nicht handwerklich begabt sein, um seine Ideen umsetzen und ein großes Haus nach seinen Ansprüchen bewohnen zu können.
Großes Haus: Vorteile
Bei einem 200 qm Haus gibt es viele Möglichkeiten in der Raumaufteilung. Man kann sich beim Grundriss bis 150 qm für den ebenerdigen Bau als Bungalow, aber auch für ein Haus mit zwei bis drei Etagen entscheiden. Ein Bungalow mit 150 qm ist eine perspektivische Entscheidung, da man barrierefrei bauen und so eine Absicherung für den Lebensabend und außergewöhnliche Lebensumstände treffen kann. Allerdings wird hierfür ein weitläufiges Grundstück benötigt. Bei einer größeren Wohnfläche baut man sein großes Haus daher am besten in die Höhe. Ab einem Haus über 150 qm ist der zwei- oder zweieinhalb-geschossige Bau mit offener und guter Raumaufteilung möglich.
Die Vorteile bei einem Haus 150 qm und darüber hinaus liegen klar auf der Hand. Man hat mehr Platz zur Verfügung und kann so beispielsweise problemlos von zu Hause aus arbeiten, wenn es die Umstände erfordern oder wenn man sich beruflich verändern und ein Heimbüro einrichten möchte. Beim Bau in die Höhe spart man obendrein Kosten, denn das Grundstück kann kleiner sein als für einen entsprechenden Bungalow. Die optimale Grundstücksnutzung ist ein Vorteil, der auch perspektivisch eine Ersparnis in der Grundsteuer erbringt. Hat man ein Dachgeschoss, kann man es jederzeit zum Büro oder zu neuen Kinderzimmern ausbauen. Das heißt, dass man auf diesem Weg die Zukunft offen lässt und eine Lösung weiß, wenn sich die Familie vergrößert oder wenn die Lebensumstände neue Lösungen erfordern.
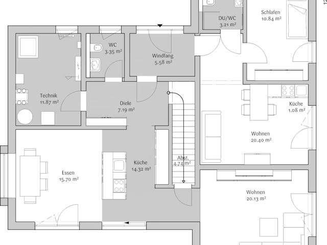
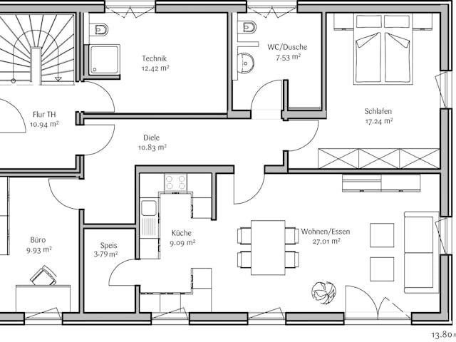
Grundrisse große Häuser
Egal ob man ein großes Haus mit mehreren Etagen oder einen ebenerdigen Bau plant: Die Grundrisse großer Häuser entscheiden über das Wohlbefinden. Hier sollte man perspektivisch denken und den Grundriss über 150 qm wählen, der Spielraum für Veränderungen im Privatleben oder im Berufsumfeld lässt. Werden die Kinder älter, ist eine räumliche Trennung des bisher gemeinsamen Kinderzimmers nötig. Das muss nicht schwer sein, da man die Aufteilung ganz einfach mit Trockenbauwänden vornehmen kann. Wer den Grundriss adäquat plant, behält sich leicht durchführbare Änderungen für die Zukunft vor und hat immer die Möglichkeit, neue Räume zu erschaffen und ein offenes Wohnkonzept umzuwandeln.
Ein großes Haus, von dem ab einem Grundriss über 150 qm die Rede ist, bietet unendlichen Spielraum für Anpassungen und für Veränderungen. Um die gesamte Fläche optimal zu nutzen, sollten Sie dennoch möglichst offen, geradlinig und unkompliziert planen. Einbauschränke schaffen Stauraum und sind eine praktische Lösung, um Nischen oder andere nicht verwendete Bereiche sinnvoll zu gestalten. Türen und Wände sollten in diesem Fall nur dort gebaut werden, wo sie wirklich notwendig sind.


























