




Ü-Haus: Largo 147
Preis auf Anfrage
Bewertungen von Ü-Haus
4,0
(2)
Wohnfläche
123 m²
Zimmer
4
Ausbaustufe
Schlüsselfertig
Bauweise
Fertighaus
Etagen
1
Energiestandard
Effizienzhaus 40
Dachform
Satteldach
Hausart
Einfamilienhaus
Beschreibung
Die Häuser der Reihe LARGO sind als eingeschossige Bungalows mit nich tausgebautem Dachraum konzipiert. Sie bieten eine natürliche Unterteilung in Wohn- und Ruhebereich und können individuell gestaltet werden.
In Längsrichtung kann das Haus um Module von jeweils 600 mm vergrößert werden. Die Pfettendachkonstruktion gestattet eine hohe Variabilität der Raumaufteilung ganz nach den Vorstellungen des Kunden. Rechteckige oder L-förmige Grundrisse sind möglich.
Die Häuser dieses Typs können auch in gespiegelter Ausführung geliefert werden
Sie haben Interesse?
Laden Sie sich jetzt Ihr kostenloses Exposé zu diesem Haus herunter:
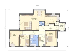
Grundrissfür Largo 147
Außenmaße
Länge: 17,14 m
Breite: 11,41 m
Grundrisse
Der Grundriss entspricht nicht Ihren Vorstellungen?
Passen Sie den Grundriss an Ihre persönlichen Bedürfnisse an und besprechen Sie Ihren individuellen Plan mit einem Bauberater des Anbieters.
Merkmale
Energiestandard und Förderung
Energiestandard
Effizienzhaus 40
Effizienzhaus 40 Plus
Dach
Dachform
Satteldach
Dachneigung
20°
Preisdetails für Largo 147
Schlüsselfertig ab
Preis auf Anfrage
Dieser Preis ist ein Beispiel für den Anfang, ein Berater kann Ihnen ein detailliertes Angebot erstellen, das Ihren Bedürfnissen entspricht.
Möchten Sie bei Ihrem Projekt Geld sparen?
Durch einen Angebotsvergleich mit Massivhaus.de können Sie bis zu 20 % Ihrer Baukosten sparen.
Über den Anbieter Ü-Haus
Zum Anbieterprofil
Bewertungen
4,0
(2)

Bewertungen
4,0
2 BewertungenGut
Ü-Haus in Zahlen
Gründungsjahr
1970
Häuser im Angebot
13
Häuser pro Jahr
500
Häuser gesamt
29.000
Bewertungen von Ü-Haus
Lockeres, entspanntes, ehrliches Beratungsges...
Lockeres, entspanntes, ehrliches Beratungsgespräch
17 Juni 2025Anna T.
Leistungsspektrum
Finanzierungsberatung
Preisgarantie
Bauzeit Garantie
Individuelle Planung
Blower Door Test
Persönliche Beratung für Ihre individuellen Wünsche
Finden Sie jetzt Ihren Ansprechpartner
Ü-Haus
Ähnliche Häuser Für Largo 147