








SchwörerHaus: E 20-201.1 - Französischer Landhausstil
Ab 659.145 €
Bewertungen von SchwörerHaus
4,0
(96)
Wohnfläche
193 m²
Zimmer
8
Ausbaustufe
Schlüsselfertig
Bauweise
Fertighaus
Etagen
2
Energiestandard
Effizienzhaus 55
Dachform
Satteldach
Hausart
Einfamilienhaus
Beschreibung
Kombiniert man Fensterläden mit dezentem Farbton und bodentiefen Fenstern mit einer imposanten Dachlandschaft und man erhält ein Landhaus mit französischem Touch und dem Charme einer klassischen Villa. Garage, Technik- und Hauswirtschaftsraum bilden einen separaten Bereich, der sich mit der neuentwickelten Fassadengestaltung im Natursteinstil auch optisch hervorhebt.
Angaben zum Preis: inkl. 19% MwSt., ab OK Bodenplatte/Kellerdecke, Effizienzhaus 55 EE, Erdgeschoss und Dachgeschoss fast fertig ausgestattet, gültig bis 31.07.2026 für Deutschland außer Inseln.
Merkmale
- Gästezimmer
Sie haben Interesse?
Laden Sie sich jetzt Ihr kostenloses Exposé zu diesem Haus herunter:
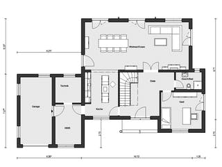
Grundrissfür E 20-201.1 - Französischer Landhausstil
Außenmaße
Länge: 10,71 m
Breite: 10,96 m
Grundrisse
Der Grundriss entspricht nicht Ihren Vorstellungen?
Passen Sie den Grundriss an Ihre persönlichen Bedürfnisse an und besprechen Sie Ihren individuellen Plan mit einem Bauberater des Anbieters.
Merkmale
Energiestandard und Förderung
Energiestandard
Effizienzhaus 40
Effizienzhaus 40 Plus
Effizienzhaus 55
Plusenergiehaus
U-Wert
0,16
Dach
Dachform
Satteldach
Dachneigung
15°
Preisdetails für E 20-201.1 - Französischer Landhausstil
Schlüsselfertig ab
659.145 €
ab 1.984,30 €
Dieser Preis ist ein Beispiel für den Anfang, ein Berater kann Ihnen ein detailliertes Angebot erstellen, das Ihren Bedürfnissen entspricht.
Möchten Sie bei Ihrem Projekt Geld sparen?
Durch einen Angebotsvergleich mit Massivhaus.de können Sie bis zu 20 % Ihrer Baukosten sparen.
Über den Anbieter SchwörerHaus
Zum Anbieterprofil
Bewertungen
4,0
(96)

Bewertungen
4,0
96 BewertungenGut
SchwörerHaus in Zahlen
Gründungsjahr
1950
Häuser im Angebot
68
Häuser pro Jahr
800 - 1.000
Häuser gesamt
47.000
Mitarbeiter
1450
Bewertungen von SchwörerHaus
Sehr unfreundlich, Budget interessiert nicht
War unfreundlich, wollte direkt unser Budget um "mindestens" 200.000 € überschreiten und meinte, dieses wäre nicht möglich umzusetzen. Andere Firmen halten unser gesetztes Budget weitestgehend ein.
29 Apr. 2026Marie-Christine B.
Mit Bauaufträgen voll. Bauzeit zu lange, nich...
Mit Bauaufträgen voll. Bauzeit zu lange, nicht flexibel, hält starr an ihrem Konzept fest.
30 Aug. 2025Lothar K.
Sehr schnell!
Sehr schnell!
12 Juli 2025Kirsten K.
Leistungsspektrum
Finanzierungsberatung
Preisgarantie
Bauzeit Garantie
Individuelle Planung
Blower Door Test
Persönliche Beratung für Ihre individuellen Wünsche
Finden Sie jetzt Ihren Ansprechpartner
SchwörerHaus
Auszeichnungen, Zertifikate & Mitgliedschaften


Ähnliche Häuser Für E 20-201.1 - Französischer Landhausstil