











SCHWABENHAUS: Solitaire Bungalows
Ab 342.605 €
Bewertungen von SCHWABENHAUS
4,0
(274)
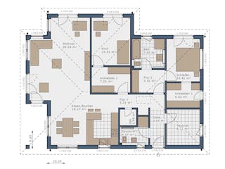
Wohnfläche
150 m²
Ausbaustufe
Schlüsselfertig
Bauweise
Fertighaus
Etagen
1
Energiestandard
Effizienzhaus 40
Dachform
Walmdach
Hausart
Einfamilienhaus
Beschreibung
Solitaire Bungalow – Alles auf einer Ebene, alles im Leben
Mit den Solitaire-Bungalows von Schwabenhaus entscheiden Sie sich für ein Zuhause, das Komfort, Stil und Zukunftsfähigkeit vereint. Ob als großzügiger Familiensitz, altersgerechtes Zuhause oder als Lebensraum für alle, die Offenheit lieben: Die ebenerdigen Entwürfe schaffen ein Wohngefühl der besonderen Art – barriereoptimiert, lichtdurchflutet und perfekt vernetzt mit dem Garten.
Die Solitaire Bungalow Reihe umfasst vier Grundtypen mit 24 individuellen Entwürfen – von kompakt bis großzügig, von klassisch bis modern. Alle Bungalows zeichnen sich durch durchdachte Raumkonzepte, eine offene Grundrissgestaltung und eine elegante Architektur aus. Ob mit einem, zwei oder drei Schlafzimmern, mit Homeoffice, Gästebereich oder Ankleide – hier wird alles auf einer Ebene möglich.
Und wer doch noch mehr Raum wünscht, kann mit den exklusiven Wohnraum-Plus-Modulen zusätzlichen Platz schaffen – etwa für ein Studio im Obergeschoss, ein Eltern-Refugium mit Bad en suite oder ein lichtdurchflutetes Atelier. So wird der Bungalow zum echten Raumwunder.
Für alle, die stilvoll auf einer Ebene wohnen möchten – mit klarem Design, maximalem Komfort und durchdachter Raumaufteilung. Für Menschen, die barrierearm wohnen möchten, ohne auf Design zu verzichten – ob als junge Familie oder in einem Lebensabschnitt, in dem Komfort und Leichtigkeit besonders zählen.
Preis-Information: Preise beziehen sich auf das zugrundeliegende Basishaus Solitaire-B-110 in der Ausbau-Stufe "Fast-Vollendet", Effizienzhaus-55, inkl. Bodenplatte, inkl. All-Inklusive-Leistungspaket, Bilder und Abbildungen können aufpreispflichtige Extras zeigen. Preislisten Stand 08/25
Sie haben Interesse?
Laden Sie sich jetzt Ihr kostenloses Exposé zu diesem Haus herunter:
Merkmale
Energiestandard und Förderung
Energiestandard
Effizienzhaus 40
Dach
Dachform
Walmdach
Preisdetailsfür Solitaire Bungalows
Schlüsselfertig ab
342.605 €
ab 1.031,38 €
Dieser Preis ist ein Beispiel für den Anfang, ein Berater kann Ihnen ein detailliertes Angebot erstellen, das Ihren Bedürfnissen entspricht.
Möchten Sie bei Ihrem Projekt Geld sparen?
Durch einen Angebotsvergleich mit Massivhaus.de können Sie bis zu 20 % Ihrer Baukosten sparen.
Über den Anbieter SCHWABENHAUS
Zum Anbieterprofil
Bewertungen
4,0
(274)

Bewertungen
4,0
274 BewertungenGut
SCHWABENHAUS in Zahlen
Gründungsjahr
1966
Häuser im Angebot
44
Häuser pro Jahr
450
Mitarbeiter
400
Bewertungen von SCHWABENHAUS
Danke an Hrn. Simon. Er ist kompetent und fre...
Danke an Hrn. Simon. Er ist kompetent und freundlich!
03 Apr. 2026Dimitri S.
alles Ok
Bis jetzt Material erhalten. Erste Kontakte
02 Apr. 2026Kurt Heinz H.
Besprechungstermin findet demnächst statt.
Besprechungstermin findet demnächst statt.
16 März 2026Kirsten L.
Leistungsspektrum
Finanzierungsberatung
Preisgarantie
Bauzeit Garantie
Individuelle Planung
Blower Door Test
Persönliche Beratung für Ihre individuellen Wünsche
Finden Sie jetzt Ihren Ansprechpartner
SCHWABENHAUS
Auszeichnungen, Zertifikate & Mitgliedschaften


















Ähnliche Häuser Für Solitaire Bungalows