










Projektbau Mutter: Haus Thalheim
Preis auf Anfrage
Bewertungen von Projektbau Mutter
0
(0)
Wohnfläche
318 m²
Zimmer
10
Ausbaustufe
Schlüsselfertig
Bauweise
Massivhaus
Etagen
3
Energiestandard
Effizienzhaus 55
Dachform
Satteldach
Hausart
Mehrfamilienhaus
Beschreibung
Ländliches Anwesen mit drei Wohnungen.
Ländlicher Stil, moderne Eleganz, liebevolle Facetten und ganz viel Funktionalität: Haus Thalheim kombiniert all das unter einem Dach. Dieses in hellen Tönen gehaltene Traumhaus verfügt über stolze 317 m² Wohnfläche, verteilt auf Untergeschoss, Erdgeschoss und Dachgeschoss. Insgesamt gibt es in diesem Anwesen 5 Schlafzimmer.
Auf jeder Etage steht eine komplette Wohnung zur Verfügung, die vom Treppenhaus durch Eingangstüren getrennt ist. So können drei Parteien, zum Beispiel aus drei Familiengenerationen, mit viel Privatsphäre, aber doch gemeinsam hier wohnen.
Die Wohnungen im Untergeschoss und Erdgeschoss können ebenerdig begangen werden: Das Untergeschoss entweder durch den normalen Eingang oder direkt von der Doppelgarage aus, die Erdgeschoss-Wohnung trockenen Fußes unter der Carport-Überdachung hindurch. Haus Thalheim ist durchdacht für ein Hanggrundstück konzipiert worden.
Preis auf Anfrage
Sie haben Interesse?
Laden Sie sich jetzt Ihr kostenloses Exposé zu diesem Haus herunter:
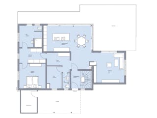
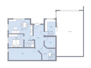
Grundrissfür Haus Thalheim
Außenmaße
Länge: 13 m
Breite: 11,37 m
Grundrisse
Der Grundriss entspricht nicht Ihren Vorstellungen?
Passen Sie den Grundriss an Ihre persönlichen Bedürfnisse an und besprechen Sie Ihren individuellen Plan mit einem Bauberater des Anbieters.
Merkmale
Energiestandard und Förderung
Energiestandard
Effizienzhaus 40
Effizienzhaus 55
Dach
Dachform
Satteldach
Dachneigung
38°
Kniestockhöhe
135 cm
Preisdetails für Haus Thalheim
Schlüsselfertig ab
Preis auf Anfrage
Dieser Preis ist ein Beispiel für den Anfang, ein Berater kann Ihnen ein detailliertes Angebot erstellen, das Ihren Bedürfnissen entspricht.
Möchten Sie bei Ihrem Projekt Geld sparen?
Durch einen Angebotsvergleich mit Massivhaus.de können Sie bis zu 20 % Ihrer Baukosten sparen.
Über den Anbieter Projektbau Mutter
Zum Anbieterprofil
Bewertungen
0
(0)

Bewertungen
0
0 BewertungenKeine
Projektbau Mutter in Zahlen
Gründungsjahr
1978
Häuser im Angebot
5
Häuser pro Jahr
25
Häuser gesamt
1000
Mitarbeiter
8
Leistungsspektrum
Preisgarantie
Bauzeit Garantie
Individuelle Planung
Blower Door Test
Persönliche Beratung für Ihre individuellen Wünsche
Finden Sie jetzt Ihren Ansprechpartner
Projektbau Mutter
Auszeichnungen, Zertifikate & Mitgliedschaften



Ähnliche Häuser Für Haus Thalheim