






OKAL Haus: Musterhaus Schkeuditz
Ab 622.900 €
Bewertungen von OKAL Haus
4,6
(18)
Wohnfläche
235 m²
Zimmer
9
Ausbaustufe
Schlüsselfertig
Bauweise
Fertighaus
Etagen
2
Energiestandard
Effizienzhaus 55
Dachform
Walmdach
Hausart
Einfamilienhaus
Beschreibung
Bauen mit Weitsicht!
Schon die Architektur spricht für sich: der weiße Kubus mit den tiefen Fenstern wird durch farblich abgesetzte Anbauten ergänzt. Der quatratische Eck-Anbau erweitert die Diele um ein weiteres Zimmer. Der zweite Anbau, der sich an den Wohnbereich anschließt, lässt alles offen: Apartment, Home-Office oder praktische Doppelgarage. Mit diesem Plus an Raum passt sich das Haus den wandelnden Bedürfnissen seiner Bewohner optimal an.
Doch Schkeuditz hat noch mehr zu bieten: im Erdgeschoss begeistert der helle Koch-, Ess- und Wohnbereich mit nahezu 55 qm. Im Obergeschoss bestechen das großzügige Bad und der große Übereck-Balkon. Argumente, die zählen.
Merkmale
- Erker
- Gästezimmer
- Garage
- Balkon
Sie haben Interesse?
Laden Sie sich jetzt Ihr kostenloses Exposé zu diesem Haus herunter:
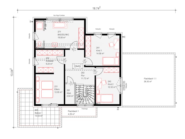
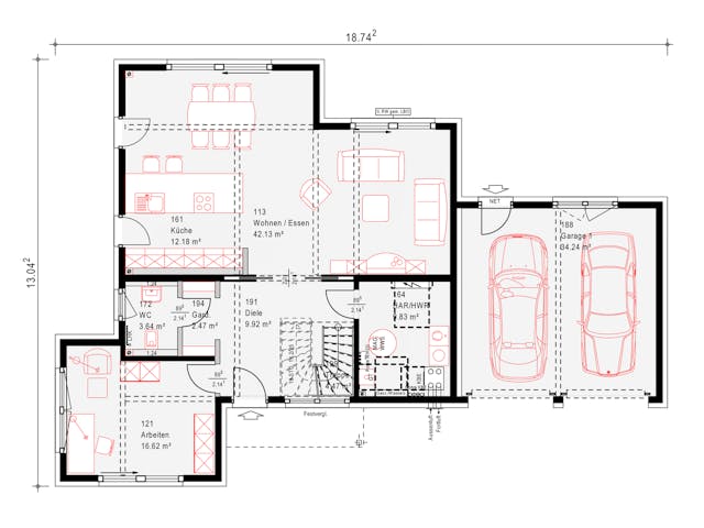
Grundrissfür Musterhaus Schkeuditz
Außenmaße
Länge: 18,74 m
Breite: 13,04 m
Grundrisse
Der Grundriss entspricht nicht Ihren Vorstellungen?
Passen Sie den Grundriss an Ihre persönlichen Bedürfnisse an und besprechen Sie Ihren individuellen Plan mit einem Bauberater des Anbieters.
Merkmale
Energiestandard und Förderung
Energiestandard
Effizienzhaus 40
Effizienzhaus 40 Plus
Effizienzhaus 55
Plusenergiehaus
U-Wert
0,12
Dach
Dachform
Walmdach
Dachneigung
20°
Kniestockhöhe
40 cm
Preisdetails für Musterhaus Schkeuditz
Schlüsselfertig ab
622.900 €
ab 1.875,19 €
Dieser Preis ist ein Beispiel für den Anfang, ein Berater kann Ihnen ein detailliertes Angebot erstellen, das Ihren Bedürfnissen entspricht.
Möchten Sie bei Ihrem Projekt Geld sparen?
Durch einen Angebotsvergleich mit Massivhaus.de können Sie bis zu 20 % Ihrer Baukosten sparen.
Über den Anbieter OKAL Haus
Zum Anbieterprofil
Bewertungen
4,6
(18)

Bewertungen
4,6
18 BewertungenHervorragend
OKAL Haus in Zahlen
Gründungsjahr
1928
Häuser im Angebot
74
Häuser gesamt
> 90.000
Mitarbeiter
160
Bewertungen von OKAL Haus
Grundstückssuche
Es muss ein Grundstück gefunden werden.
04 Apr. 2026Marina W.
Starker Start in unser Bauprojekt
Beratung, Fachkenntnis, Flexibilität und Geduld – einfach super! Wir hoffen, dass es beim Hausbau genauso weitergeht!
21 Feb. 2026Ronny L.
Gute Beratung Leider hat sich das Projekt er...
Gute Beratung Leider hat sich das Projekt erledigt
14 Feb. 2026Georg M.
Leistungsspektrum
Finanzierungsberatung
Preisgarantie
Bauzeit Garantie
Individuelle Planung
Blower Door Test
Persönliche Beratung für Ihre individuellen Wünsche
Finden Sie jetzt Ihren Ansprechpartner
OKAL Haus
Auszeichnungen, Zertifikate & Mitgliedschaften






Ähnliche Häuser Für Musterhaus Schkeuditz