





Nissen Massivhaus: Einfeld
Preis auf Anfrage
Bewertungen von Nissen Massivhaus
0
(0)
Wohnfläche
110 m²
Zimmer
4,5
Ausbaustufe
Schlüsselfertig
Bauweise
Massivhaus
Etagen
1,5
Energiestandard
Effizienzhaus 40
Dachform
Satteldach
Hausart
Einfamilienhaus
Beschreibung
Das frei stehende Einfamilienhaus ist das, wovon viele Träumen. Ein Haus, um das man herumgehen kann, mit viel Platz für Kinder, einem idyllischen Garten zum Genießen und etwas Abstand zum Nachbarn. Das ist das Besondere am Einzelhaus und das, was die Engländer mit dem Sprichwort "my home is my castle" meinen - der wahr gewordene Traum vom individuellen Leben nach den eigenen Bedürfnissen. Unsere Häuser werden alle individuell nach Ihren Bedürfnissen und Wünschen angepasst - wir machen es möglich.
Sie haben Interesse?
Laden Sie sich jetzt Ihr kostenloses Exposé zu diesem Haus herunter:
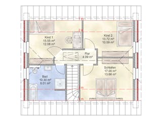
Grundrissfür Einfeld
Außenmaße
Länge: 9,99 m
Breite: 8,3 m
Grundrisse
Der Grundriss entspricht nicht Ihren Vorstellungen?
Passen Sie den Grundriss an Ihre persönlichen Bedürfnisse an und besprechen Sie Ihren individuellen Plan mit einem Bauberater des Anbieters.
Merkmale
Energiestandard und Förderung
Energiestandard
Effizienzhaus 40
Dach
Dachform
Satteldach
Dachneigung
45°
Kniestockhöhe
100 cm
Preisdetails für Einfeld
Schlüsselfertig ab
Preis auf Anfrage
Dieser Preis ist ein Beispiel für den Anfang, ein Berater kann Ihnen ein detailliertes Angebot erstellen, das Ihren Bedürfnissen entspricht.
Möchten Sie bei Ihrem Projekt Geld sparen?
Durch einen Angebotsvergleich mit Massivhaus.de können Sie bis zu 20 % Ihrer Baukosten sparen.
Über den Anbieter Nissen Massivhaus
Zum Anbieterprofil
Bewertungen
0
(0)

Bewertungen
0
0 BewertungenKeine
Nissen Massivhaus in Zahlen
Gründungsjahr
2008
Häuser im Angebot
21
Häuser pro Jahr
ca. 50
Mitarbeiter
7
Leistungsspektrum
Preisgarantie
Bauzeit Garantie
Individuelle Planung
Blower Door Test
Persönliche Beratung für Ihre individuellen Wünsche
Finden Sie jetzt Ihren Ansprechpartner
Nissen Massivhaus
Ähnliche Häuser Für Einfeld