








Naturholzhaus Bayern: Haus Jacobi
Preis auf Anfrage
Bewertungen von Naturholzhaus Bayern
0
(0)
Wohnfläche
164 m²
Zimmer
4
Ausbaustufe
Schlüsselfertig
Bauweise
Fertighaus
Etagen
2
Energiestandard
Effizienzhaus 40 Plus
Dachform
Satteldach
Hausart
Einfamilienhaus
Beschreibung
Mit Blick auf die Umgebung und Tradition konzipiert.
In wunderschöner Umgebung, umgeben von Villen aus der Gründungszeit, sollte ein Wohnhaus entstehen, welches in seiner Form- und Materialansprache zurückhaltend wirkt und sich wie selbstverständlich in die Umgebung einpasst. Die Entwurfsverfasser schufen ein scheinbar dezentes Gebäude, das zahlreiche wohlüberlegte Details aufweist. In ihrer Unaufdringlichkeit erinnert die Architektursprahce an einen wohlbekannten Archetyp aus alten, gewachsenen Dorfstrukturen: die klassische Scheune oder in Seenähe das klassische Bootshaus. Übersetzt in die moderne Architektur wurden dabei die Proportionen des Gebäudes perfektioniert, so dass ein perfekt harmonisches Ganzes entstand. So wirkt das Gebäude mit seiner vorvergrauten Naturholzfassade wie eine natürliche Ergänzung inmitten des alten Baumbestandes.
Sie haben Interesse?
Laden Sie sich jetzt Ihr kostenloses Exposé zu diesem Haus herunter:
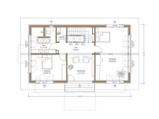
Grundrissfür Haus Jacobi
Außenmaße
Länge: 14,15 m
Breite: 8,15 m
Grundrisse
Der Grundriss entspricht nicht Ihren Vorstellungen?
Passen Sie den Grundriss an Ihre persönlichen Bedürfnisse an und besprechen Sie Ihren individuellen Plan mit einem Bauberater des Anbieters.
Merkmale
Energiestandard und Förderung
Energiestandard
Effizienzhaus 40 Plus
U-Wert
0,149
Dach
Dachform
Satteldach
Dachneigung
18°
Kniestockhöhe
250 cm
Preisdetails für Haus Jacobi
Schlüsselfertig ab
Preis auf Anfrage
Dieser Preis ist ein Beispiel für den Anfang, ein Berater kann Ihnen ein detailliertes Angebot erstellen, das Ihren Bedürfnissen entspricht.
Möchten Sie bei Ihrem Projekt Geld sparen?
Durch einen Angebotsvergleich mit Massivhaus.de können Sie bis zu 20 % Ihrer Baukosten sparen.
Über den Anbieter Naturholzhaus Bayern
Zum Anbieterprofil
Bewertungen
0
(0)

Bewertungen
0
0 BewertungenKeine
Naturholzhaus Bayern in Zahlen
Gründungsjahr
1994
Häuser im Angebot
10
Häuser pro Jahr
30
Häuser gesamt
750
Mitarbeiter
40
Leistungsspektrum
Finanzierungsberatung
Preisgarantie
Bauzeit Garantie
Individuelle Planung
Blower Door Test
Persönliche Beratung für Ihre individuellen Wünsche
Finden Sie jetzt Ihren Ansprechpartner
Naturholzhaus Bayern
Weitere Häuser
Ähnliche Häuser Für Haus Jacobi