






MYMassivhaus: Hanghaus Grossmann mit begrünter Dachterrasse
Preis auf Anfrage
Bewertungen von MYMassivhaus
5,0
(1)
Wohnfläche
204 m²
Zimmer
6
Ausbaustufe
Schlüsselfertig
Bauweise
Fertighaus
Etagen
3
Energiestandard
Effizienzhaus 55
Dachform
Pultdach
Hausart
Zweifamilienhaus
Beschreibung
Dieses moderne Hanghaus nahe Altensteig besticht durch seine architektonisch anspruchsvolle Gestaltung und eine offene Raumaufteilung über drei Ebenen. Große Fensterflächen, Terrassen und gute Grundrisslösungen schaffen ein einzigartiges Wohngefühl.
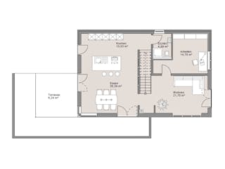
Erdgeschoss
Im Erdgeschoss mit praktisch integrierter Doppelgarage befinden sich neben der Diele und Garderobe zwei Abstellräume sowie ein großer Hauswirtschaftsraum mit angrenzendem Technikraum.
Gartengeschoss
Über die Treppe gelangt man in das darüber liegende Gartengeschoss. Das Herzstück des Hauses: Eine große offene Küche mit großzügigem Essbereich und angrenzender Dachterrasse mit herrlichem Ausblick. Diese wurde direkt auf dem Flachdach der Garage gebaut und lädt zu gemütlichen Stunden in der Abendsonne ein. Komplettiert wird das Raumangebot auf dieser Etage von einem geräumigen Wohn- und Lesezimmer, einem separatem Fernsehzimmer sowie einem Gäste-WC mit Dusche.
Dachgeschoss
Das Dachgeschoss mit herrlicher Loggia bietet ein großes Schlafzimmer mit eingebauter Ankleide und direkt angrenzendem, großzügigem Badezimmer. Zudem befinden sich noch ein zweites Schlafzimmer, ein weiteres Bad mit Dusche und eine separate Küche mit Essbereich im oberen Stockwerk. Dieser Bereich kann bei Bedarf unkompliziert als separate Einliegerwohnung genutzt werden.
Modernes Wohnen im Massivhaus
Mit seinem besonderen Grundriss und der einzigartigen Hanglage überzeugt dieses moderne Massivhaus als stilvolles Familiendomizil. Ein echtes Zuhause mit Charakter.
Merkmale
- Einliegerwohnung
- Gästezimmer
- Kamin
Sie haben Interesse?
Laden Sie sich jetzt Ihr kostenloses Exposé zu diesem Haus herunter:
Grundrissfür Hanghaus Grossmann mit begrünter Dachterrasse
Grundrisse
Der Grundriss entspricht nicht Ihren Vorstellungen?
Passen Sie den Grundriss an Ihre persönlichen Bedürfnisse an und besprechen Sie Ihren individuellen Plan mit einem Bauberater des Anbieters.
Merkmale
Energiestandard und Förderung
Energiestandard
Effizienzhaus 40
Effizienzhaus 40 EE
Effizienzhaus 40 NH
Effizienzhaus 40 Plus
Effizienzhaus 55
Plusenergiehaus
Dach
Dachform
Pultdach
Preisdetails für Hanghaus Grossmann mit begrünter Dachterrasse
Schlüsselfertig ab
Preis auf Anfrage
Dieser Preis ist ein Beispiel für den Anfang, ein Berater kann Ihnen ein detailliertes Angebot erstellen, das Ihren Bedürfnissen entspricht.
Möchten Sie bei Ihrem Projekt Geld sparen?
Durch einen Angebotsvergleich mit Massivhaus.de können Sie bis zu 20 % Ihrer Baukosten sparen.
Über den Anbieter MYMassivhaus
Zum Anbieterprofil
Bewertungen
5,0
(1)

Bewertungen
5,0
1 BewertungHervorragend
MYMassivhaus in Zahlen
Häuser im Angebot
10
Häuser pro Jahr
> 100
Mitarbeiter
> 100
Persönliche Beratung für Ihre individuellen Wünsche
Finden Sie jetzt Ihren Ansprechpartner
MYMassivhaus
Ähnliche Häuser Für Hanghaus Grossmann mit begrünter Dachterrasse