









Meisterstück-HAUS: Bauhaus-Villa
Preis auf Anfrage
Bewertungen von Meisterstück-HAUS
4,3
(15)
Wohnfläche
208 m²
Zimmer
8,5
Bauweise
Fertighaus
Etagen
2
Energiestandard
Effizienzhaus 55
Dachform
Flachdach
Hausart
Einfamilienhaus
Beschreibung
Dieses moderne Cubushaus im Bauhausstil bietet eine großzügige Wohnfläche. Im Erdgeschoss findet auf den 120 m² ein geräumiger Wohn- und Essbereich mit offener Küche Platz. Zudem kann ein Gäste- oder Arbeitszimmer realisiert werden. Das Obergeschoss bietet mit 88 m² die Möglichkeit für große Schlafzimmer. Die Villa wird aus nachhaltigem Holz in Holztafelbauweise errichtet und entspricht den Effizienzhaus-Ansprüchen.
Weitere Highlights:
- Integrierte Doppelgarage
- Großzügige Dachterrasse im Obergeschoss
- Zum Teil geschützte Terrasse
- Überdachter Eingangsbereich
- Große Glasflächen
Preise auf Anfrage
Merkmale
- Terrasse
- Gästezimmer
- Keller
Sie haben Interesse?
Laden Sie sich jetzt Ihr kostenloses Exposé zu diesem Haus herunter:
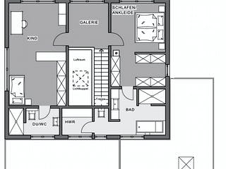
Grundrissfür Bauhaus-Villa
Grundrisse
Der Grundriss entspricht nicht Ihren Vorstellungen?
Passen Sie den Grundriss an Ihre persönlichen Bedürfnisse an und besprechen Sie Ihren individuellen Plan mit einem Bauberater des Anbieters.
Merkmale
Energiestandard und Förderung
Energiestandard
Effizienzhaus 40
Effizienzhaus 40 Plus
Effizienzhaus 55
Plusenergiehaus
U-Wert
0,169
Dach
Dachform
Flachdach
Preisdetails für Bauhaus-Villa
Preis auf Anfrage
Dieser Preis ist ein Beispiel für den Anfang, ein Berater kann Ihnen ein detailliertes Angebot erstellen, das Ihren Bedürfnissen entspricht.
Möchten Sie bei Ihrem Projekt Geld sparen?
Durch einen Angebotsvergleich mit Massivhaus.de können Sie bis zu 20 % Ihrer Baukosten sparen.
Über den Anbieter Meisterstück-HAUS

Bewertungen
4,3
(15)

Bewertungen
4,3
15 BewertungenHervorragend
Meisterstück-HAUS in Zahlen
Gründungsjahr
1903
Bewertungen von Meisterstück-HAUS
sehr informativ
Sehr informative und zielführende Beratung
16 März 2024Frank Oliver Z.
Leistungsspektrum
Finanzierungsberatung
Preisgarantie
Bauzeit Garantie
Individuelle Planung
Blower Door Test
Ähnliche Häuser Für Bauhaus-Villa