





Living Fertighaus: SOLUTION 242 V5
Ab 655.971 €
Bewertungen von Living Fertighaus
4,1
(225)
Wohnfläche
231 m²
Ausbaustufe
Schlüsselfertig
Bauweise
Fertighaus
Energiestandard
Effizienzhaus 55
Dachform
Satteldach
Hausart
Mehrfamilienhaus
Beschreibung
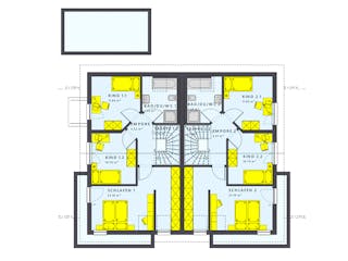
Modernes Zweifamilienhaus mit Übereck-Panorama-Erker und Carport
Das SOLUTION 242 steht für zwei moderne Wohneinheiten unter einem Dach. Viel Platz, eine stylische Architektur und helle Räume machen dein SOLUTION 242 zu einem ganz besonderen Eigenheim – und das alles im Doppelpack. Beide Haushälften bieten das perfekte Zuhause für jeweils eine vierköpfige Familie, die das Leben genießt. Im hellen, großzügigen Erdgeschoss ist viel Raum um zu kochen, deine Freunde zu bewirten, Feste zu feiern oder einfach mal die Seele baumeln zu lassen. Und im Obergeschoss gibt es Privatsphäre für deine ganze Familie und Wellness pur im Badezimmer.
Der Preis bezieht sich auf den Standard-Leistungsumfang in der Ausbaustufe Ausbauhaus-Plus als Effizienzhaus 55 I-KON Standard inkl. Bodenplatte, Zuhause-Paket und Küche gemäß gültiger Bau- und Leistungsbeschreibung Stand 02/2026 und Preisliste 02/2026. Grundrisse und Abbildungen können Extras zeigen. Flächenangaben nach DIN 277.
Sie haben Interesse?
Laden Sie sich jetzt Ihr kostenloses Exposé zu diesem Haus herunter:
Merkmale
Energiestandard und Förderung
Energiestandard
Effizienzhaus 55
Dach
Dachform
Satteldach
Dachneigung
25°
Preisdetailsfür SOLUTION 242 V5
Schlüsselfertig ab
655.971 €
ab 1.974,75 €
Dieser Preis ist ein Beispiel für den Anfang, ein Berater kann Ihnen ein detailliertes Angebot erstellen, das Ihren Bedürfnissen entspricht.
Möchten Sie bei Ihrem Projekt Geld sparen?
Durch einen Angebotsvergleich mit Massivhaus.de können Sie bis zu 20 % Ihrer Baukosten sparen.
Über den Anbieter Living Fertighaus
Zum Anbieterprofil
Bewertungen
4,1
(225)

Bewertungen
4,1
225 BewertungenGut
Living Fertighaus in Zahlen
Gründungsjahr
2015
Häuser im Angebot
95
Häuser pro Jahr
> 100
Mitarbeiter
1-10
Bewertungen von Living Fertighaus
Kontakt erfolgte gleich auf mehreren Kanälen....
Kontakt erfolgte gleich auf mehreren Kanälen. Der Vertrieb war sehr schnell. Die Fachperson aber was etwas verhalten in ihrer Ansprache. Wir werden voraussichtlich keinen Termin machen - zu viel Auswahl macht keinen Sinn.
15 Jan. 2026Yvonne G.
Erstberatung erfolgt
Erstberatung erfolgt, Angebot noch offen, noch viele Fragen offen
23 Sep. 2025Frank D.
Versprechen und keine Reaktion mehr
Erstkontakt sehr vielversprechend. Freundliches und aufgeschlossenes Gespräch. Danach leere Versprechen ein Angebot zu erstellen und Infomaterial bereitzustellen. Berater telefonisch nicht mehr erreichbar. Auch via Mail keine Antwort mehr erhalten. Rückmeldungen leider Fehlanzeige. Schade! Schade, weil wir uns mit Living einen vertrauenswürdigen Partner zum Hausbau an die Seite holen wollten,
06 Feb. 2025Dominique G.
Leistungsspektrum
Finanzierungsberatung
Preisgarantie
Bauzeit Garantie
Individuelle Planung
Blower Door Test
Persönliche Beratung für Ihre individuellen Wünsche
Finden Sie jetzt Ihren Ansprechpartner
Living Fertighaus
Ähnliche Häuser Für SOLUTION 242 V5