



Kern-Haus: Stadtvilla Pura
Ab 366.900 €
Bewertungen von Kern-Haus
3,9
(82)
Wohnfläche
130 m²
Zimmer
4
Ausbaustufe
Schlüsselfertig
Bauweise
Massivhaus
Etagen
2
Energiestandard
Effizienzhaus 55 EE
Dachform
Zeltdach
Hausart
Einfamilienhaus
Beschreibung
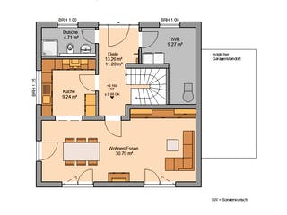
Von der Diele der Stadtvilla Pura aus erreichen Sie den Hauswirtschaftsraum, das praktische Duschbad sowie die Küche und das großzügige Wohn- und Esszimmer. Die Stadtvilla Pura bietet sowohl im Erd- als auch im Obergeschoss zur Gartenseite hin bodentiefe Fenster.
Über eine u-förmige Treppe gelangen Sie ins Obergeschoss. Die beiden Kinderzimmer sind mit rund 14 Quadratmetern nahezu gleich groß - ein Kinderzimmer ist zur Eingangsseite gerichtet, das andere mit einem bodentiefen Fensterelement zur Gartenseite hin. Das Elternschlafzimmer wird ebenfalls durch bodentiefe Fenster lichtdurchflutet und bietet angrenzend eine praktische Ankleide. Das Familienbadezimmer verfügt über eine große, bodengleich geflieste Dusche sowie eine Badewanne.
Kern-Haus steht für 40 Jahre Expertise für das massive, energieeffiziente Bauen und realisiert Architektenhäuser in Ziegel, Bims, Porenbeton oder Stahlbeton (DuoTherm). Darüber hinaus setzt der Massivhaushersteller auf Energieeffizienz bei all seinen Häusern, denn bereits im Standard ist jedes Haus in der höchsten Energieeffizienzklasse A+.
Sie haben Interesse?
Laden Sie sich jetzt Ihr kostenloses Exposé zu diesem Haus herunter:
Grundrissfür Stadtvilla Pura
Außenmaße
Länge: 9,35 m
Breite: 9,35 m
Grundrisse
Der Grundriss entspricht nicht Ihren Vorstellungen?
Passen Sie den Grundriss an Ihre persönlichen Bedürfnisse an und besprechen Sie Ihren individuellen Plan mit einem Bauberater des Anbieters.
Merkmale
Energiestandard und Förderung
Energiestandard
Effizienzhaus 55 EE
Dach
Dachform
Zeltdach
Dachneigung
22.5°
Preisdetails für Stadtvilla Pura
Schlüsselfertig ab
366.900 €
ab 1.104,52 €
Dieser Preis ist ein Beispiel für den Anfang, ein Berater kann Ihnen ein detailliertes Angebot erstellen, das Ihren Bedürfnissen entspricht.
Möchten Sie bei Ihrem Projekt Geld sparen?
Durch einen Angebotsvergleich mit Massivhaus.de können Sie bis zu 20 % Ihrer Baukosten sparen.
Über den Anbieter Kern-Haus
Zum Anbieterprofil
Bewertungen
3,9
(82)

Bewertungen
3,9
82 BewertungenGut
Kern-Haus in Zahlen
Gründungsjahr
1980
Häuser im Angebot
59
Mitarbeiter
300
Bewertungen von Kern-Haus
Frau Kuss ist sehr nett und engagiert. Sie ke...
Frau Kuss ist sehr nett und engagiert. Sie kennt das Unternehmen und hat eine ausführliche Bedarfsanalyse durchgeführt.
21 März 2026Julia V.
Mail erhalten, leider war ich selbst schlecht...
Mail erhalten, leider war ich selbst schlecht erreichbar.
16 März 2024Florian W.
Email erhalten
Email erhalten
10 März 2024Ana Cecilia S.
Leistungsspektrum
Preisgarantie
Bauzeit Garantie
Individuelle Planung
Blower Door Test
Persönliche Beratung für Ihre individuellen Wünsche
Finden Sie jetzt Ihren Ansprechpartner
Kern-Haus
Auszeichnungen, Zertifikate & Mitgliedschaften





Ähnliche Häuser Für Stadtvilla Pura