



HANNOVER HAUS: Modern 154 Style
Ab 354.500 €
Bewertungen von HANNOVER HAUS
0
(0)
Wohnfläche
154 m²
Zimmer
5
Ausbaustufe
Schlüsselfertig
Bauweise
Massivhaus
Etagen
1,5
Energiestandard
Effizienzhaus 40 Plus
Dachform
Satteldach
Hausart
Einfamilienhaus
Beschreibung
Kleine Variationen - Große Wirkung: DIE ZUSÄTZLICHEN "MINI-GAUBEN" IM DACHGESCHOSS SORGEN ALS ARCHITEKTONISCHES HIGHLIGHT FÜR NOCH MEHR HELLIGKEIT UND WOHNKOMFORT.
BSONDERE MERKMALE
• Eingeschossiger Baukörper
• Stilbewusste Architektur
• Ausdrucksstarkes und futuristisches Design
• Helle Raumatmosphäre
• 150 cm Drempel
Sie haben Interesse?
Laden Sie sich jetzt Ihr kostenloses Exposé zu diesem Haus herunter:
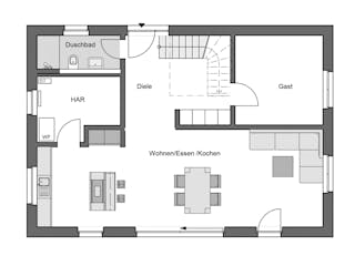
Grundrissfür Modern 154 Style
Grundrisse
Der Grundriss entspricht nicht Ihren Vorstellungen?
Passen Sie den Grundriss an Ihre persönlichen Bedürfnisse an und besprechen Sie Ihren individuellen Plan mit einem Bauberater des Anbieters.
Merkmale
Energiestandard und Förderung
Energiestandard
Effizienzhaus 40
Effizienzhaus 40 Plus
Effizienzhaus 55
Dach
Dachform
Satteldach
Dachneigung
35°
Preisdetails für Modern 154 Style
Schlüsselfertig ab
354.500 €
ab 1.067,19 €
Dieser Preis ist ein Beispiel für den Anfang, ein Berater kann Ihnen ein detailliertes Angebot erstellen, das Ihren Bedürfnissen entspricht.
Möchten Sie bei Ihrem Projekt Geld sparen?
Durch einen Angebotsvergleich mit Massivhaus.de können Sie bis zu 20 % Ihrer Baukosten sparen.
Über den Anbieter HANNOVER HAUS
Zum Anbieterprofil
Bewertungen
0
(0)

Bewertungen
0
0 BewertungenKeine
HANNOVER HAUS in Zahlen
Gründungsjahr
1999
Häuser im Angebot
10
Häuser pro Jahr
50
Häuser gesamt
> 1.000
Mitarbeiter
35
Leistungsspektrum
Finanzierungsberatung
Preisgarantie
Bauzeit Garantie
Individuelle Planung
Blower Door Test
Persönliche Beratung für Ihre individuellen Wünsche
Finden Sie jetzt Ihren Ansprechpartner
HANNOVER HAUS
Ähnliche Häuser Für Modern 154 Style