








Haas Fertigbau: Haas MH Hessdorf 169
Ab 256.000 €
Bewertungen von Haas Fertigbau
4,0
(44)
Wohnfläche
251 m²
Zimmer
7
Ausbaustufe
Ausbauhaus
Bauweise
Fertighaus
Etagen
1,5
Energiestandard
Effizienzhaus 40
Dachform
Satteldach
Hausart
Zweifamilienhaus
Beschreibung
Mehrgenerationenhaus mit viel Licht
Viel Glas, viel Licht, viel Sonne und eine variantenreiche Raumgestaltung! Das Mehrgenerationenhaus Haas MH Heßdorf 169 zeigt, wie flexibel Wohnraum in einem modernen Fertighaus genutzt werden kann. Ein offenes Foyer verbindet das Haupthaus mit einem großzügigen Anbau. Dieser kann als eigenes Büro für Selbstständige dienen oder Platz für Gäste, Kinder, Großeltern und das Hobby bieten. Natürlich lässt sich der Anbau des Musterhauses mit eigenem Eingang auch als Einliegerwohnung vermieten – eine perfekte Einnahmequelle! Vereinbaren Sie einen Beratungstermin und informieren Sie sich zu den Möglichkeiten des Hausbaus mit Haas Haus.
Angabe zur Wohnfläche: inkl. Anbau
Angaben zum Preis: gelten für die Ausbaustufe “Ausbauhaus“ oder die Ausbaustufe “Schlüsselfertig“ für die Basisvariante des Hauses (Haas MH Hessdorf 169) ab Oberkante Bodenplatte bzw. Kellerdecke für Bauort Deutschland; lt. Preisliste 05/2023; ohne Sonderausstattung; Abbildungen können aufpreispflichtige Sonderausstattungen enthalten. EH 40 tauglich. Die angegeben Außenmaße beziehen sich auf die Außenmaße des Grundbaukörpers.
Voraussetzung für ein KfW-Effizienzhaus 40 sind die Ausführung des Hauses auf Bodenplatte und Hausvariante gem. Haas Hauskatalog sowie passende Grundstückssituation.
Sie haben Interesse?
Laden Sie sich jetzt Ihr kostenloses Exposé zu diesem Haus herunter:
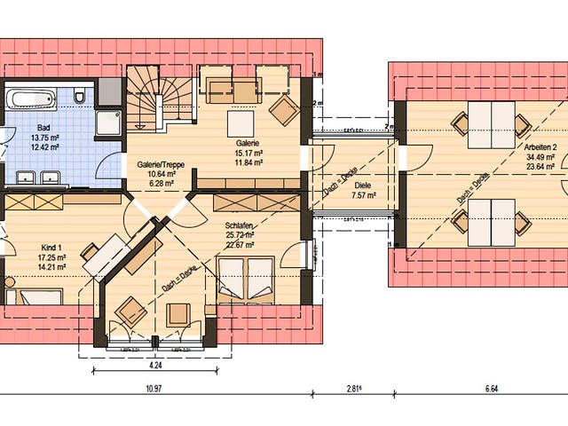
Grundrissfür Haas MH Hessdorf 169
Außenmaße
Länge: 10,97 m
Breite: 9,48 m
Grundrisse
Der Grundriss entspricht nicht Ihren Vorstellungen?
Passen Sie den Grundriss an Ihre persönlichen Bedürfnisse an und besprechen Sie Ihren individuellen Plan mit einem Bauberater des Anbieters.
Merkmale
Energiestandard und Förderung
Energiestandard
Effizienzhaus 40
Effizienzhaus 40 Plus
Plusenergiehaus
U-Wert
0,09
Dach
Dachform
Satteldach
Dachneigung
45°
Kniestockhöhe
64 cm
Preisdetails für Haas MH Hessdorf 169
Ausbauhaus ab
256.000 €
ab 770,67 €
Dieser Preis ist ein Beispiel für den Anfang, ein Berater kann Ihnen ein detailliertes Angebot erstellen, das Ihren Bedürfnissen entspricht.
Möchten Sie bei Ihrem Projekt Geld sparen?
Durch einen Angebotsvergleich mit Massivhaus.de können Sie bis zu 20 % Ihrer Baukosten sparen.
Über den Anbieter Haas Fertigbau
Zum Anbieterprofil
Bewertungen
4,0
(44)

Bewertungen
4,0
44 BewertungenGut
Haas Fertigbau in Zahlen
Gründungsjahr
1972
Häuser im Angebot
30
Häuser pro Jahr
700
Häuser gesamt
50.000
Mitarbeiter
> 1200
Bewertungen von Haas Fertigbau
Sehr freundlicher Berater Anton Mundigl
Sehr freundlicher und kompetenter Berater Hr. Mundigl. Er war zum ersten Treffen im Musterhaus in Poing sehr gut vorbereitet und hatte sogar schon ein Angebot parat (aufgrund meiner Angaben im Konfigurator)! Haas war bei uns in der engeren Wahl, aber irgendwann muss man sich (allein schon aus zeitlichen Gründen) für oder gegen eine Firma entscheiden. Daher fällt Haas jetzt bei uns raus. Wir hätten aber gerne mit Herrn Mundigl als Berater weitergemacht, aber andere Fertighausanbieter sagen uns einfach mehr zu.
21 März 2026Hubert S.
Information
Ich befinde mich in der Vorentscheidung was in Zukunft mit dem grundstück werden soll. Informationsmaterial ausreichend und prompt. Besten Dank
20 März 2026Eva T.
gute Beratung
gute Beratung
09 März 2026Florian M.
Leistungsspektrum
Finanzierungsberatung
Preisgarantie
Bauzeit Garantie
Individuelle Planung
Blower Door Test
Persönliche Beratung für Ihre individuellen Wünsche
Finden Sie jetzt Ihren Ansprechpartner
Haas Fertigbau
Auszeichnungen, Zertifikate & Mitgliedschaften
























Ähnliche Häuser Für Haas MH Hessdorf 169