Haas Fertigbau: Haas MH Poing 187
Ab 306.000 €

Bewertungen von Haas Fertigbau
3,9
(41)
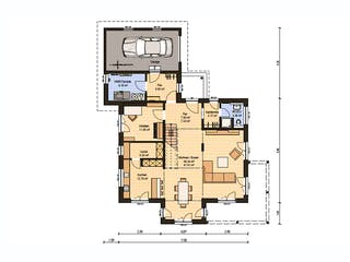
Grundrissfür Haas MH Poing 187
Außenmaße
Länge: 11,6 m
Breite: 9,4 m
Grundrisse
Der Grundriss entspricht nicht Ihren Vorstellungen?
Passen Sie den Grundriss an Ihre persönlichen Bedürfnisse an und besprechen Sie Ihren individuellen Plan mit einem Bauberater des Anbieters.
Detailsfür Haas MH Poing 187
Energiestandard und Förderung
Energiestandard
Effizienzhaus 40 Plus
Plusenergiehaus
Effizienzhaus 40 Plus
Ein Effizienzhaus 40 Plus verbraucht im Vergleich zum Referenzhaus 100 > 60 % weniger Energie. Sie müssen für den Hausbau mit Mehrkosten von ~ 13,5 % rechnen, die sich aber mittelfristig auszahlen. Es verfügt im Vergleich zum Effizienzhaus 40 über weitere Komponenten, wie beispielsweise eine Lüftungsanlage mit Wärmerückgewinnung, eine Anlage, mit der auf Basis erneuerbarer Energien Strom erzeugt werden kann und ein Batteriespeichersystem, mit dem überschüssige Energie eingespart werden kann.
Effizienzhaus 40
Seit dem 1. Juli 2010 gibt es neben dem Effizienzhaus 55 und dem Effizienzhaus 70 noch das Effizienzhaus 40. Das Effizienzhaus 40 darf nur 40 Prozent der nach Energieeinsparverordnung 2009 (EnEV) gültigen Höchstwerte hinsichtlich Jahres-Primärenergiebedarf und Transmissionswärmeverlust erreichen. Neben der Einsparung von 60 Prozent beim Jahres-Primärenergiebedarfs sind auch beim Transmissionswärmeverlust 45 Prozent einzusparen. Der maximale Jahresprimärenergiebedarf beträgt 30 kWh/m². Ein KfW-Effizienzhaus 40 Haus ist luftdicht und nutzt regenerative Energien, häufig eine Kombination aus Holzpellets, Solaranlage und Lüftungsanlage mit Wärmerückgewinnung.
Effizienzhaus 55
Ein Effizienzhaus 55 verbraucht im Vergleich zum Referenzhaus 100 45 % weniger Energie. Sie müssen für den Hausbau mit Mehrkosten von ~ 7,5 % rechnen, die sich aber mittelfristig auszahlen. Diese Effizienzklasse gilt heutzutage als Standard für alle neu gebauten Häuser.
Dach
Dachform
Walmdach
Dachneigung
20°
Satteldach
Das Satteldach liegt in Form eines Dreiecks auf dem Baukörper und schließt entweder mit seinem First parallel zu den beiden Giebeln ab oder es ragt noch über die Giebel hinaus. Satteldächer werden als Pfettendach oder als Sparrendach ausgebildet. Üblich sind Dachneigungen ab etwa 30˚ (flaches Satteldach) bis über 60˚ (altdeutsches Dach). Weit verbreitet sind Satteldächer mit etwa 38˚ bis 45˚ Neigung. Diese bieten genug Raum für einen Ausbau des Dachgeschosses.
Zeltdach
Seltene Dachform, die nur auf einem quadratischen oder annähernd quadratischen Grundriß errichtet werden kann. Zelt- oder Pyramidendächer findet man vor allem auf Türmen und Kirchtürmen.
Walmdach
Sehr häufig zu sehende Dachform, dem Satteldach verwandt. Im Gegensatz zu diesem schließt der First jedoch nicht mit den beiden Giebelwänden ab, sondern ist beidseitig zurückgebaut, das heißt abgeschrägt sind. Dabei unterscheidet man noch Zwergwalmdach, Krüppelwalmdach und Fußwalmdach. Da bei diesen Varianten nicht die komplette Seite abgewalmt ist, spricht man auch häufig von Vollwalmdach, wenn der Walm so ausgebildet ist, wie auf der Zeichnung. Weitere Bezeichnungen für Walmdach sind Walbendach, Holländisches Dach, Schopfdach oder Haubendach.
Krüppelwalmdach
Besonders auf nord- und niederdeutschen Gehöften gebräuchliche Variante des Walmdachs. Entspricht einem Walmdach mit hochgesetzter Traufhöhe am Giebel. In manchen Gegenden wird es auch als Schopfwalmdach bezeichnet.
Flachdach
Flachdächer sind allgegenwärtig und dominieren im Gewerbebau, im Bereich des privaten Hausbaus werden sie - mit stark abnehmender Tendenz - bei Bungalows angelegt und natürlich bei Garagen und Carports. Bei Flachdächern erfolgt keine Dacheindeckung mit Dachpfannen, vielmehr wird die Dachfläche mit Dachbahnen oder mit Metallblechen regenfest gemacht. Konstruktiv wird beim Flachdach unterschieden zwischen Kaltdach, Warmdach und Umkehrdach. Mit Dachbahnen abgedichtete Flachdächer werden auch heute noch, wenn auch mit stark abnehmender Tendenz, mit Rollkies belegt. Stark steigend, bei Gewerbebauten jedoch oftmals auch baubehördlich vorgeschrieben, ist die Anlage einer Dachbegrünung. Dadurch wird das Flachdach zum Gründach. Gründächer sind eine sinnvolle Alternative gegen die zunehmende Verdichtung des Bodens. Flachdächer sind im übrigen keineswegs eben, sie müssen ein Gefälle von mindestens 3 % aufweisen, damit das Regenwasser über den Dachgully oder die Dachrinnen abfließen kann.
Pultdach
Gefälledach, das wie ein Pultdeckel auf dem Baukörper liegt. Das Pultdach ist die einfachste Dachform überhaupt. Mit nur einen schrägen Dachfläche ist es kostengünstig herzustellen. Im Mittelmeerraum ist das Pultdach die häufigste Dachform. Seit einiger Zeit erfreut es sich auch hierzulande zunehmender Beliebtheit. Die Dachfläche von Pultdächern liegt meist zur Wetterseite hin, um Wind, Regen und Schnee abzuschirmen. An der Sonnenseite lässt das Haus Raum für große Lichtflächen.
Preisfür Haas MH Poing 187
Ausbauhaus ab
306.000 €
ab 921,19 €
Dieser Preis ist ein Beispiel für den Anfang, ein Berater kann Ihnen ein detailliertes Angebot erstellen, das Ihren Bedürfnissen entspricht.
Möchten Sie bei Ihrem Projekt Geld sparen?
Durch einen Angebotsvergleich mit Massivhaus.de können Sie bis zu 20 % Ihrer Baukosten sparen.
Haas Fertigbau
Zum Anbieterprofil
Bewertungen
3,9
(41)

Bewertungen
3,9
41 BewertungenGut
Haas Fertigbau in Zahlen
Gründungsjahr
1972
Häuser im Angebot
27
Häuser pro Jahr
700
Häuser gesamt
50.000
Mitarbeiter
> 1200
Bewertungen von Haas Fertigbau
Haas Fertigbau kann leider nicht auf einer sc...
Haas Fertigbau kann leider nicht auf einer schwedenplatte bauen
30 Jan. 2026Sonja S.
Enttäuschende Erfahrungen mit Haas Fertigbau - insbesondere nach der Hausübergabe
Wir haben mit Haas Fertigbau leider sehr enttäuschende Erfahrungen gemacht. Uns ist bewusst, dass bei nahezu jedem Neubau nach der Hausübergabe der ein oder andere Mangel zutage tritt – mal kleiner, mal gravierender. Umso wichtiger ist aus unserer Sicht, dass ein Bauunternehmen auch nach der Übergabe ein verlässlicher Partner bleibt und gewillt ist, entdeckte Mängel sachlich zu prüfen und zu beseitigen. Bereits kurz nach der Hausübergabe zeigten sich bei unserem Haus erhebliche Mängel an der Fassade. Trotz mehrfacher schriftlicher Mängelanzeigen, konkreter Fristsetzungen und eines gemeinsamen Termins mit Bauleiter, ausführender Firma sowie einem von Haas Fertigbau selbst hinzugezogenen Sachverständigen der Firma Sto wurde über einen Zeitraum von nahezu einem Jahr keine mangelfreie Fassade hergestellt. Rückmeldungen blieben häufig aus, zugesagte Nachbesserungen wurden nicht umgesetzt. Erst nachdem wir unsere vertraglichen Rechte wahrgenommen und gegenüber Haas Fertigbau eine Minderung erklärt haben, kam Bewegung in das Thema. Dieser Schritt war aus unserer Sicht unumgänglich, nachdem über Monate hinweg keine ordnungsgemäße Mängelbeseitigung erfolgte. Besonders enttäuschend war für uns der anschließende Umgang mit einer weiteren Mängelanzeige. Ein gemeldeter Schaden wurde ohne Besichtigung oder Prüfung vor Ort abgelehnt. Die Ablehnung wurde seitens Haas Fertigbau ausdrücklich unter Verweis auf „vergangene Vorkommnisse“ begründet, womit nach unserem Verständnis eindeutig die zuvor erklärte Minderung gemeint war. Der konkrete Mangel selbst wurde inhaltlich nicht geprüft. Der Eindruck drängt sich auf, dass nicht der Sachverhalt maßgeblich war, sondern die Tatsache, dass wir unsere Gewährleistungsrechte ausgeübt haben. Die Bauqualität einzelner Gewerke mag überzeugen, der Umgang mit Mängeln und Kundenanliegen nach der Hausübergabe jedoch nicht. Wer sich für Haas Fertigbau entscheidet, sollte sich darauf einstellen, berechtigte Mängel nur mit erheblichem Nachdruck, Fristsetzungen und sehr langem Atem - oder eben gar nicht- durchsetzen zu können. Wir würden diese Entscheidung wohl heute so nicht noch einmal treffen.
17 Dez. 2025Stefan M.
Wir schauen uns im Augenblick nur die einzeln...
Wir schauen uns im Augenblick nur die einzelnen Hausmodelle an. Direkten Kontakt suchen wir noch nicht, da es im Augenblick einfach noch nicht so weit ist.
19 Nov. 2025Rudi K.
Leistungsspektrum
Finanzierungsberatung
Preisgarantie
Bauzeit Garantie
Individuelle Planung
Blower Door Test
Persönliche Beratung für Ihre individuellen Wünsche
Finden Sie jetzt Ihren Ansprechpartner
Haas Fertigbau
Auszeichnungen, Zertifikate & Mitgliedschaften




































