



Grundsteinhaus: Doppelhaushälfte Version 3
Ab 233.400 €
Bewertungen von Grundsteinhaus
0
(0)
Wohnfläche
174 m²
Zimmer
5
Ausbaustufe
Schlüsselfertig
Bauweise
Massivhaus
Energiestandard
Effizienzhaus 55
Dachform
Pultdach
Hausart
Doppelhaus
Beschreibung
Sie haben Interesse?
Laden Sie sich jetzt Ihr kostenloses Exposé zu diesem Haus herunter:
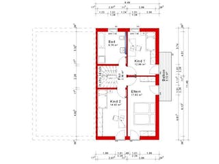
Grundrissfür Doppelhaushälfte Version 3
Grundrisse
Der Grundriss entspricht nicht Ihren Vorstellungen?
Passen Sie den Grundriss an Ihre persönlichen Bedürfnisse an und besprechen Sie Ihren individuellen Plan mit einem Bauberater des Anbieters.
Merkmale
Energiestandard und Förderung
Energiestandard
Effizienzhaus 55
Dach
Dachform
Pultdach
Preisdetails für Doppelhaushälfte Version 3
Schlüsselfertig ab
233.400 €
ab 702,63 €
Dieser Preis ist ein Beispiel für den Anfang, ein Berater kann Ihnen ein detailliertes Angebot erstellen, das Ihren Bedürfnissen entspricht.
Möchten Sie bei Ihrem Projekt Geld sparen?
Durch einen Angebotsvergleich mit Massivhaus.de können Sie bis zu 20 % Ihrer Baukosten sparen.
Über den Anbieter Grundsteinhaus

Bewertungen
0
(0)

Bewertungen
0
0 BewertungenKeine
Grundsteinhaus in Zahlen
Gründungsjahr
2018
Häuser pro Jahr
10-20
Mitarbeiter
1-10
Ähnliche Häuser Für Doppelhaushälfte Version 3