







FischerHaus: Bauhaus 221
Ab 578.156 €
Bewertungen von FischerHaus
4,7
(15)
Wohnfläche
193 m²
Zimmer
8
Ausbaustufe
Schlüsselfertig
Bauweise
Fertighaus
Etagen
2
Energiestandard
Effizienzhaus 40 Plus
Dachform
Flachdach
Hausart
Einfamilienhaus
Beschreibung
Als Vorbild der Eisbär
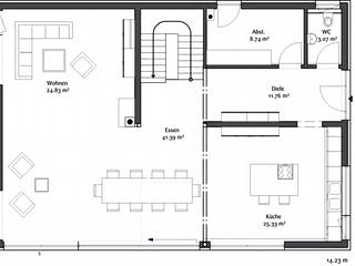
Im Erdgeschoss ist Küche, Esszimmer und das Wohnzimmer in einem großen Raum für die ganze Familie. Ebenfalls ebenerdig ist ein Gäste-WC mit Abstellraum untergebracht.
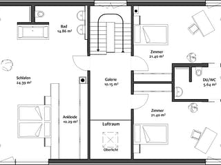
Über eine gewinkelte Treppe gelangt man ins Obergeschoss, das Reich der Kinder mit zwei Kinderzimmern, einem Bad mit Dusche sowie einem großzügigen Elternschlafzimmer mit integrierter Ankleide und Wohnbadezimmer für die Eltern.
Bei der baulichen Hüllen machen wir es wie die Eisbären. So wenig Energie wie möglich an die Umwelt verlieren, so viel Energie wie möglich aus der Umwelt nutzen. Eisbären sind ja auch nicht nur einfach warm angezogen. Es ist eine Kombination mehrerer Effekte.
Für FischerHaus heißt das Eisbären-Prinzip analog: perfekt gegen die Umwelt gedämmt und gleichzeitig extrem an die Umwelt angepasst, indem wir effizient nutzen, was die Natur an Energie zu bieten hat (Mit Wärmepumpe und Solaranlage).
Das Effizienzhaus 40 heizt mit einer Wärmepumpe. Mit der Wärme aus der Umgebungsluft wird in der Wärmepumpe zunächst ein Kältemittel verdampft und dann unter Druck gesetzt. Dabei erhöht sich die Temperatur des komprimierten Gases so weit, dass wir damit Energie erzeugen können, die wir für die Bereitung von Heizungs- und Trinkwasser benötigen. Prinzipiell funktioniert die Wärme-pumpe wie ein Kühlschrank, nur umgekehrt.
Sie haben Interesse?
Laden Sie sich jetzt Ihr kostenloses Exposé zu diesem Haus herunter:
Grundrissfür Bauhaus 221
Außenmaße
Länge: 9,98 m
Breite: 14,23 m
Grundrisse
Der Grundriss entspricht nicht Ihren Vorstellungen?
Passen Sie den Grundriss an Ihre persönlichen Bedürfnisse an und besprechen Sie Ihren individuellen Plan mit einem Bauberater des Anbieters.
Merkmale
Energiestandard und Förderung
Energiestandard
Effizienzhaus 40 Plus
Dach
Dachform
Flachdach
Preisdetails für Bauhaus 221
Schlüsselfertig ab
578.156 €
Ausbauhaus ab318.399 €
ab 1.740,49 €
Dieser Preis ist ein Beispiel für den Anfang, ein Berater kann Ihnen ein detailliertes Angebot erstellen, das Ihren Bedürfnissen entspricht.
Möchten Sie bei Ihrem Projekt Geld sparen?
Durch einen Angebotsvergleich mit Massivhaus.de können Sie bis zu 20 % Ihrer Baukosten sparen.
Über den Anbieter FischerHaus
Zum Anbieterprofil
Bewertungen
4,7
(15)

Bewertungen
4,7
15 BewertungenHervorragend
FischerHaus in Zahlen
Gründungsjahr
1961
Häuser im Angebot
40
Häuser pro Jahr
140
Häuser gesamt
>13.000
Mitarbeiter
135
Bewertungen von FischerHaus
Schnelle Zusendung der Unterlagen
Schnelle Zusendung der Unterlagen
28 Jan. 2026Nicole H.
Bisher läuft alles super mit der Planung
Bisher läuft alles super mit der Planung
10 März 2024Charly Z.
Leistungsspektrum
Finanzierungsberatung
Preisgarantie
Bauzeit Garantie
Individuelle Planung
Blower Door Test
Persönliche Beratung für Ihre individuellen Wünsche
Finden Sie jetzt Ihren Ansprechpartner
FischerHaus
Auszeichnungen, Zertifikate & Mitgliedschaften






Ähnliche Häuser Für Bauhaus 221