



Fingerhut Haus: Florenz
Ab 398.785 €
Bewertungen von Fingerhut Haus
4,2
(101)
Wohnfläche
122 m²
Zimmer
6
Ausbaustufe
Schlüsselfertig
Bauweise
Fertighaus
Etagen
2
Energiestandard
Effizienzhaus 55
Dachform
Pultdach
Hausart
Einfamilienhaus
Beschreibung
Ein Bauhaus das begeistert
Individuelle Anbauten und die moderne Holzverschalung zieren das Flachdachhaus. Die Garage und der zurückgesetzte, überdachte Eingangsbereich geben dem Haus einen extravaganten Look.
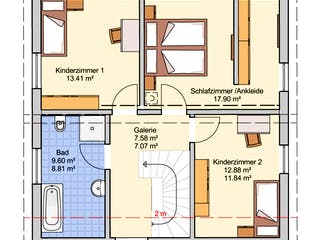
Besonders der Wohn- und Essbereich im Erdgeschoss überzeugt durch viel Offenheit. Außerdem findet sich im Erdgeschoss der Hauswirtschaftsraum, welcher sich zusätzlich als Abstellraum nutzen lässt. Des Weiteren ein Arbeitszimmer und ein Gäste-WC. Im Obergeschoss des Hauses sind die beiden gleichgroßen Kinderzimmer durch eine Galerie verbunden. Hier findet sich außerdem ein Badezimmer. Das große Wellness-Bad ist durch die Ankleide zu erreichen, welche außerdem in das Schlafzimmer führt. Auch in der oberen Etage sorgen große Fenster für viel Licht.
Angaben zum Preis:
Die gezeigten Abbildungen zeigen zum Teil Sonderleistungen gegen Mehrpreis. Preis der entsprechenden Ausbaustufe inkl. Fingerhut-Bodenplatte und 19 % MwSt. gemäß der Fingerhut-Bau- und Leistungsbeschreibung 1012, Preisliste P05/25.
Sie haben Interesse?
Laden Sie sich jetzt Ihr kostenloses Exposé zu diesem Haus herunter:
Grundrissfür Florenz
Grundrisse
Der Grundriss entspricht nicht Ihren Vorstellungen?
Passen Sie den Grundriss an Ihre persönlichen Bedürfnisse an und besprechen Sie Ihren individuellen Plan mit einem Bauberater des Anbieters.
Merkmale
Energiestandard und Förderung
Energiestandard
Effizienzhaus 40 Plus
Effizienzhaus 55
Plusenergiehaus
U-Wert
0,14
Dach
Dachform
Pultdach
Dachneigung
22°
Kniestockhöhe
185 cm
Preisdetails für Florenz
Schlüsselfertig ab
398.785 €
Ausbauhaus ab244.951 €
ab 1.200,51 €
Dieser Preis ist ein Beispiel für den Anfang, ein Berater kann Ihnen ein detailliertes Angebot erstellen, das Ihren Bedürfnissen entspricht.
Möchten Sie bei Ihrem Projekt Geld sparen?
Durch einen Angebotsvergleich mit Massivhaus.de können Sie bis zu 20 % Ihrer Baukosten sparen.
Über den Anbieter Fingerhut Haus
Zum Anbieterprofil
Bewertungen
4,2
(101)

Bewertungen
4,2
101 BewertungenHervorragend
Fingerhut Haus in Zahlen
Gründungsjahr
1903
Häuser im Angebot
100
Mitarbeiter
145
Bewertungen von Fingerhut Haus
Der erste Kontakt mit dem Berater scheint ok ...
Der erste Kontakt mit dem Berater scheint ok zu sein.
01 Mai 2026Dr. Michael N.
Tolle Qualität, Transparenz. Werden jedoch d...
Tolle Qualität, Transparenz. Werden jedoch das alte Haus nicht abreißen lassen sondern Sanieren. Das spart viel Geld.
15 März 2026Martina W.
Sehr nette und kompetente Beratung.
Sehr nette und kompetente Beratung.
01 Feb. 2026Torsten D.
Leistungsspektrum
Finanzierungsberatung
Preisgarantie
Bauzeit Garantie
Individuelle Planung
Blower Door Test
Persönliche Beratung für Ihre individuellen Wünsche
Finden Sie jetzt Ihren Ansprechpartner
Fingerhut Haus
Ähnliche Häuser Für Florenz