


Fingerhut Haus: Patrino
Ab 485.804 €
Bewertungen von Fingerhut Haus
4,2
(101)
Wohnfläche
138 m²
Zimmer
4,5
Ausbaustufe
Schlüsselfertig
Bauweise
Fertighaus
Etagen
2
Energiestandard
Effizienzhaus 55
Dachform
Flachdach
Hausart
Einfamilienhaus
Beschreibung
Ein Haus mit Persönlichkeit
Ein geradliniges Design im Bauhaus-Stil verkörpert unser Haus Patrino perfekt. Von außen wirkt das Haus durch die klaren Formen und hochwertige Baustoffe hochmodern, ohne dabei kühl zu wirken. Im Inneren des Hauses findet sich im Erdgeschoss ein großer Wohn-, Ess- und Kochbereich, welcher optisch durch eine eingezogene Wand abgegrenzt wird. Des Weiteren findet sich hier eine kleine Garderobe und ein Gäste-WC, sowie der Hauswirtschaftsraum, welcher auch als Abstellkammer genutzt werden kann. Die klaren Formen des Hauses spiegeln sich im Obergeschoss noch einmal wieder. Zwei symmetrische Kinderzimmer und das elterliche Schlafzimmer finden hier ihren Platz. Vom Elternschlafzimmer aus gelangt man auf einen schönen Balkon. Außerdem befindet sich im Obergeschoss ein großes Badezimmer mit einem eleganten Eckfenster. In diesem Haus wurden viele individuelle Wünsche unter einem Dach vereint und ergeben ein extravagantes und wunderschönes Haus.
Angaben zum Preis:
Die gezeigten Abbildungen zeigen zum Teil Sonderleistungen gegen Mehrpreis. Preis der entsprechenden Ausbaustufe inkl. Fingerhut-Bodenplatte und 19 % MwSt. gemäß der Fingerhut-Bau- und Leistungsbeschreibung 1012, Preisliste P05/25.
Sie haben Interesse?
Laden Sie sich jetzt Ihr kostenloses Exposé zu diesem Haus herunter:
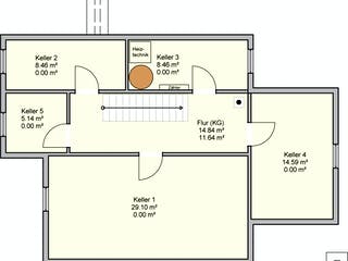
Grundrissfür Patrino
Grundrisse
Der Grundriss entspricht nicht Ihren Vorstellungen?
Passen Sie den Grundriss an Ihre persönlichen Bedürfnisse an und besprechen Sie Ihren individuellen Plan mit einem Bauberater des Anbieters.
Merkmale
Energiestandard und Förderung
Energiestandard
Effizienzhaus 40
Effizienzhaus 40 Plus
Effizienzhaus 55
Plusenergiehaus
U-Wert
0,14
Dach
Dachform
Flachdach
Preisdetails für Patrino
Schlüsselfertig ab
485.804 €
Ausbauhaus ab330.637 €
ab 1.462,47 €
Dieser Preis ist ein Beispiel für den Anfang, ein Berater kann Ihnen ein detailliertes Angebot erstellen, das Ihren Bedürfnissen entspricht.
Möchten Sie bei Ihrem Projekt Geld sparen?
Durch einen Angebotsvergleich mit Massivhaus.de können Sie bis zu 20 % Ihrer Baukosten sparen.
Über den Anbieter Fingerhut Haus
Zum Anbieterprofil
Bewertungen
4,2
(101)

Bewertungen
4,2
101 BewertungenHervorragend
Fingerhut Haus in Zahlen
Gründungsjahr
1903
Häuser im Angebot
100
Mitarbeiter
145
Bewertungen von Fingerhut Haus
Der erste Kontakt mit dem Berater scheint ok ...
Der erste Kontakt mit dem Berater scheint ok zu sein.
01 Mai 2026Dr. Michael N.
Tolle Qualität, Transparenz. Werden jedoch d...
Tolle Qualität, Transparenz. Werden jedoch das alte Haus nicht abreißen lassen sondern Sanieren. Das spart viel Geld.
15 März 2026Martina W.
Sehr nette und kompetente Beratung.
Sehr nette und kompetente Beratung.
01 Feb. 2026Torsten D.
Leistungsspektrum
Finanzierungsberatung
Preisgarantie
Bauzeit Garantie
Individuelle Planung
Blower Door Test
Persönliche Beratung für Ihre individuellen Wünsche
Finden Sie jetzt Ihren Ansprechpartner
Fingerhut Haus
Ähnliche Häuser Für Patrino