


Büdenbender Hausbau: Top
Preis auf Anfrage
Bewertungen von Büdenbender Hausbau
4,1
(61)
Wohnfläche
125 m²
Zimmer
7
Ausbaustufe
Schlüsselfertig
Bauweise
Fertighaus
Etagen
1,5
Energiestandard
Effizienzhaus 40
Dachform
Satteldach
Hausart
Einfamilienhaus
Beschreibung
Im Erdgeschoss dominiert der Wohn- und Essbereich mit anschließendem Wintergarten den cleveren Grundriss des klassischen Einfamilienhauses. So hell und lichtdurchflutet wie der Wohnbereich sind auch die Räume im Dachgeschoss dank der bodentiefen Fenster. Um morgendliche Staus im Bad zu vermeiden, ist ein zusätzliches familienfreundliches Duschbad im Erdgeschoss vorgesehen.
Angaben zum Preis: Schlüsselfertig gem. allgemeiner Bau- und Leistungsbeschreibung TB 02/19, ab OK Bodenplatte. Änderungen am Grundriss sind möglich.
Merkmale
- Wintergarten
- Gästezimmer
Sie haben Interesse?
Laden Sie sich jetzt Ihr kostenloses Exposé zu diesem Haus herunter:
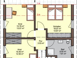
Grundrissfür Top
Grundrisse
Der Grundriss entspricht nicht Ihren Vorstellungen?
Passen Sie den Grundriss an Ihre persönlichen Bedürfnisse an und besprechen Sie Ihren individuellen Plan mit einem Bauberater des Anbieters.
Merkmale
Energiestandard und Förderung
Energiestandard
Effizienzhaus 40
Effizienzhaus 40 Plus
Effizienzhaus 55
U-Wert
0,141
Dach
Dachform
Satteldach
Dachneigung
35°
Kniestockhöhe
11 cm
Preisdetails für Top
Schlüsselfertig ab
Preis auf Anfrage
Dieser Preis ist ein Beispiel für den Anfang, ein Berater kann Ihnen ein detailliertes Angebot erstellen, das Ihren Bedürfnissen entspricht.
Möchten Sie bei Ihrem Projekt Geld sparen?
Durch einen Angebotsvergleich mit Massivhaus.de können Sie bis zu 20 % Ihrer Baukosten sparen.
Über den Anbieter Büdenbender Hausbau
Zum Anbieterprofil
Bewertungen
4,1
(61)

Bewertungen
4,1
61 BewertungenGut
Büdenbender Hausbau in Zahlen
Gründungsjahr
1946
Häuser im Angebot
36
Häuser pro Jahr
165
Häuser gesamt
7.000
Mitarbeiter
170
Leistungsspektrum
Finanzierungsberatung
Preisgarantie
Bauzeit Garantie
Individuelle Planung
Blower Door Test
Persönliche Beratung für Ihre individuellen Wünsche
Finden Sie jetzt Ihren Ansprechpartner
Büdenbender Hausbau
Ähnliche Häuser Für Top