













Bau-Fritz - Mehrfamilienhäuser: Mehrfamilienhaus Häberle
Ab 5.190.000 €
Bewertungen von Bau-Fritz - Mehrfamilienhäuser
0
(0)
Wohnfläche
891 m²
Ausbaustufe
Schlüsselfertig
Bauweise
Fertighaus
Etagen
3
Energiestandard
Effizienzhaus 40
Dachform
Satteldach
Hausart
Mehrfamilienhaus
Beschreibung
Was tun mit einem großen Grundstück mit Altbau mitten in der Stadt, wenn die einst so hübsche Villa in die Jahre gekommen ist und nur noch von einer Person bewohnt wird? Renovieren war keine Option, eine Teilung nicht möglich. Für die Familie Häberle, Mutter Erika und zwei erwachsene Söhne, war klar: Wir bauen ein Mehrfamilienhaus auf diese Fläche. Geplant wurde mit 10 Wohneinheiten, im Ergebnis das 20-fache an Wohnraum auf dem gleichen Grundstück: Wo vorher Frau Häberle allein gewohnt hat, können nun rund 20 Menschen leben. Das neue Mehrfamilienhaus ist als Dreispänner mit Kellergeschoss und Tiefgarage mit je zwei Stellplätzen pro Wohnung angelegt. Alle Wohnungen sind mit speziellen Wohnungstrennwänden und -decken voneinander separiert, für optimale Schalldämmwerte und entsprechend hohen Schallschutz. Die ursprünglich vier Wohnungen im Obergeschoss und die zwei Dachgeschosswohnungen teilen sich ein gemeinsames mittiges Treppenhaus mit Podesttreppe und Aufzug vom Keller bis ins Dachgeschoss. Kleine Besonderheit: Selbst das Treppenhaus und der Aufzugschacht sind in Holzmassivbauweise ausgeführt. Und: Zwei der Wohnungen wurden noch in der Produktionsphase dank Zwischentür zu einer Wohnung.
Architektur und Besonderheiten
- jede Wohnungseingang ist mit einer Eingangsüberdachung aus Glas versehen
- die Fenster neben den Haustüren sind mit einem Sichtschutz versehen, indem die senkrechten Latten der Holzschalung gestreiftüber die Fensteröffnungeb weiter laufen
- auf der Südseite haben alle erdgeschoss Wohnungen große Terrassendecks, welche mit Lamellensichtschutzwänden zurNachbarwohnung getrennt sind
- die Unterkellerung ragt über den Grundriss des Erdgeschosses raus, darin befindet sich neben Lagerräumen für alleWohneinheiten und der Haustechnik die Tiefgarage mit zwei Stellplätzen pro Wohnung
- Besonderheit: auch das Treppenhaus und der Aufzugschacht sind in Holz ausgeführt
- durch das zusammenlegen zweier Wohnungen, sind im Obergeschoss nun drei Wohneinheiten vorzufinden
- jede Wohnung verfügt über einen großen teils überdachten Balkon
- über die Flachdachgauben gelangt man auf Loggias, wodurch auch die Dachgeschosswohnunge einen privaten Außenbereichdirekt an der Wohnung vorzeigen können
Baufritz-Inklusivleistungen
- Individuelle Architektur – Jedes Baufritz-Haus ist ein Unikat. Wir fertigen Ihr Haus in unserer Manufaktur. Maßgefertigt für Sie und abgestimmt auf Ihre Wünsche.
- Holz-Alu-Fenster mit hochwertigem Schreinereinbau ohne PU-Bauschäum
- Ganzheitliches Gesundheitskonzept mit ausgezeichnetem Raumklima – Jedes Baufritz-Haus wird mit dem strengsten Siegel für Wohngesundheit zertifiziert: VDB-Zert
- Effektive X-und-E-Elektrosmog-Schutztechnik und abgeschirmte Elektroinstallation
- Hochwertiger und baubiologisch einwandfreier Innenausbau mit selbst entwickelten Baufritz-Innovationen (wie z.B. Innenraumfarben, Parkettkleber etc.) für ein einmalig gesundes Wohnklima
- Hochwertige Ausstattung bereits im Standard: Fußbodenheizung, Echtholzparkett, Vollholztüren, renommierte und namhafte Markenhersteller: Sanitär, Fliesen etc.
- Wärmedämmung „HOIZ": Unser biologischer Naturdämmstoff aus Holzspänen – eigens entwickelt, von natureplus geprüft und IBN-zertifiziert
- Persönliche Ansprechpartner von Anfang bis Einzug
- Ein erfahrener Innenraumplaner, der Sie während der Bemusterung begleitet und Ihnen z.B. bei Fragen zur Badgestaltung oder Lichtplanung mit Rat und Tat zur Seite steht
- Produktion und Montage durch ausgebildete Fachkräfte, die für faire Löhne und unter besten Bedingungen arbeiten
- Festpreisgarantie, Terminsicherheit und transparenter Prozess
Preis schlüsselfertig ab OK Keller/Bodenplatte, ohne Möbel und Küche im Liefergebiet Deutschland, basierend auf Preiskalkulation
Stand 02/2026, inkl. 19 % MwSt.
Sie haben Interesse?
Laden Sie sich jetzt Ihr kostenloses Exposé zu diesem Haus herunter:
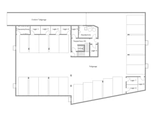
Grundrissfür Mehrfamilienhaus Häberle
Außenmaße
Länge: 37,8 m
Breite: 12,4 m
Grundrisse
Der Grundriss entspricht nicht Ihren Vorstellungen?
Passen Sie den Grundriss an Ihre persönlichen Bedürfnisse an und besprechen Sie Ihren individuellen Plan mit einem Bauberater des Anbieters.
Merkmale
Energiestandard und Förderung
Energiestandard
Effizienzhaus 40
Dach
Dachform
Satteldach
Dachneigung
33°
Kniestockhöhe
180 cm
Preisdetails für Mehrfamilienhaus Häberle
Schlüsselfertig ab
5.190.000 €
ab 15.624,06 €
Dieser Preis ist ein Beispiel für den Anfang, ein Berater kann Ihnen ein detailliertes Angebot erstellen, das Ihren Bedürfnissen entspricht.
Möchten Sie bei Ihrem Projekt Geld sparen?
Durch einen Angebotsvergleich mit Massivhaus.de können Sie bis zu 20 % Ihrer Baukosten sparen.
Über den Anbieter Bau-Fritz - Mehrfamilienhäuser
Zum Anbieterprofil
Bewertungen
0
(0)

Bewertungen
0
0 BewertungenKeine
Bau-Fritz - Mehrfamilienhäuser in Zahlen
Gründungsjahr
1896
Häuser im Angebot
13
Mitarbeiter
580
Leistungsspektrum
Finanzierungsberatung
Preisgarantie
Bauzeit Garantie
Individuelle Planung
Blower Door Test
Persönliche Beratung für Ihre individuellen Wünsche
Finden Sie jetzt Ihren Ansprechpartner
Bau-Fritz - Mehrfamilienhäuser
Weitere Häuser
Beliebte Häuser von Bau-Fritz - Mehrfamilienhäuser
Ähnliche Häuser Für Mehrfamilienhaus Häberle