














Bau-Fritz - Mehrfamilienhäuser: Mehrfamilienhaus Falchengraben
Ab 3.015.000 €
Bewertungen von Bau-Fritz - Mehrfamilienhäuser
0
(0)
Wohnfläche
618 m²
Ausbaustufe
Schlüsselfertig
Bauweise
Fertighaus
Etagen
2,5
Energiestandard
Effizienzhaus 40
Dachform
Satteldach
Hausart
Mehrfamilienhaus
Beschreibung
Das Mehrfamilienhaus am Falchengraben in Erkheim/Allgäu zeigt auf vielfältige Weise, wie sich generationenübergreifendes Wohnen innovativ, wohngesund und nachhaltig gestalten lässt. Bei der Planung dieses Mehrgenerationenhauses wurden zudem gezielt feminine Gesichtspunkte berücksichtigt. Das Resultat sind großzügige Eingangsbereiche, möglichst weite und helle Flure, Platz für Kinderwägen sowie der Zugang zu Gemeinschaftsterrassen. Die barrierearme Immobilie mit 624 Quadratmetern Gesamtwohnfläche besteht aus drei Häusern mit separaten Zugängen, die dabei gleichzeitig über Terrassen und rückwärtig versetzte Balkone miteinander verbunden sind. Insgesamt sind neun hochwertige Wohnungen entstanden; drei davon sind für Familien geeignet. Sieben verschiedene Grundrisse in verschiedenen Größen von 46 bis 100 m² erfüllen dabei unterschiedliche Ansprüche.
Architektur und Besonderheiten
- Mehrfamilienhaus mit 9 separaten Wohnungen
- Gemeinschaftliche Nutzflächen (z.B. Grillplatz) sowie großzügige Stellfächen (z.G. für Kinderwägen)
- Großzügige Fensterflächen und Terrassen mit Seeblick
- Hochwertige Ausstattung mit gesunden Materialien
Baufritz-Inklusivleistungen
- Individuelle Architektur – Jedes Baufritz-Haus ist ein Unikat. Wir fertigen Ihr Haus in unserer Manufaktur. Maßgefertigt für Sie und abgestimmt auf Ihre Wünsche.
- Holz-Alu-Fenster mit hochwertigem Schreinereinbau ohne PU-Bauschäum
- Ganzheitliches Gesundheitskonzept mit ausgezeichnetem Raumklima – Jedes Baufritz-Haus wird mit dem strengsten Siegel für Wohngesundheit zertifiziert: VDB-Zert
- Effektive X-und-E-Elektrosmog-Schutztechnik und abgeschirmte Elektroinstallation
- Hochwertiger und baubiologisch einwandfreier Innenausbau mit selbst entwickelten Baufritz-Innovationen (wie z.B. Innenraumfarben, Parkettkleber etc.) für ein einmalig gesundes Wohnklima
- Hochwertige Ausstattung bereits im Standard: Fußbodenheizung, Echtholzparkett, Vollholztüren, renommierte und namhafte Markenhersteller: Sanitär, Fliesen etc.
- Wärmedämmung „HOIZ": Unser biologischer Naturdämmstoff aus Holzspänen – eigens entwickelt, von natureplus geprüft und IBN-zertifiziert
- Persönliche Ansprechpartner von Anfang bis Einzug
- Ein erfahrener Innenraumplaner, der Sie während der Bemusterung begleitet und Ihnen z.B. bei Fragen zur Badgestaltung oder Lichtplanung mit Rat und Tat zur Seite steht
- Produktion und Montage durch ausgebildete Fachkräfte, die für faire Löhne und unter besten Bedingungen arbeiten
- Festpreisgarantie, Terminsicherheit und transparenter Prozess
Preis schlüsselfertig ab OK Keller/Bodenplatte, ohne Möbel und Küche im Liefergebiet Deutschland, basierend auf Preiskalkulation
Stand 02/2026, inkl. 19 % MwSt.
Sie haben Interesse?
Laden Sie sich jetzt Ihr kostenloses Exposé zu diesem Haus herunter:
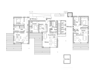
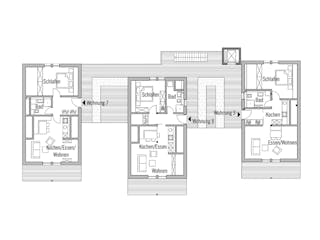
Grundrissfür Mehrfamilienhaus Falchengraben
Außenmaße
Länge: 11,95 m
Breite: 32,85 m
Grundrisse
Der Grundriss entspricht nicht Ihren Vorstellungen?
Passen Sie den Grundriss an Ihre persönlichen Bedürfnisse an und besprechen Sie Ihren individuellen Plan mit einem Bauberater des Anbieters.
Merkmale
Energiestandard und Förderung
Energiestandard
Effizienzhaus 40
Dach
Dachform
Satteldach
Dachneigung
45°
Kniestockhöhe
120 cm
Preisdetails für Mehrfamilienhaus Falchengraben
Schlüsselfertig ab
3.015.000 €
ab 9.076,41 €
Dieser Preis ist ein Beispiel für den Anfang, ein Berater kann Ihnen ein detailliertes Angebot erstellen, das Ihren Bedürfnissen entspricht.
Möchten Sie bei Ihrem Projekt Geld sparen?
Durch einen Angebotsvergleich mit Massivhaus.de können Sie bis zu 20 % Ihrer Baukosten sparen.
Über den Anbieter Bau-Fritz - Mehrfamilienhäuser
Zum Anbieterprofil
Bewertungen
0
(0)

Bewertungen
0
0 BewertungenKeine
Bau-Fritz - Mehrfamilienhäuser in Zahlen
Gründungsjahr
1896
Häuser im Angebot
13
Mitarbeiter
580
Leistungsspektrum
Finanzierungsberatung
Preisgarantie
Bauzeit Garantie
Individuelle Planung
Blower Door Test
Persönliche Beratung für Ihre individuellen Wünsche
Finden Sie jetzt Ihren Ansprechpartner
Bau-Fritz - Mehrfamilienhäuser
Weitere Häuser
Beliebte Häuser von Bau-Fritz - Mehrfamilienhäuser
Ähnliche Häuser Für Mehrfamilienhaus Falchengraben