




RENSCH-HAUS: Musterhaus Stockholm
Preis auf Anfrage
Bewertungen von RENSCH-HAUS
4,2
(239)
Wohnfläche
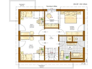
157 m²
Ausbaustufe
Schlüsselfertig
Bauweise
Fertighaus
Energiestandard
Effizienzhaus 55
Beschreibung
Musterhaus "Stockholm" - wohnen wie die Skandinavier
Die Wohnfläche dieses Musterhauses erstreckt sich auf fast 160 m², allein fast 95 m² nutzbare Fläche wurden im Erdgeschoss umbaut. Die gesamte Gebäudehülle wurde in Holztafelbauweise erstellt, eine ca. 330 mm dicke Außenwand mit 300 mm Holzfaser-/Zellulosedämmung weisen einen beachtlichen U-Wert von 0,14 W/m²K auf. Die RENSCH-HAUS eigene Dämmvariante "thermo-around natur" und die diffusionsoffenen Wände sorgen dafür, dass das Musterhaus zu jeder Jahreszeit optimal zum einen gegen sommerliche Hitze und zum anderen gegen winterliche Kälte geschützt ist.
Sie haben Interesse?
Laden Sie sich jetzt Ihr kostenloses Exposé zu diesem Haus herunter:
Merkmale
Energiestandard und Förderung
Energiestandard
Effizienzhaus 55
Effizienzhaus 40 Plus
Ein Effizienzhaus 40 Plus verbraucht im Vergleich zum Referenzhaus 100 > 60 % weniger Energie. Sie müssen für den Hausbau mit Mehrkosten von ~ 13,5 % rechnen, die sich aber mittelfristig auszahlen. Es verfügt im Vergleich zum Effizienzhaus 40 über weitere Komponenten, wie beispielsweise eine Lüftungsanlage mit Wärmerückgewinnung, eine Anlage, mit der auf Basis erneuerbarer Energien Strom erzeugt werden kann und ein Batteriespeichersystem, mit dem überschüssige Energie eingespart werden kann.
Effizienzhaus 40
Seit dem 1. Juli 2010 gibt es neben dem Effizienzhaus 55 und dem Effizienzhaus 70 noch das Effizienzhaus 40. Das Effizienzhaus 40 darf nur 40 Prozent der nach Energieeinsparverordnung 2009 (EnEV) gültigen Höchstwerte hinsichtlich Jahres-Primärenergiebedarf und Transmissionswärmeverlust erreichen. Neben der Einsparung von 60 Prozent beim Jahres-Primärenergiebedarfs sind auch beim Transmissionswärmeverlust 45 Prozent einzusparen. Der maximale Jahresprimärenergiebedarf beträgt 30 kWh/m². Ein KfW-Effizienzhaus 40 Haus ist luftdicht und nutzt regenerative Energien, häufig eine Kombination aus Holzpellets, Solaranlage und Lüftungsanlage mit Wärmerückgewinnung.
Effizienzhaus 55
Ein Effizienzhaus 55 verbraucht im Vergleich zum Referenzhaus 100 45 % weniger Energie. Sie müssen für den Hausbau mit Mehrkosten von ~ 7,5 % rechnen, die sich aber mittelfristig auszahlen. Diese Effizienzklasse gilt heutzutage als Standard für alle neu gebauten Häuser.
Preisdetailsfür Musterhaus Stockholm
Schlüsselfertig ab
Preis auf Anfrage
Dieser Preis ist ein Beispiel für den Anfang, ein Berater kann Ihnen ein detailliertes Angebot erstellen, das Ihren Bedürfnissen entspricht.
Möchten Sie bei Ihrem Projekt Geld sparen?
Durch einen Angebotsvergleich mit Massivhaus.de können Sie bis zu 20 % Ihrer Baukosten sparen.
Über den Anbieter RENSCH-HAUS
Zum Anbieterprofil
Bewertungen
4,2
(239)

Bewertungen
4,2
239 BewertungenHervorragend
RENSCH-HAUS in Zahlen
Gründungsjahr
1876
Häuser im Angebot
60
Häuser pro Jahr
ca. 300
Häuser gesamt
ca. 10.500
Mitarbeiter
250
Bewertungen von RENSCH-HAUS
Informelles Gespräch mit interessanten Inform...
Informelles Gespräch mit interessanten Informationen,Zusendung des Hauskataloges mit Preisen zur eigenen Orientierung
19 März 2026Herbert O.
Aufdringlich und unfreundlich
Sehr aufdringliches Gespräch, auch auf die Rückmeldung, dass man ein anderes Unternehme bevorzugt, wurde darauf hingewiesen, dass man die falsche Entscheidung getroffen habe. Sehr unsympathisch
31 Jan. 2026Tom S.
Sehr schöner, informativer Katalog, tolle Häu...
Sehr schöner, informativer Katalog, tolle Häuser.
07 Jan. 2026Markus Z.
Leistungsspektrum
Preisgarantie
Bauzeit Garantie
Individuelle Planung
Blower Door Test
Persönliche Beratung für Ihre individuellen Wünsche
Finden Sie jetzt Ihren Ansprechpartner
RENSCH-HAUS
Auszeichnungen, Zertifikate & Mitgliedschaften






Ähnliche Häuser Für Musterhaus Stockholm